EasyManua.ls Logo

Noritz EZ111DV - Overview Of Condensing Tankless Gas Water Heater; General Parts

Noritz EZ111DV
32 pages
Print Icon
To Next Page IconTo Next Page
To Next Page IconTo Next Page
To Previous Page IconTo Previous Page
To Previous Page IconTo Previous Page
Loading...
8
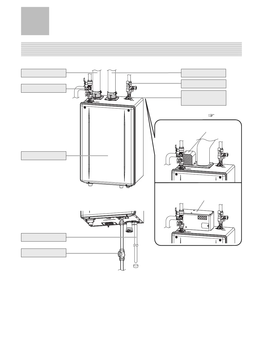
General Parts -1
Indoor Installation
Flex Vent 2"
Conversion Kit
Outdoor Vent Cap
Outdoor Installation
Indoor Installation
* Theaboveillustrationshowsanexampleofinstallation.
The exact installation conguration may be slightly different.
FrontCover
(Inside Water Inlet)
(
p.36)
PressureReliefValve
IntakePipe ExhaustPipe
GasSupplyValve
Drain Pipe
Discharges the condensate.
Unit
WaterDrainValve
(with Water Filter)
WaterSupplyValve

Other manuals for Noritz EZ111DV

Related product manuals