EasyManua.ls Logo

Noritz NCC300DV - Vent Pipe Installation (When using 5 vent pipe to replace the existing model) (When supplying combustion air from the indoors (SV, non-direct vent)); Horizontal Vent Termination; Vertical Vent Termination

Noritz NCC300DV
54 pages
Print Icon
To Next Page IconTo Next Page
To Next Page IconTo Next Page
To Previous Page IconTo Previous Page
To Previous Page IconTo Previous Page
Loading...
19
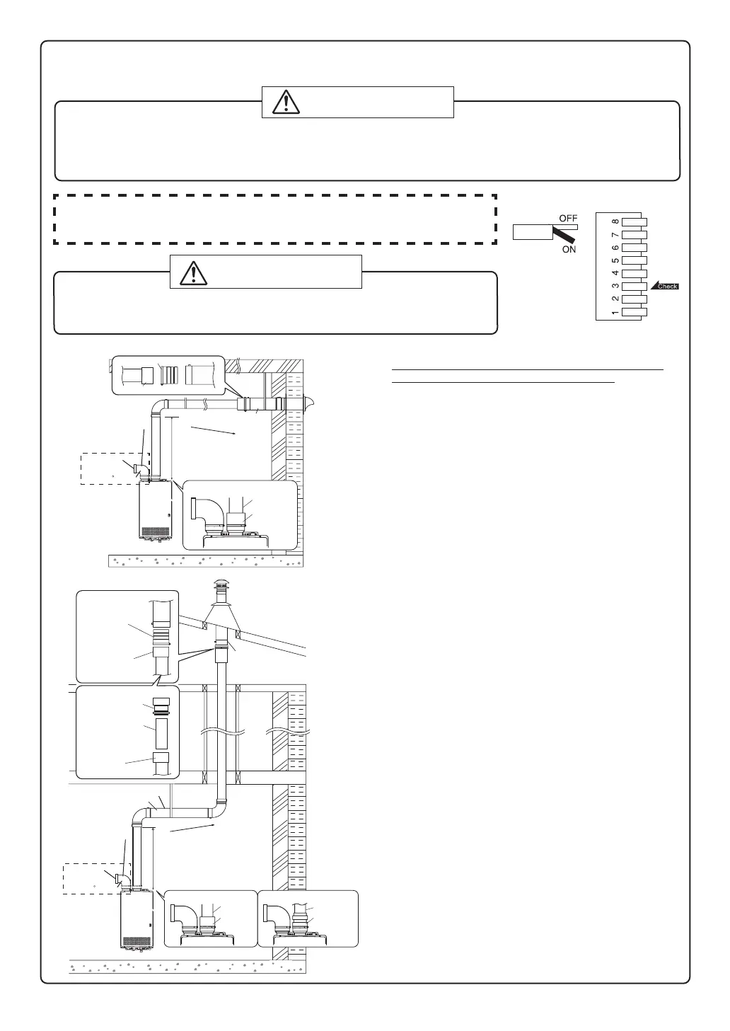
Horizontal Vent Termination
V
ertical Vent Termination
When using PP pipe, replace 5" Stainless Steel Vents
and the termination. See the previous page.
4" PVC to 5" SS Vent Adapter (PVC4XVP5-ADAPT) is
required to connect with 5" stainless steel vent.
Replace 5" Stainless Steel Vents with 4" PVC/CPVC as
possible. If stainless steel vents exist, seal stainless
steel Joints with high temperature silicon sealant to
prevent possible condensate leakage.
Noritz recommends this venting configuration strongly.
Provide vertical support every 3' (0.9m) or as required
by the vent pipe manufacturer's instructions.
Slope the horizontal vent 1/4" downwards for every 12" (300mm).
Use a condensation drain if necessary.
In the Commonwealth of Massachusetts a carbon
monoxide detector is required for all side wall horizontally
vented gas fuel equipment. Please refer to Technical Bulletin
TB 010606 for full installation instructions.
4" PVC to 5" SS Vent Adapter (PVC4XVP5-ADAPT) is
required to connect with
5" stainless steel vent.
When using 4" PP pipe, two 4" PP Adapter (ISAAN0404)
are required.
To transition to existing 5" stainless steel vent with the
4" PP adapter, a section (1 ft. or more) of PP pipe
(male x male) must be used. Refer to figure on left.
Replace 5" Stainless Steel V
ents with 4" PVC/CPVC or
PP as possible. If stainless steel vent exist, seal stainless
steel Joints with high temperature silicon sealant to prevent
possible condensate leakage.
Noritz recommends this venting configuration strongly.
When the vent penetrates a floor or ceiling and is not
running in a fire rated shaft, a firestop and support is required.
Provide vertical support every 3' (0.9m) or as required
by the vent pipe manufacturer's instructions.
Slope the horizontal vent 1/4" upwards for every 12" (300mm).
Use a condensation drain if necessary.
Intake
90 Elbow
Inlet screen
SV Conversion Kit
Accessory
(#SV-CK-4)
5" pipe
Intake
Exhaust
90 Elbow
Inlet screen
SV Conversion Kit
Accessory
(#SV-CK-4)
* Not supplied with water
heater, order separately.
1' (0.3m) minimum
recommended, but not required.
* Not supplied with water
heater, order separately.
1' (0.3m) minimum
recommended, but not required.
PVC4XVP5-ADAPT
Elbow
Hanger
Straps
Wall
Thimble
Termination
Slope the
Vent Downward
Firestop
Firestop/
Support
Roof
Flashing
Roof
Jack
Storm
Collar
Rain
Cap
Hanger
Strap
Elbow
5" pipe
4" pipe
4" pipe
When using 4" PVC/CPVC pipe
4"x4" coupling
When using 4" PP pipe
4" PP Adapter
ISAAN0404
4" pipe
4" pipe
When using 4" PVC/CPVC pipe
4"x4" coupling
When using 4" PP pipe
4" PP Adapter
ISAAN0404
End Pipe PPs-UV
(ISEP04) or a cut
4" vent pipe
(both male-end)
PP pipe
(female-end)
Slope the
Vent Upward
4"x4" coupling
PVC4XVP5-ADAPT
4"x4" coupling
Vent Pipe Installation (When using 5" vent pipe to replace the existing model)
(When supplying combustion air from the indoors (SV, non-direct vent))
* Dip switch No.3 is turned on.
Disconnect power and turn ON dip switch 3 if combustion air will be supplied from the
indoors as illustrated to the right. Refer to page 11 for the location of the dip switch bank.
SV Conversion kit #SV-CK-4 is required for the air intake
.
Failure to perform the above 2 steps could result in a re or explosion causing
property damage, personal injury or death.
Refer to the instructions provided with the conversion kit for additional details.
WARNING
When installing this water heater in an area with a large amount of lint such as a commercial Laundromat, di-
rect-vent ("-DV") system must be used. The "-SV" conguration (using an SV conversion kit) is prohibited.
When installing this water heater in a mobile home, all combustion must be drawn directly from the outdoors.
The "-SV" conguration (using
SV conversion kit) is prohibited.
DANGER

Related product manuals