EasyManua.ls Logo

NTI FTG 600 - Page 34

NTI FTG 600
88 pages
Print Icon
To Next Page IconTo Next Page
To Next Page IconTo Next Page
To Previous Page IconTo Previous Page
To Previous Page IconTo Previous Page
Loading...
Installation & Operation Manual FTG
34
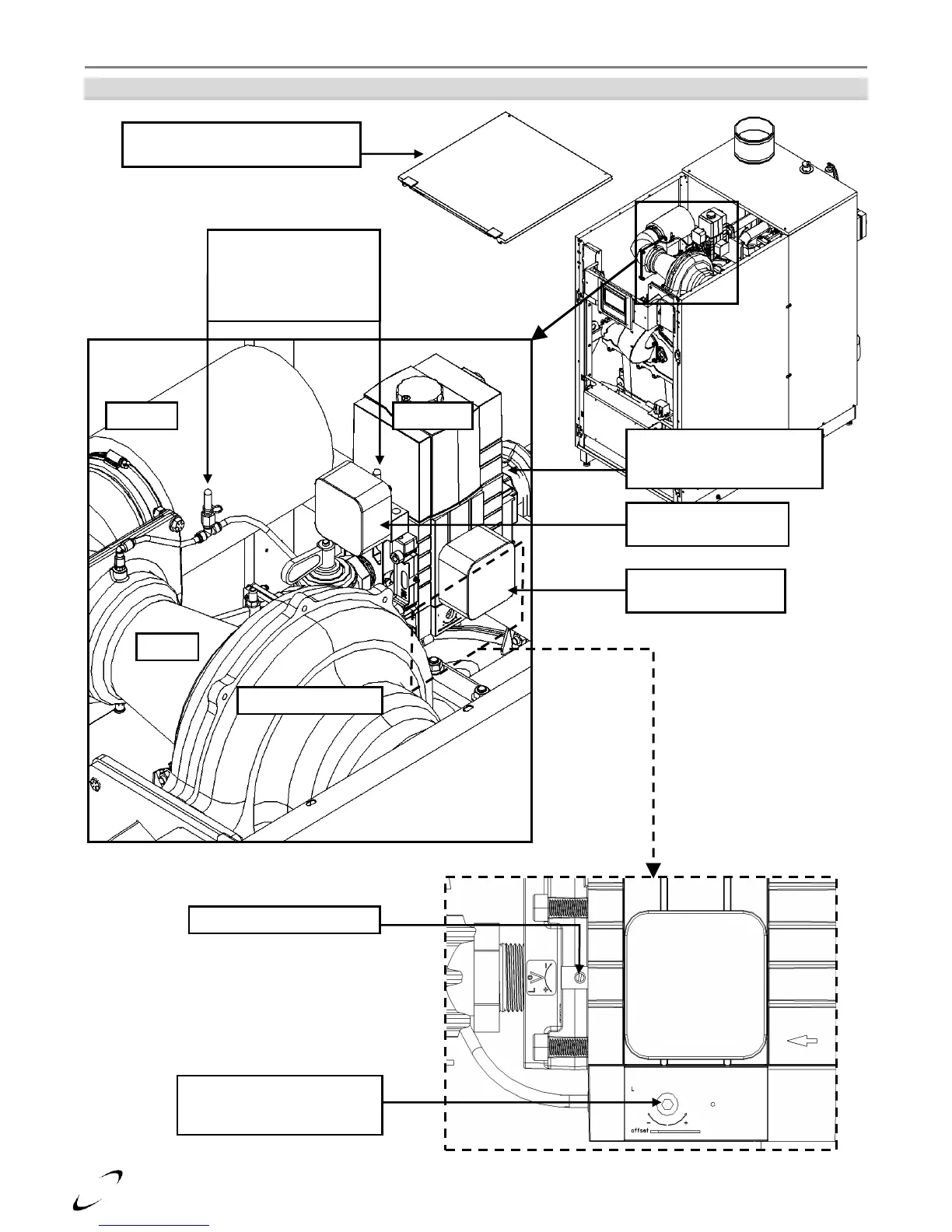
Figure 9-1(b) Gas Valve Assembly (FTG 2000-2400)
Pressure Tappings for
Measuring Offset
(Refer to Offset
Adjustment Procedure
Figure 9-2)
Gas Valve
Offset Adjustment Screw
(Refer to Offset Adjustment
Procedure Figure 9-2)
Throttle Adjustment Screw
Line Pressure Test Port
(located on gas valve inlet
flange)
Venturi
Combustion Blower
Air Filter
Low Gas Pres. Switch
(auto-reset)
High Gas Pres. Switch
(manual reset)
Front-Top Cover (must be removed
to access Gas Valve components)

Other manuals for NTI FTG 600

Related product manuals