EasyManua.ls Logo

Nussbaum SPL10000 - Universal Carry Arm Measurements

Nussbaum SPL10000
32 pages
Print Icon
To Next Page IconTo Next Page
To Next Page IconTo Next Page
To Previous Page IconTo Previous Page
To Previous Page IconTo Previous Page
Loading...
TWO POST SPL10000
Nussbaum Automotive Solutions, LP | 1932 Jordache Court, Gastonia, NC 28052 | 704.864.2470 | Email: info@nussbaum-usa.com | us.nussbaumlifts.com
21
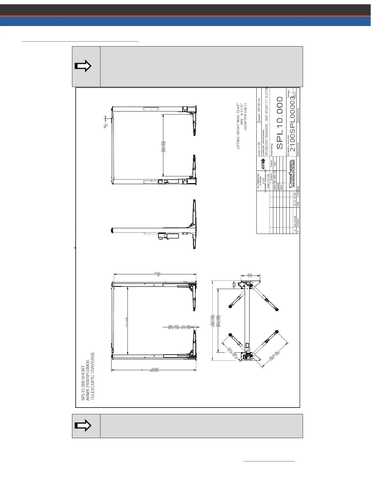
UNIVERSAL CARRY ARM MEASUREMENTS
The first measurements, shown above the measurement lines, are
Wide width installation measurements. The measurements following
the Wide width measurements, in parenthesis, are Narrow width
installation measurements.
The above measurements are with the standard arms. For the rest of
the arms, the measurements are as given in the table in Page No 25

Related product manuals