EasyManua.ls Logo

NuTone IMA-516 - Page 14

NuTone IMA-516
16 pages
Print Icon
To Next Page IconTo Next Page
To Next Page IconTo Next Page
To Previous Page IconTo Previous Page
To Previous Page IconTo Previous Page
Loading...
6
LE APPARTEMENT DU 1e
LE APPARTEMENT DU 2e
VERS LE
APPARTEMENT
DU 3e
TRANSFORMATEUR
MODÉLE 301T
NUTONE IW-6 MAX. 4000 PIEDS
PER SYSTEM. MAX. 500 PIEDS
18/2
(NUTONE
S-143)
AMPLIFICATEUR
CENTRAL
IMA-516
ORN /BLN
NOIR
NOIR/BLNORN
NUTONE IW-2 (100 PIEDS MAX.)
NUTONE IW-2 (100 FT. MAX.)
IW-6
18 GA
18 GA
18 GA
N482BX
N482BX
VERS LE
APPARTEMENT
DU 3e
IW-6
TO APT.
NO. 1
HAUT-
PARLEUR
DE
PORTE
BOUTON-
POUSSOIR
ROUGE/BLANC
ROUGE
14 GA
CARILLON
NOIR
PAIRE
NON
UTILISÉE
AC
AC
2,000 PIEDS (CALIBRE 18) JUSQU'AU DERNIER
DISPOSITIF D'OUVERTURE DE LA PORTE
2,500 PIEDS MAX JUSQU'AU DERNIER HAUT-
PARLEUR AVEC SONNETTE
NOIR
ORN
FILS DE LA
MISE À LA
TERRE
NOIR/BLANC
ORN/BLN
CARILLON
DISPOSITIF
D'OUVERTURE
DE PORTE
OPTIONNEL
BOUTON-
POUSSOIR
DISPOSITIF
D'OUVERTURE DE
PORTE
OPTIONNEL
HAUT-PARLEUR DE PORTE
AIMENTATION
DOMESTIQUE
60 Hz , 120 V; RESPECTER
LES CODES EN VIGUEUR
ROUGE/BLN
ROUGE
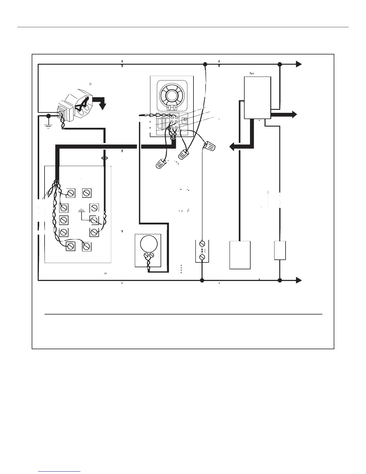
DIAGRAMME D'UN SYSTÈME TYPIQUE (SUITE)
MAISONS DE VILLE
Le système typique comprend des haut-parleurs de porte individuels et des haut-parleurs d'appartement
avec sonnet intégrée. Un dispositif électrique d'ouverture de porte est offert en option.

Related product manuals