EasyManua.ls Logo

Obvius A8812 - Mechanical Drawings

Obvius A8812
39 pages
Print Icon
To Previous Page IconTo Previous Page
To Previous Page IconTo Previous Page
Loading...
Mechanical Drawings
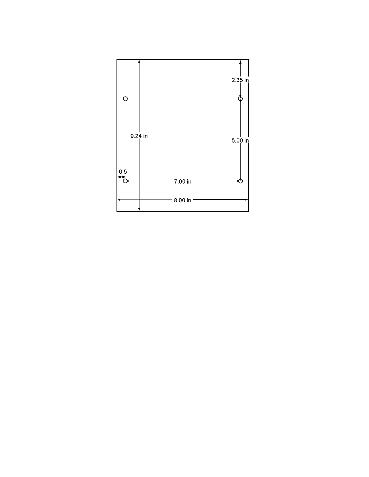
The AcquiSuite uses a metal enclosure that is approximately 9.25” x 8” x 2” deep. The Enclosure has a tab on the bottom
that requires 2.5” clearance. Two 1.2” holes are provided in the bottom of the AcquiSuite for wiring purposes.
The AcquiSuite has 4 mounting holes for use with a #6 or #8 screw. The drawing above shows the relative position of the
mounting holes.
Page 39 A8812 AcquiSuite – Data Acquisition Server
Shop for Power Metering products online at:
1.800.561.8187
www.PowerMeterStore.ca

Related product manuals