EasyManua.ls Logo

Omron C200HX Series - Page 159

Omron C200HX Series
241 pages
To Next Page IconTo Next Page
To Next Page IconTo Next Page
To Previous Page IconTo Previous Page
To Previous Page IconTo Previous Page
Loading...
Appendix BSpecifications
147
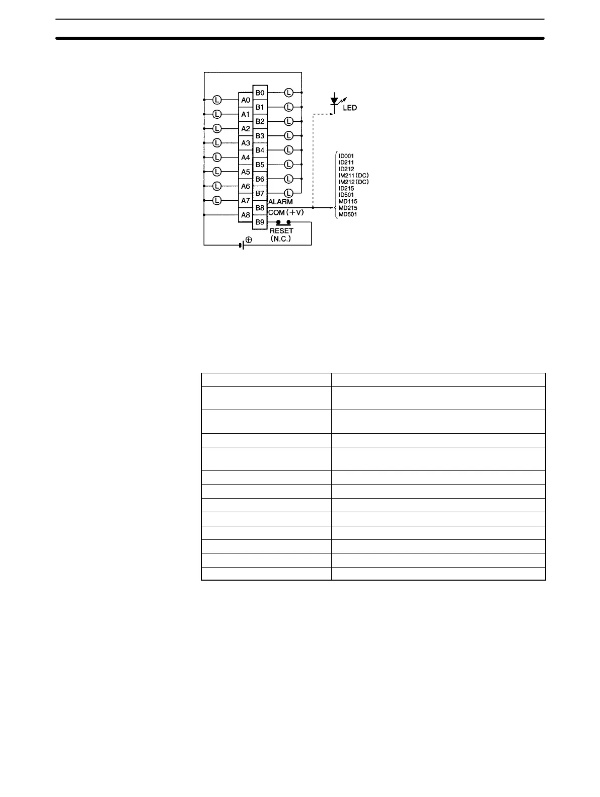
Terminal Connections
+24 VDC
24 VDC
0 V
Note When the ALARM output turns ON, remove the cause of the high current and then shut off the external
power supply for approx. 1 second. After confirming that the cause has been removed, turn ON the power
supply again to reset the output. As shown in the diagram, it is recommended that a relay or switch that turns
ON or OFF only the external power supply be connected right before the B9 (+V). Check that this relay or
switch has a contact capacity higher than the external power supply current consumption (35 mA + load
current minimum).
Triac Output Unit C200H-OA122-E
Max. Switching Capacity 1.2 A 120 VAC, 50/60 Hz (4 A/Unit)
Max. Inrush Current 15 A (pulse width: 100 ms)
30 A (pulse width: 10 ms)
Min. Switching Capacity 100 mA 10 VAC/50 mA 24 VAC/10 mA 100 VAC
min.
Leakage Current 1.5 mA (120 VAC) max.
Residual Voltage 1.5 VAC max. (50 to 1,200 mA)/ 5 VAC max. (10 to
50 mA)
ON Response Time 1 ms max.
OFF Response Time 1/2 of load frequency+1 ms or less.
No. of Circuits 1 (8 points/common)
Internal Current Consumption 180 mA 5 VDC max.
Fuse Rating 5 A 125 V (5.2-dia.x20)
Power for External Supply N/A
Weight 300 g max.
Dimensions E-shape

Table of Contents

Other manuals for Omron C200HX Series

Related product manuals