EasyManua.ls Logo

Omron C200HX Series - Page 163

Omron C200HX Series
241 pages
To Next Page IconTo Next Page
To Next Page IconTo Next Page
To Previous Page IconTo Previous Page
To Previous Page IconTo Previous Page
Loading...
Appendix BSpecifications
151
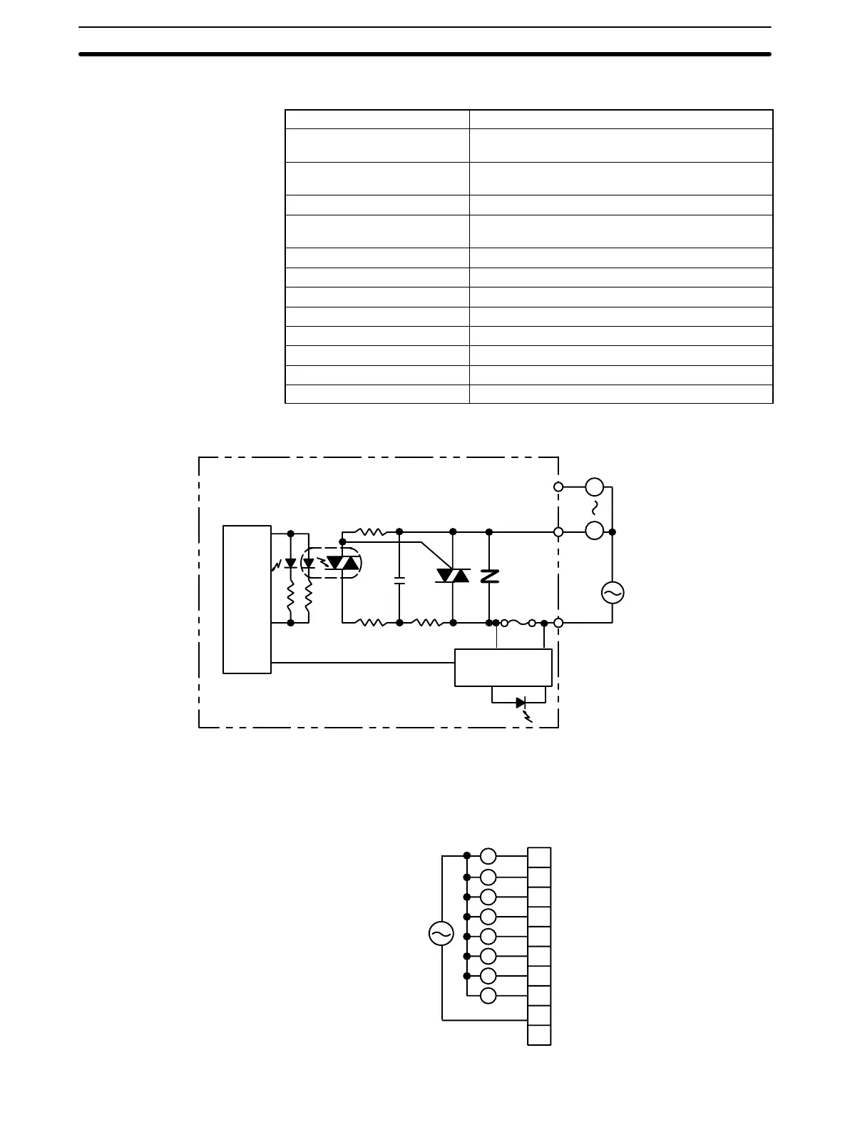
Triac Output Unit C200H-OA223
Max. Switching Capacity 1.2 A 250 VAC, 50/60 Hz (4 A/Unit)
Max. Inrush Current 15 A (pulse width: 100 ms)
30 A (pulse width: 10 ms)
Min. Switching Capacity 100 mA 10 VAC/50 mA 24 VAC/10 mA 100 VAC
min.
Leakage Current 1.5 mA (120 VAC) max./3 mA (240 VAC) max.
Residual Voltage 1.5 VAC max. (50 to 1,200 mA)/ 5 VAC max. (10 to
50 mA)
ON Response Time 1 ms max.
OFF Response Time 1/2 of load frequency+1 ms or less.
No. of Circuits 1 (8 points/common)
Internal Current Consumption 180 mA 5 VDC max.
Fuse Rating 5 A 250 V (5.2-dia.x20)
Power for External Supply N/A
Weight 300 g max.
Dimensions E-shape
Circuit Configuration
L
Internal
Circuit
OUT
COM
OUT
Output indicator
L
250 VAC max.
Fuse: 5 A 250 V (5.2-dia.x20) HT (SOC)
Fuse
F indicator
Fuse blowout
detection circuit
Note When the fuse blows, the F indicator lights and bit 08 turns ON. Bits 08 through 15 cannot be used as IR bits.
Terminal Connections
A0
A1
A2
A3
A4
A5
A6
A7
A8
A9
0
1
2
3
4
5
6
7
L
L
L
L
L
L
L
L
COM
250 VAC max.
(1.2 A max. 4 A/Unit)
NC

Table of Contents

Other manuals for Omron C200HX Series

Related product manuals