EasyManua.ls Logo

Omron FH-5550 - Page 221

Omron FH-5550
248 pages
Print Icon
To Next Page IconTo Next Page
To Next Page IconTo Next Page
To Previous Page IconTo Previous Page
To Previous Page IconTo Previous Page
Loading...
Connector No. Connection destination Note
CN4 Connect to 24 V power source depending on the
NPN/PNP polarity as below table.
*1
When the power source and
DIO are non-isolated and no
problem:
Possible to connect the same
power source for the FH series.
When you want to isolate the
power source and DIO:
The power source for the FH
series cannot be used. Use an-
other power source.
Recommendations: S8VS ser-
ies, 24 VDC
*1. COM terminal polarity in NPN/PNP:
NPN PNP
COMIN +V -V
COMOUT -V +V
l
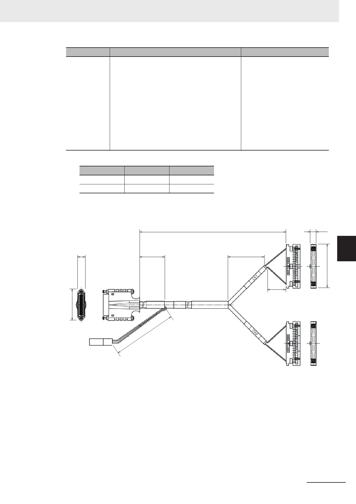
Cable (FH-VPX-FZL)
8
34
40
500
(35)
(20)
7
47.8
CN1
CN2
CN3
CN4
(200)
(Unit: mm)
6 I/O Interface
6-23
FH Series Vision System Hardware Setup Manual (Z366-E1)
6-1 Parallel Interface
6
6-1-4 Other (Parallel Converter Cable)

Table of Contents

Related product manuals