EasyManua.ls Logo

Omron H7ET-NV-B - Page 6

Omron H7ET-NV-B
33 pages
Print Icon
To Next Page IconTo Next Page
To Next Page IconTo Next Page
To Previous Page IconTo Previous Page
To Previous Page IconTo Previous Page
Loading...
New H7EC
6
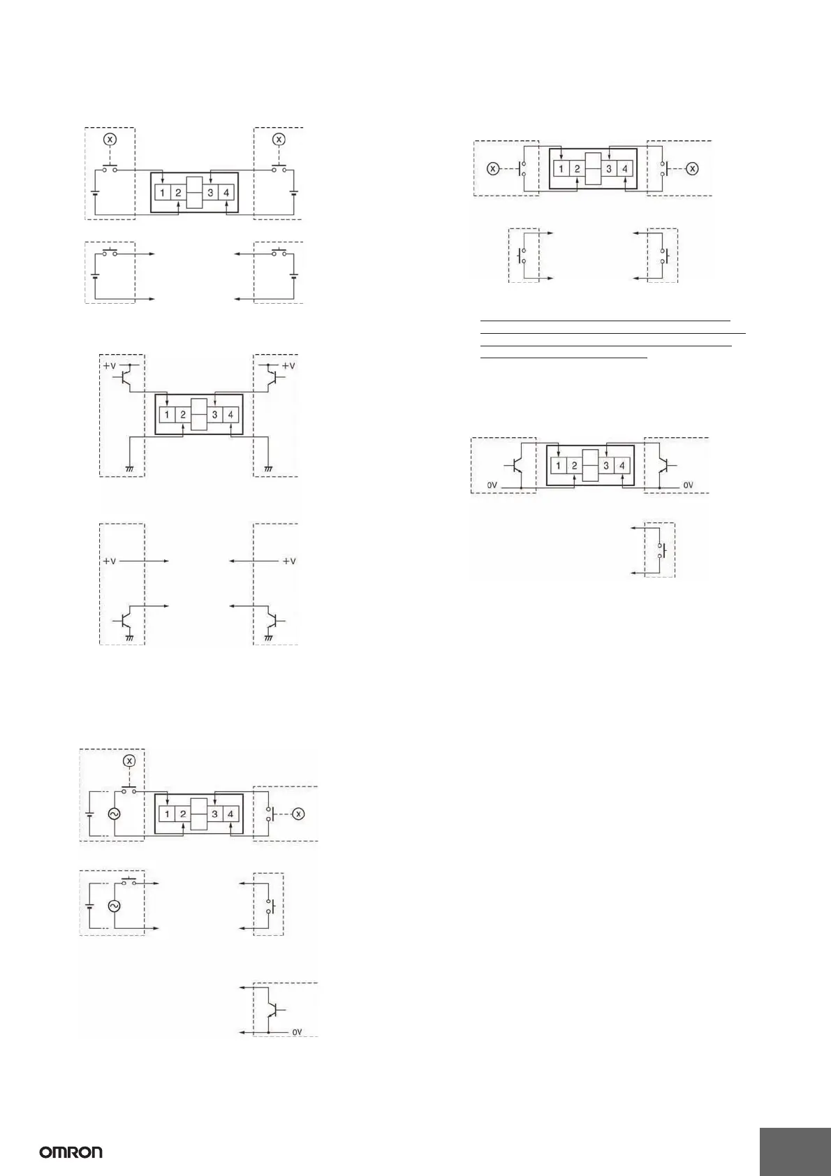
No-voltage Input Model
1. Contact Input (Input by a Relay or Switch Contact)
AC/DC Multi-voltage Input Model
PNP/NPN Universal DC Voltage Input Model Without Backlight
1. Contact Input (Input by a Relay or Switch Contact)
2. Solid-state Input
Relay
Input Reset
Relay
or Switch or Switch
or Switch
Input
Reset
Relay
Relay
Input
Reset
or Switch
or Switch
Relay
Input
Reset
Relay
or Switch or Switch
Input
Reset
Open collector of a
PNP transistor
Open collector of a
PNP transistor
or Open collector of an
NPN transistor
or Open collector of an
NPN transistor
Note: 1. Terminals 2 and 4 (input circuit and reset circuit) are
functionally isolated.
2. Select input transistors according to the following:
Dielectric strength of the collector 50 V
Leakage current < 100 µA
or Open collector of
an NPN transistor
Note: Select input transistors according to the following:
Dielectric strength of the collector 50 V
Leakage current < 1 µA
Terminals 2 and 4 are
internally connected.
Note: Use Relays and Switches that have high contact
reliability because the current flowing from terminals
1 or 3 is small. It is recommended that OMRON's
G3TA-IA/ID be used as the SSR.
2. Solid-state Input
(Open Collector Input of an NPN Transistor)
Open collector of an
NPN transistor
Open collector of an
NPN transistor
Terminals 2 and 4 are
internally connected.
Note: 1. Residual voltage in the output section of Proximity
Sensors or Photoelectric Sensors becomes less than
0.5 V because the current flowing from terminals 1 or 3
is small thus allowing easy connection.
2. Select input transistors according to the following:
Dielectric strength of the collector 50 V
Leakage current < 1 µA

Related product manuals