EasyManua.ls Logo

Omron SYSMAC CJ1W-SCU31-V1 - 6-5 Protocol Conversion

Omron SYSMAC CJ1W-SCU31-V1
781 pages
To Next Page IconTo Next Page
To Next Page IconTo Next Page
To Previous Page IconTo Previous Page
To Previous Page IconTo Previous Page
Loading...
183
Using Protocol Macros Section 5-4
Ladder Programming
Example
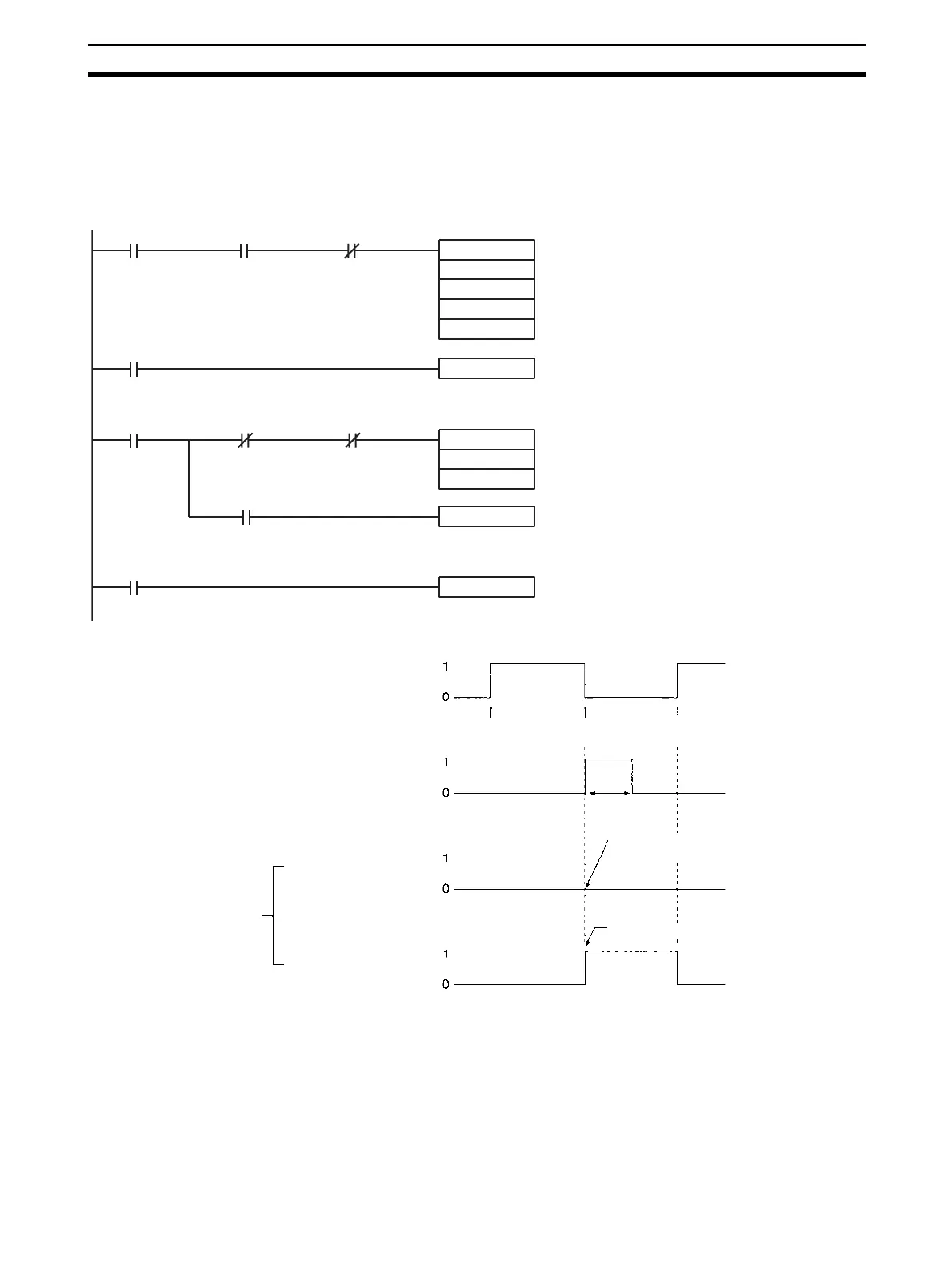
The following diagram shows an example in which sequence number 000
(PRESENT VALUE READ) of a Temperature Controller (E5@K Read System)
is executed using the PMCR(260) instruction. If the sequence has been com-
pleted normally, the present value that has been read is transferred to another
word.
Communications Port
No. 0 Enabled Flag
Protocol Macro
Executing Flag
Protocol Macro
Executing Flag
If input condition CIO 000000 is ON, Communications
Port No. 0 Enabled Flag A20200 is ON, and Protocol
Macro Executing Flag CIO 191915 is OFF, then se-
quence No. 000 is executed for Serial Communications
Board port 2 and the present value is stored in
DM00201.
If Protocol Macro Executing Flag CIO 191915 turns OFF,
CIO 000100 turns ON (and remains ON for one cycle).
Protocol Macro
Executing Flag
Step Error
Processing Flag
If Protocol Macro Executing Flag CIO 191915 is OFF
and Step Error Processing Flag CIO 191914 is OFF
when CIO 000100 turns ON, then the received present
value in DM00201 is moved to DM00300.
If CIO 000100 is ON (sequence end) and Step Error
Processing Flag CIO 191914 is ON, the sequence ends
abnormally and a FAL(06) instruction (Non-Fatal Diag-
nostic Instruction) is executed.
Protocol Macro
Executing Flag
CIO 191915
Sequence
executed
Sequence
completed
Sequence
re-executed
One cycle
When sequence ended
normally:
Step Error Processing
Flag CIO 191914
When sequence ended
abnormally:
Step Error Processing
Fla
g
CIO 191914
DIFD (14) 000100
MOV (21)
D00201
D00300
FAL (06) 01
Input condition
000000
A20200
191915
191915
000100
191915 191914
191914
PMCR
#02E1
#0000
D00100
D00200
00100
FAL (06) 02
A21900
If the Communications Port Error Flag for port 0 turns
ON, a FAL(06) instruction (Non-Fatal Diagnostic Instruc-
tion) is executed.
Communications
Port No. 0 Error Flag
Step Error
Processing Flag
Present value in DM00201
moved to DM00300
FAL instruction executed

Table of Contents

Related product manuals