EasyManua.ls Logo

Onkyo HT-R391

Onkyo HT-R391
37 pages
To Next Page IconTo Next Page
To Next Page IconTo Next Page
To Previous Page IconTo Previous Page
To Previous Page IconTo Previous Page
Loading...
TX-SR313/ HT-R358/ 558/ 391/ HT-RC430
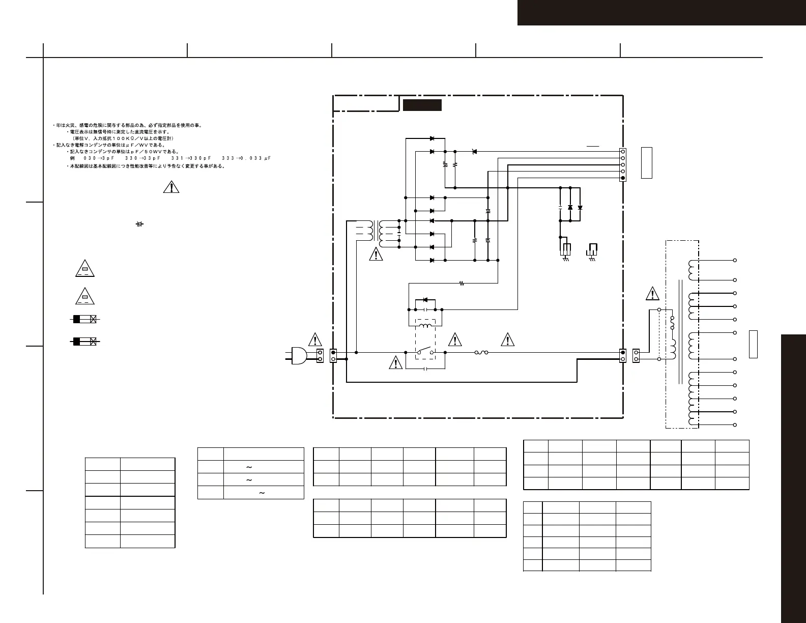
SCHEMATIC DIAGRAMS-11 (PART-11)
POWER SUPPLY SECTION
TX-SR313/ HT-R358/ 558/ 391/ HT-RC430
+12VD_ST
GNDDG
+10VS
POWERD
POFF
1
3
S3
S2
S4
S1
T901
N.C.
N.C.
N.C.
*
*
N.C.
N.C.
P,M Type : UDZS5.1B
NPT-1520JQ
T3
NPT-1520JQ NPT-1520JQ
T902
*
TYPE
D,F
P,M
NPT-1520GQ
TYPE
D,F
P,M
*
*
D,F Type : UDZS4.7B
*
HT43HT39
NPT-1520GQ NPT-1520GQ
CODE MODEL
T3
HT43 HT-RC430
HT39 HT-R391
HT35
HT-R558HT55
HT-R358
TYPE AC
120V
/ 60HzD
/ 50/60Hz220-240V
P
M
230V
/ 50Hz
HT59 HT-R591
F901
TYPE
D,F
P,M
TYPE
D,F
P,M
RL901
8A 125V
T4AL250V
8A 125V
T3
NRL-1P5A
NRL-1P5A
NRL-1P5A NRL-1P5A
NRL-1P5A
HT39 HT43
NRL-1P5A
T4AL250V
8A 125V
T4AL250V
T3 HT39 HT43
NPT-1603D NPT-1603D
NPT-1603M
---
TYPE
D,F
P
M
NPT-1604D
NPT-1604M
T3 HT39 HT43
NPT-1603D
NPT-1603M
NPT-1603P
NPT-1603M
HT59
T901
BAPS-0659
POWER SUPPLY
TX-SR313
HDMI
TO BAHDM-0678(PART-14)
TO BAETC-1137(PART-5)
AMP
HT59
NPT-1520JQ
NPT-1520GQ
8A 125V
T4AL250V
HT59
NRL-1P5A
NRL-1P5A
HT59
NPT-1603PNPT-1603P
---
--- ---
HT55
------
---
---
---
---
---
---
HT35/55
HT35/55
HT35/55
HT35
MODEL NO. TX-SR313, HT-RC430, HT-R391/358/558/591
SCHEMATIC DIAGRAM (PART-11) PS SECTION
2011 . 12 . 26
D TYPE ONLY
R921
47(1/2W)
C902
104Z
D930 KDS4148U
D931
KDS4148U
D923
KDS4148U
D921
KDS4148U
D924
KDS4148U
D922
KDS4148U
D925
KDS4148U
C901
0.01uF/275V/X2
C933
4.7/50
D933
KDS4148U
D935
KDS4148U
AC_CORD
C911 102J
D912
KDS4148U
1 2
D911
KDS4148U
2 1
C921
223K
E902
2 3 41
RL901
3
4 1
2
E901
2 3 41
F901D
F901C
1
C922
2200/16
+
C930
470/16
+
R934
100K
R922
82K
D934
UDZS5.1B
T902
NPT-1520**
1
2
3
4
5
6
7
8
9
P911NPLG-2P631
1
2
JL901A
NSCT-5P876
5
4
3
2
1
P901A
NPLG-2P631
2
1
U0044
POWER SUPPLY PC BOARD
EX)030:3pF 330:33pF 331:330pF 333:0.033uF
)ARE IN uF/WV.
+
ELECTROLYTIC CAPACITORS(
CIRCUIT IS SUBJECT TO CHANGE FOR IMPROVEMENT.
ARE CRITICAL FOR SAFETY.
Notes
REPLACE ONLY WITH PART NUMBER SPECIFIED.
THE COMPONENTS IDENTIFIED BY MARK
VOLTAGE(MEASUREDWITHVOLTMETER) IS DCVOLTAGE
(NO INPUT SIGNAL in HT-R340MPP)
ALL CAPACITORS ARE IN pF/50WV UNLESS OTHERWISE NOTED.
CAUTION
FOR CONTINUED PROTECTION
RATING REFER TO THE MAKING ADJACENT TO THE SYMBOL.
CE SYMBOLE INDIQUE QUE LE FUSIBLE UTLISE EST
A LENT, E POUR UNE PROTECTION PERMANENTE,N'UTILISER
QUE DES FUSIBLES DE MEME TYPE. CE DARNIER EST
INDIQUE LA QU LE PRESENT SYMBOL EST APPOSE.
THIS SYMBOL LOCATED NEAR THE FUSE INDICATES
THAT THE FUSE USED IS SLOW OPERATING TYPE
FOR CONTINUED PROTECTION AGAINST FIRE FUSE
HAZARD,REPLACE WITH SAME TYPE FUSE. FOR FUSE
AFIN D'ASSURER UNE PROTECTION
PERMANENTE CONTRE LES RISQUES
D'INCENDIE, REMPLACER UNIQUEMENT
PAR UN FUSIBLE DE MEME TYPE
ET CALIBRATION COMME INDIQUE.
ATTENTIION
AGAINST FIRE HAZARD, REPLACE
ONLY WITH FUSE OF SAME TYPE
AND RATING INDICATED.
A V
A V
A
1
2
3
4
B C D E

Other manuals for Onkyo HT-R391

Related product manuals