EasyManua.ls Logo

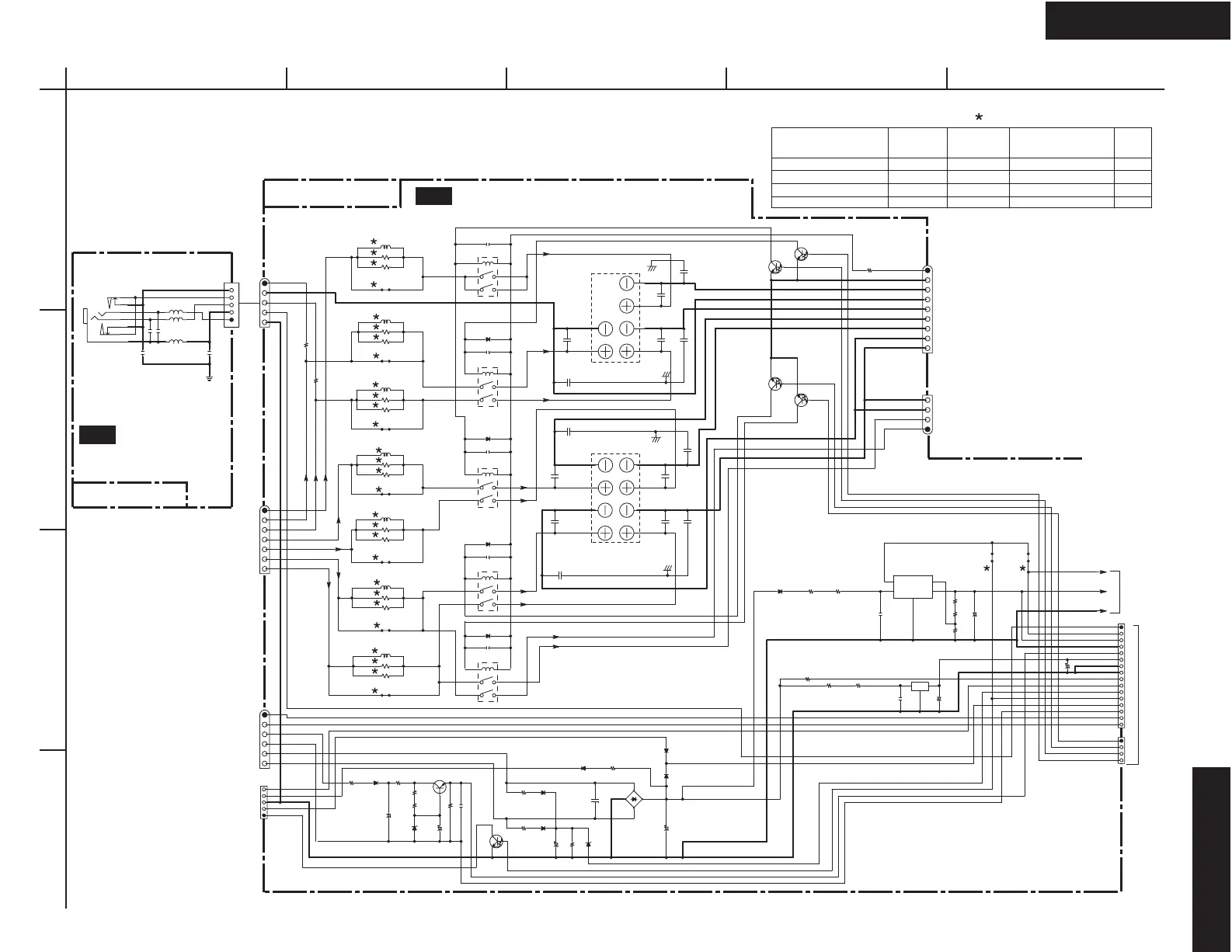
Onkyo TX-SR504 - Schematic Diagrams-5: Speaker Terminal Section

Onkyo TX-SR504
131 pages
Print Icon
To Next Page IconTo Next Page
To Next Page IconTo Next Page
To Previous Page IconTo Previous Page
To Previous Page IconTo Previous Page
Loading...
CR-N7
SCHEMATIC DIAGRAMS-5
SPEAKER TERMINAL SECTION
TX-SR504/504E/8450
TX-SR504/504E/8450
SBRSPE
SBLSPE
RSPE
SLSPE
SRSPE
SPRLSB
SPRLB
HPL
LSPE
HPR
SPL
SPR
SPC
HPDET
SPSBR
SPSBL
SPSL
SPSR
LSPE
POFF2
CSPE
SPRLCS
RLGND
SPRLF
+24V
APOWER
+5VDIS
-VP
SEC3-1
SEC3-2
POWERD
+5VDSP
POFF
POFF2
-VP
SPRLB
SPRLSB
SPRLCS
SPRLF
+10S+12VD
+5VDIS
APOWER
FLAC1
FLAC2
SEC2-2
SEC2-1
POFF
+12VD
+10VS
SBRSPE
SBLSPE
SPBROUT
SPBLOUT
+5V_VD
HPDET
VPOWER
VPOWER
MPUGND
MPUGND
+10VDSP
To NAAF-8779 (2/2)
(SD-2 : D-5)
L
R
R
L
To NAAF-8779 (2/2)
(SD-2 : E5)
MPUGND
To NAPS-8787
(SD-8 : D1)
To NAETC-8788
(SD-8 : E1)
FLAC1
FLAC2
To NAVD-8804 (1/2)
SD-4 (E2)
+5V_XM
GND_XM
(VMUT)
To NADG-8798
SD-3 (D-1)
MPUGND
MPUGND
C6602
103J
J6600
J6604
J6626
J6625
L6606
R6606
R6616
R6615
R6605
L6605
R6614
R6604
L6604
R6613
R6603
L6603
R6611
R6601
L6601
R6610
R6600
C6603
103J
L6600
C9012
334J
R6612
R6602
L6602
R6691
390(1/2W)
C6600
103J
RL6600
1
3
4 5
2
6
RL6602
1
3
4 5
2
6
RL6603
1
3
4 5
2
6
C6605
103J
RL6605
1
3
4 5
2
6
J6851
C9031
223Z
D6600
1SS133
D6603
1SS133
D6605
1SS133
D6607
1SS133
C6607
103J
C6641
103J
C6640
103J
C6651
102J
C6642
103J
C6652
102J
C6650
102J
P6601
P6602
C6653
102J
C6643
103J
C6645
103J
C6644
103J
C6646
103J
C6654
102J
C6656
102J
C6655
102J
R6692
390(1/2W)
Q6603
RN1205
Q6604
RN1205
JL6605B
5
4
3
2
1
C9013
3.3/50
D9016
MTZJ5.6B
JL6603B
1
2
3
4
5
6
7
8
9
Q6602
RN1205
Q6601
RN1205
R6690
10(1/2W)
D9011
D3SBA20
R9014
100K
C9011
10000/16
JL6604B
4
3
2
1
R9031
3.3(2W)
R9032
3.3(2W)
D9012
RL1N4003
D9017
RL1N4003
R9012
1(1/2W)
D9014
1SS133
D9015
1SS133
R9013
1(1/2W)
JL6600B
7
6
5
4
3
2
1
D9013
RL1N4003
R9011
4.7(1/2W)
Q9002
RN1205
JL901B
1
2
3
4
5
R9033
0.22(1/2W)
D9022
RL1N4003
R9035
1.8(2W)
R9036
1.8(2W)
Q9031
MPC2905BHF
1
I
2
G
3
O
JL9101B
1
2
3
4
5
6
C9006 223Z
R9004
33K
C9005
47/50
Q9001
2SC2235
R9002
8.2K
D9005
MTZJ36D
R9003
8.2K
R9001
220(1W)
D9001
RL1N4003
C9001
470/63
+
RL6607
1
3
4 5
2
6
C9032
470/6.3
+
C9033
100/16
R9005
0.22(1/2W)
P2005B
1
2
3
4
5
6
7
8
9
10
11
12
13
14
15
16
P2006B
1
2
3
4
C9025
470/6.3
+
C9024
223Z
R9024
100K
R9025
8.2K
R9026
33K
Q9022
BA00BC0WT
1
Vc
2
Vin
3
GND
4
Vo
5
Adj
J6619
J6620
J3202
P-TYPE
J3201
D-TYPE
NAVD-8804 (2/2)
U20
VIDEO & SPEAKER TERMINAL PC BOARD
NAETC-8790
E7201
C7203
NC
C7204
NC
L7201
022M
L7202
022M
L7203
022M
C7202
NC
C7201
NC
JL6605A
1
2
3
4
5
P7201
1
8
7
3
2
4
5
U10
HEADPHONE JACK
PC BOARD
PHONES
Refer to following table about the parts displayed by mark " ".
CENTER
SPEAKER
LR
FRONT A
SPEAKERS
SURROUND
SPEAKERS
SURROUND BACK
SPEAKERS
To NAAF-8779 (1/2)
(SD-1 : H-5)
<Note>
NC = No mount of parts.
SD-Z : XY
Location of connected terminal in schematic diagrams.
SD-Z = Schematic diagrams-Z. X = A to H, Y = 1 to 5.
TX-SR504 MDD, MDC
TX-SR504 MGR, MGQ, MGK
TX-SR504E MPP
TX-SR8450 MGR
L6600 - 6606
R6600 -6606
R6610 - 6616
J6600, J6604
J6619, 6620
J6625, 6626, J3201, J6851
J3202
NC
S1.3C
S1.3C
S1.3C
NC
22
22
22
YES
NC
NC
NC
NC
YES
YES
YES
+9.8V
+5V
+11.2V
+4.9V
+21.9V
+4.7V
A
1
2
3
4
BCDE
TYPE
+5.2V
+10V

Related product manuals