EasyManua.ls Logo

Onkyo TX-SR504E - SCHEMATIC DIAGRAMS-4; Video Section

Onkyo TX-SR504E
131 pages
Print Icon
To Next Page IconTo Next Page
To Next Page IconTo Next Page
To Previous Page IconTo Previous Page
To Previous Page IconTo Previous Page
Loading...
CR-N7
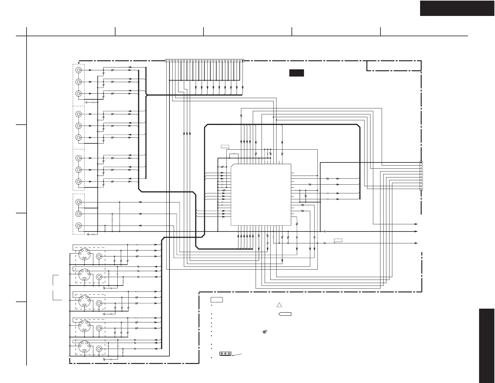
SCHEMATIC DIAGRAMS-4
VIDEO SECTION
TX-SR504/504E/8450
TX-SR504/504E/8450
CIN_V1
CIN_V2
YIN_DVD
YIN_V1
YIN_V2
VIN_V1
YIN_V1
VIN_V2
YIN_V2
CYIN1
PBIN3
CYIN3
CYIN2
PRIN2
PBIN2
PRIN1
PBIN1
PBIN1
PBIN2
PBIN3
PRIN1
PRIN2
PRIN3
CIN_DVD
VIN_DVD
VOUT_MON
PRIN3
PR_IN3
CY_IN3
PR_IN2
PB_IN2
CY_IN2
PR_IN1
PB_IN1
CY_IN1
PB_IN3
CYIN1
CYIN2
CYIN3
S5
S4
S3
S2
S1
S6
S7
S8
COUT_MON
YOUT_MON
+5V_VD
CIN_V2
CIN_V1
VIN_DVD
YIN_DVD
CIN_DVD
YOUT_V1
VOUT_V1
COUT_V1
VSWS7
VSWS6 SDET
VSWS5 VCRST
VSWS4 VSYNC
VSWS3
VSWS2
VSWS1
VSWS8
V4V
S7
CYOUT2
PBOUT2
PROUT2
S6
PR_IN3
CY_IN1
PB_IN1
PR_IN1
CY_IN2
PB_IN2
PR_IN2
CY_IN3
PB_IN3
VPOWER
VPOWER
VIN_V2
VIN_V1
+5V
+5V
COUT_MON
YOUT_MON
VOUT_MON
COUT_V1
YOUT_V1
VOUT_V1
PROUT
PBOUT
CYOUT
GND_VD
GNDV4V
MPUGND
OUT
VIDEO 2 IN
VIDEO 1
DVD IN
MONITOR
OUT
IN1
IN2
IN3
Y
Y
Y
Y
PB
PR
PR
PB
PR
PB
PR
NAVD-8804(1/2)
NC
C
Y
CY
C
Y
C
Y
CY
To NADG-8798
(SD-3 : C1)
To NAVD-8804 (2/2)
SD-5 (E-3)
OUT
COMPONENT VIDEO
PB
(VMUT)
(VMUT)
VIN_V3
C3022
100/16
C3006
100/16
C3004
470/6.3
C3007
470/6.3
P3005
C3013
100/16
Q3001
AN15880A
1
Y1
2
Y2
3
Y3
4
Y4
5
Y5
6
VCC1
7
BIAS
8
C1
9
C2
10
C3
11
C4
12
C5
13
GND1
14
CY1
15
CY2
16
CY3
17
PB1
18
PB2
19
PB3
20
PR1
21
PR2
22
PR3
23
S1
24
PROUT2
25
S2
26
S3
27
PROUT1
28
S4
29
GND5
30
S5
31
VCC5
32
PBOUT2
33
PBOUT1 : 33
34
CYOUT2-FB : 34
35
CYOUT2
36
CYOUT1-FB
37
CYOUT1
38
GND4
39
COUT3
40
COUT2
41
COUT1
42
VCC4
43
YOUT3-FB
44
YOUT3
45
YOUT2
46
YOUT1
47
S10
48
VOUT3-FB : 48
49
VOUT3
50
NC
51
S6
52
S7
53
GND3
54
VOUT2
55
VCC3
56
S8
57
S9
58
VOUT1
59
MUTE
60
V1
61
V2
62
V3
63
V4
64
V5
R3034
75
R3033
75
R3032
75
R3031
75
R3030
75
R3029
75
R3028
75
R3027
75
R3026
75
R3023
75
R3024
75
R3025
75
R3017
75
R3018
75
R3019
75
R3001
75
R3003
75
C3038
223Z
C3005
223Z
C3012
223Z
C3042
223Z
C3014
223Z
C3023
223Z
R3014
75
R3015
75
R3016
75
C3035
223Z
P3001
C3053
10/50
C3052
10/50
C3051
10/50
C3049
10/50
C3048
10/50
C3047
10/50
C3046
10/50
C3045
10/50
C3044
10/50
C3041
10/50
C3040
10/50
C3037
10/50
C3036
10/50
C3034
10/50
C3033
10/50
C3018
470/6.3
C3024
470/6.3
C3001
100/16
C3003
22/50
C3002 223Z
C3060
102K
C3057 102K
C3056 102K
C3058 102K
C3059 102K
C3015
223Z
P3004
C3050
102J
C3043 102J
C3039
102J
C3032
102J
C3031 102J
P3003
P3002
P3007A
27
26
25
24
23
22
21
20
19
18
17
16
15
14
13
12
11
10
9
8
7
6
5
4
3
2
1
C3061
10/50
C3017
470/6.3
C3021
470/6.3
C3011
470/6.3
C3009
470/6.3
R3002
75
C3055
470/6.3
C3054
470/6.3
R3013
75
R3012
75
R3011
75
R3022
75
R3021
75
R3020
75
C3062
220J
C3063
220J
C3064
220J
C3065
220J
C3066
220J
C3067
220J
C3068
220J
C3069
220J
R3038
2.2
C3070
220J
P2004B
1
2
3
4
5
6
7
8
9
10
R3039
1
U20
VIDEO & SPEAKER TERMINAL PC BOARD
THE COMPONENTS IDENTIFIED BY MARK ARE CRITICAL FOR SAFETY
REPLACE ONLY WITH PART NUMBER SPECIFIED.
VOLTAGE (MEASURED WITH VOLTMETER) IS DC VOLTAGE.(NO INPUT SIGNAL).
ALL PNP TRANSISTORS ARE EQUIVALENT TO 2SA1015-GR UNLESS OTHERWISE NOTED.
ALL NPN TRANSISTORS ARE EQUIVALENT TO 2SC1815-GR UNLESS OTHERWISE NOTED.
ALL DIODES ARE EQUIVALENT TO 1SS133 UNLESS OTHERWISE NOTED.
ELECTROLYTIC CAPACITORS ( ) ARE IN uF/WV.
ALL CAPACITORS ARE IN pF/50WV UNLESS OTHERWISE NOTED.
EX) 030- 3pF 330- 33pF 331- 330pF 333- 0.033uF
ALL RESISTORS ARE IN OHMS 1/4WATTS UNLESS OTHERWISE NOTED.
THE THICK LINES ON PC BOARD ARE THE PRINTING SIDE OF THE PARTS.
EX) PRINTING SIDE
CIRCUIT IS SUBJECT TO CHANGE FOR IMPROVEMENT.
!
NOTE
NC
+5V
<Note>
NC = No mount of parts.
SD-Z : XY
Location of connected terminal in schematic diagrams.
SD-Z = Schematic diagrams-Z. X = A to H, Y = 1 to 5.
S VIDEO
VIDEO
IN
+5V
VIDEO SWITCH
A
1
2
3
4
BCDE

Other manuals for Onkyo TX-SR504E

Related product manuals