EasyManua.ls Logo

Onkyo TX-SR504E - IC BLOCK DIAGRAMS AND TERMINAL DESCRIPTIONS-1; Q201: D707 E001 RFP250 (32 bit Floating-Point Digital Signal Processor)-1;7

Onkyo TX-SR504E
131 pages
Print Icon
To Next Page IconTo Next Page
To Next Page IconTo Next Page
To Previous Page IconTo Previous Page
To Previous Page IconTo Previous Page
Loading...
TX-SR504/504E/8450
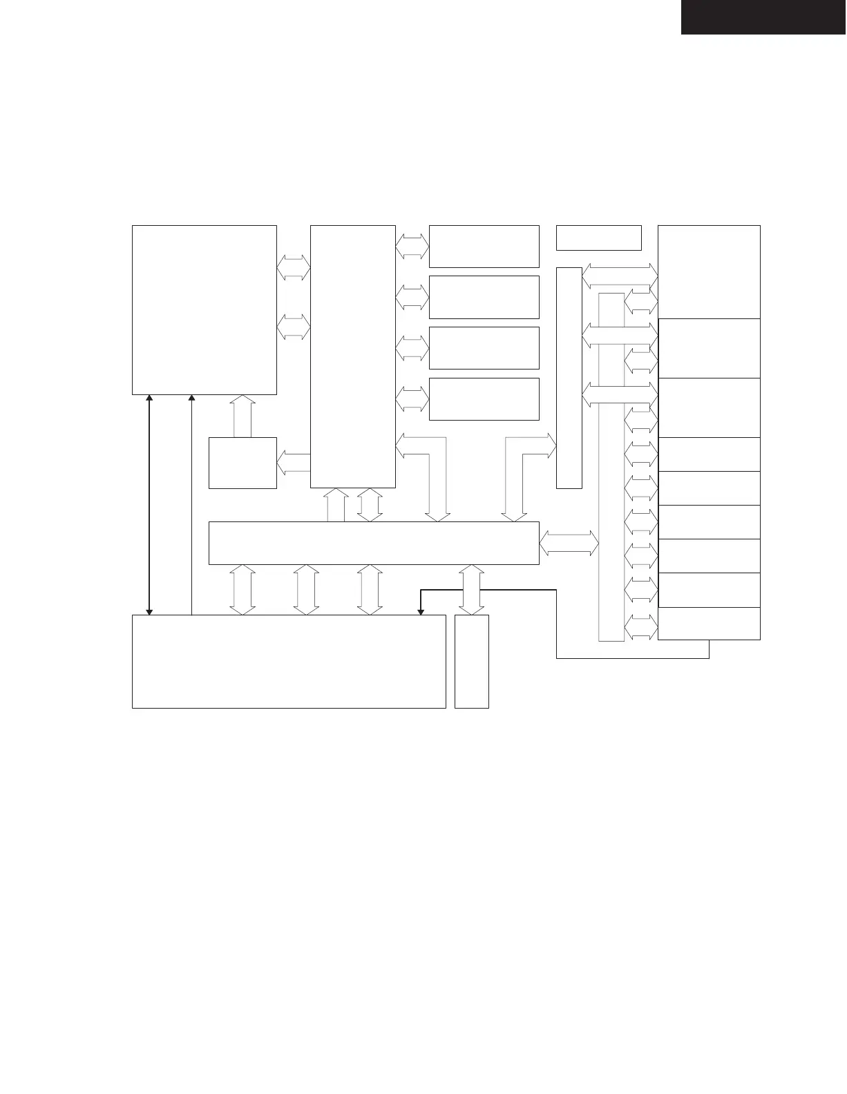
IC BLOCK DIAGRAMS AND TERMINAL DESCRIPTIONS-1
Q201 : D707E001RFP250 (32 bit Floating-Point Digital Signal Processor)-1/7
BLOCK DIAGRAM
Program/Data
RAM
192K Bytes
192
256
Program/Data
ROM Page1
256K Bytes
256
256
256K Bytes
ROM Page3
Program/Data
Program/Data
ROM Page2
256K Bytes
3232
DMPPMP
CSP
32
256
Program
Cache
32K Bytes
64
D1
Data
R/W
R/W
Data
D2
64
256
Program
Fetch
INTI/O
C67x+ CPU
Memory
Controller
32
High-Performance
Crossbar Switch
32
McASP DMA Bus
JTAG EMU
32
32
32
32
32
32
32
Peripheral Configuration Bus
EMIF
32
Events
In
32
MAX1MAX0
32
CONTROL
32
Interrupts
Out
I/O
dMAX
McASP0
16 Serializers
McASP1
6 Serializers
McASP2
2 Serializers
DIT Only
SPI1
SPI0
I2C1
I2C0
RTI32
PLL
32
32
32
32

Other manuals for Onkyo TX-SR504E

Related product manuals