EasyManua.ls Logo

Opacmare 4994 - Page 23

Default Icon
50 pages
Print Icon
To Next Page IconTo Next Page
To Next Page IconTo Next Page
To Previous Page IconTo Previous Page
To Previous Page IconTo Previous Page
Loading...
USE AND MAINTENANCE INSTRUCTIONS
MANUALE DI USO E MANUTENZIONE
22
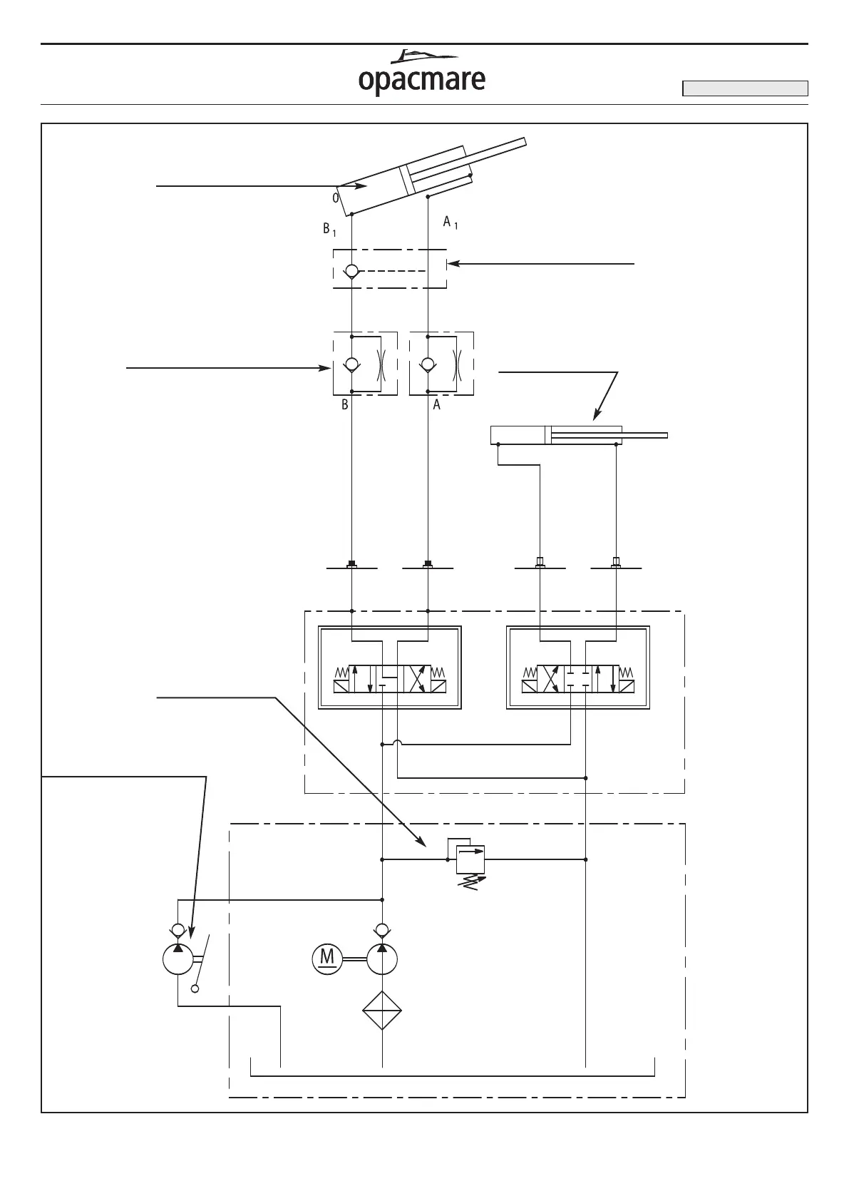
Block valve
Valvola di blocco
Lifting cylindres
Cilindro di sollevamento
Relief valve
(180bar)
Valvola di massima
pressione (180bar)
Flow regulator valves
Valvole regolatrici di flusso
Emergency manual pump
Pompa a mano emergenza
Extension cylinder
Cilindro di sfilo
Transom gangway
Passerella esterna
EDITION OF 08/2008
Hydraulic diagram gangway mod. 3773 - 3883 - 4994 - 5995 - 6996 - (picture 12)
Diagramma idraulico passerella mod. 3773 - 3883 - 4994 - 5995 - 6996 - (fig. 12)

Related product manuals