EasyManua.ls Logo

Opop H 430 - Page 7

Default Icon
31 pages
Print Icon
To Next Page IconTo Next Page
To Next Page IconTo Next Page
To Previous Page IconTo Previous Page
To Previous Page IconTo Previous Page
Loading...
Heat and Comfort
7
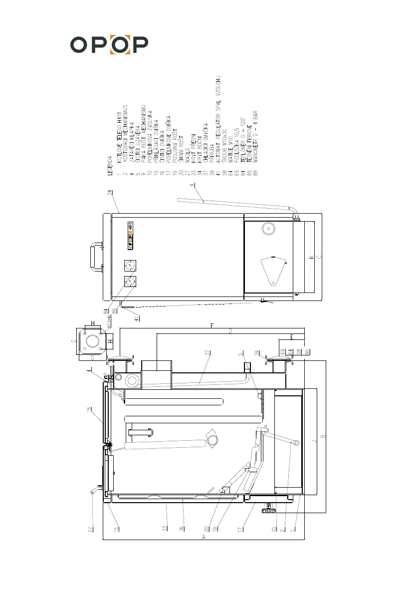
Fig. 2: H418 Boilers

Related product manuals