EasyManua.ls Logo

Pace PAO - FIGURE 97 - Thrust Restraint Assembly; FIGURE 98 - Plenum Fan Thrust Restraint

Default Icon
108 pages
Print Icon
To Next Page IconTo Next Page
To Next Page IconTo Next Page
To Previous Page IconTo Previous Page
To Previous Page IconTo Previous Page
Loading...
Form PA102.20-N1
61
Installation & Assembly Manual │ PACESECTION 3 - HANDLING, STORAGE, AND INSTALLATION
Issue Date: 07/03/2018
3
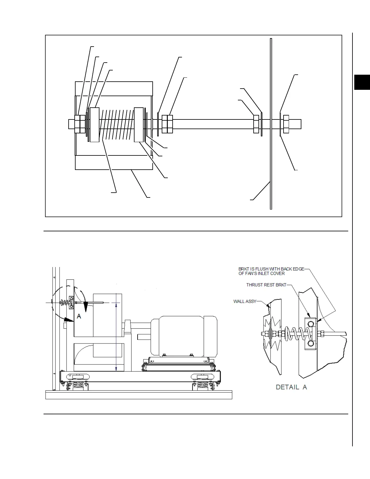
STEEL WASHER
STEEL WASHER
STEEL WASHER
FAN END
SPRING
STEEL WASHER
STEEL WASHER
RUBBER WASHER
RUBBER WASHER
STEEL CUP
STEEL CUP
BULKHEAD OR
BULKHEAD CLIP
DOUBLE NUTS FOR
ADJUSTMENT
DOUBLE NUTS LOCKED TOGETHER
THRUST RESTRAINT
MOUNTING BRACKET
(OR CLIP)
NUT
NUT
THREADED ROD
Figure 97 - Thrust Restraint Assembly
LD09670
LD17216
Figure 98 - Plenum Fan Thrust Restraint

Table of Contents

Related product manuals