EasyManua.ls Logo

Pace PAO - Hot and Chilled Water Coils

Default Icon
108 pages
Print Icon
To Next Page IconTo Next Page
To Next Page IconTo Next Page
To Previous Page IconTo Previous Page
To Previous Page IconTo Previous Page
Loading...
Form PA102.20-N1
89
Installation & Assembly Manual │ PACESECTION 3 - HANDLING, STORAGE, AND INSTALLATION
Issue Date: 07/03/2018
3
Figure 147 - Split Coil - Opposite Side Connections
LD16562
Hot and Chilled Water Coils
1. Connect the water supply to the header connec-
tion on the leaving air side of the coil to achieve
the counter ow of water and air. The return pipe
will be connected to the remaining coil connec-
tion.
2. Install an air vent in place of the top pipe plug on
the return header. To provide for drainage, install
a drain line and shutoff valve in the supply near
the coil, or in place of the plug in the supply con-
nection as shown in Figure 148 on page 89 and
Figure 149 on page 90.
Water Coil Performance
Full steam pressure of water ow must
be supplied at all times - modulating
valves must not be used. A modulating
steam valve or preheat coil can actually
cause the coil to retain condensate due
to a reduced pressure in the coil thus
exposing condensate in the tubes to
freezing conditions. With modulating
steam below 5 psig (valve closure) the
steam may not be fully distributed in all
of the tubes in the coil, causing the outer
tube to cool abnormally. This will create
thermal stress that can lead to possible
"outer tube failure".
The temperature rise of the air (hot water coil) or tem-
perature fall of the air (chilled water coil) leaving the
coil is dependent on the:
Airow across the coil,
Gallons of water ow through the coil, and
Entering water temperature into the coil.
Consult the job submittal form for more information.
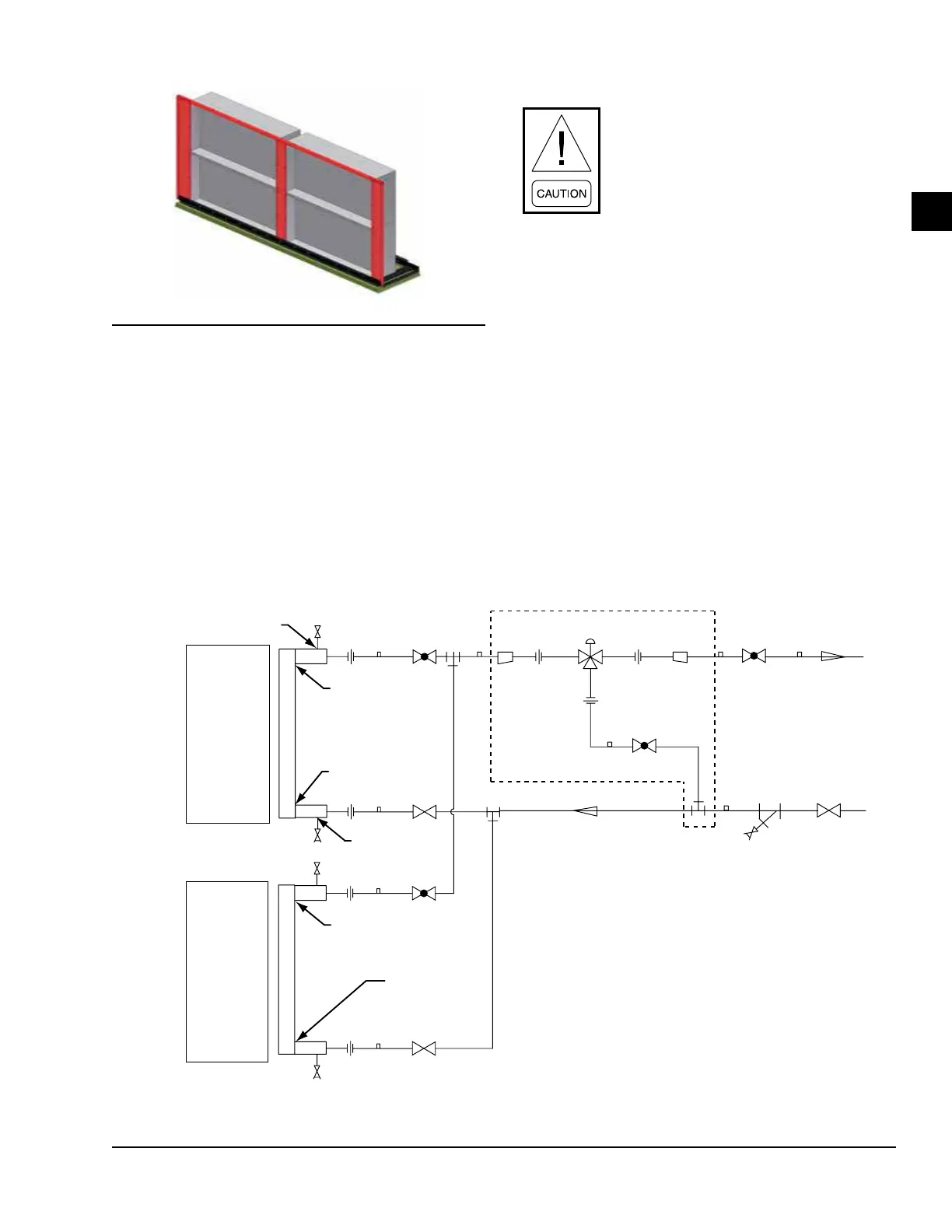
Figure 148 - Chilled Water Coil Connections Example - (Not for Construction)
LD12470
VENT
RETURN
RETURN
SUPPLY
SUPPLY
COIL
COIL
PT
PLUG
DRAIN
UNION
GLOBE
VALVE
GATE
VALVE
PT
PLUG
GATE VALVE W/
HOSE BIB
UNION
GLOBE
VALVE
REDUCING
TEE
CHILLED
WATER
SUPPLY
CHILLED
WATER
RETURN
3 WAY CONTROL VALVE
ECCENTRIC
REDUCER
STRAINER

Table of Contents

Related product manuals