EasyManua.ls Logo

Panasonic CU-B14DBE5 - Wiring Diagram; Cs-F18 Dte5

Panasonic CU-B14DBE5
109 pages
Print Icon
To Next Page IconTo Next Page
To Next Page IconTo Next Page
To Previous Page IconTo Previous Page
To Previous Page IconTo Previous Page
Loading...
15
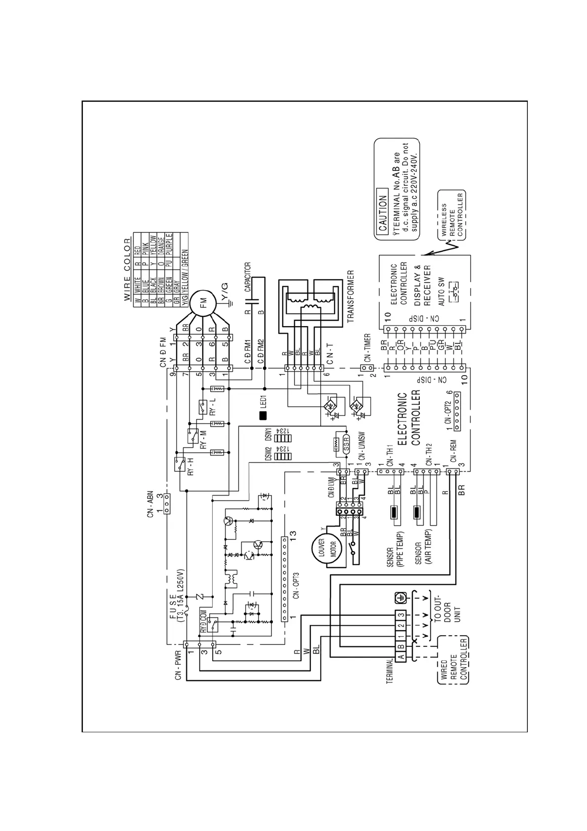
7 Wiring Diagram
7.1. CS-F18DTE5

Table of Contents

Other manuals for Panasonic CU-B14DBE5

Related product manuals