EasyManua.ls Logo

Panasonic CU-B14DBE5 - Page 35

Panasonic CU-B14DBE5
109 pages
Print Icon
To Next Page IconTo Next Page
To Next Page IconTo Next Page
To Previous Page IconTo Previous Page
To Previous Page IconTo Previous Page
Loading...
35
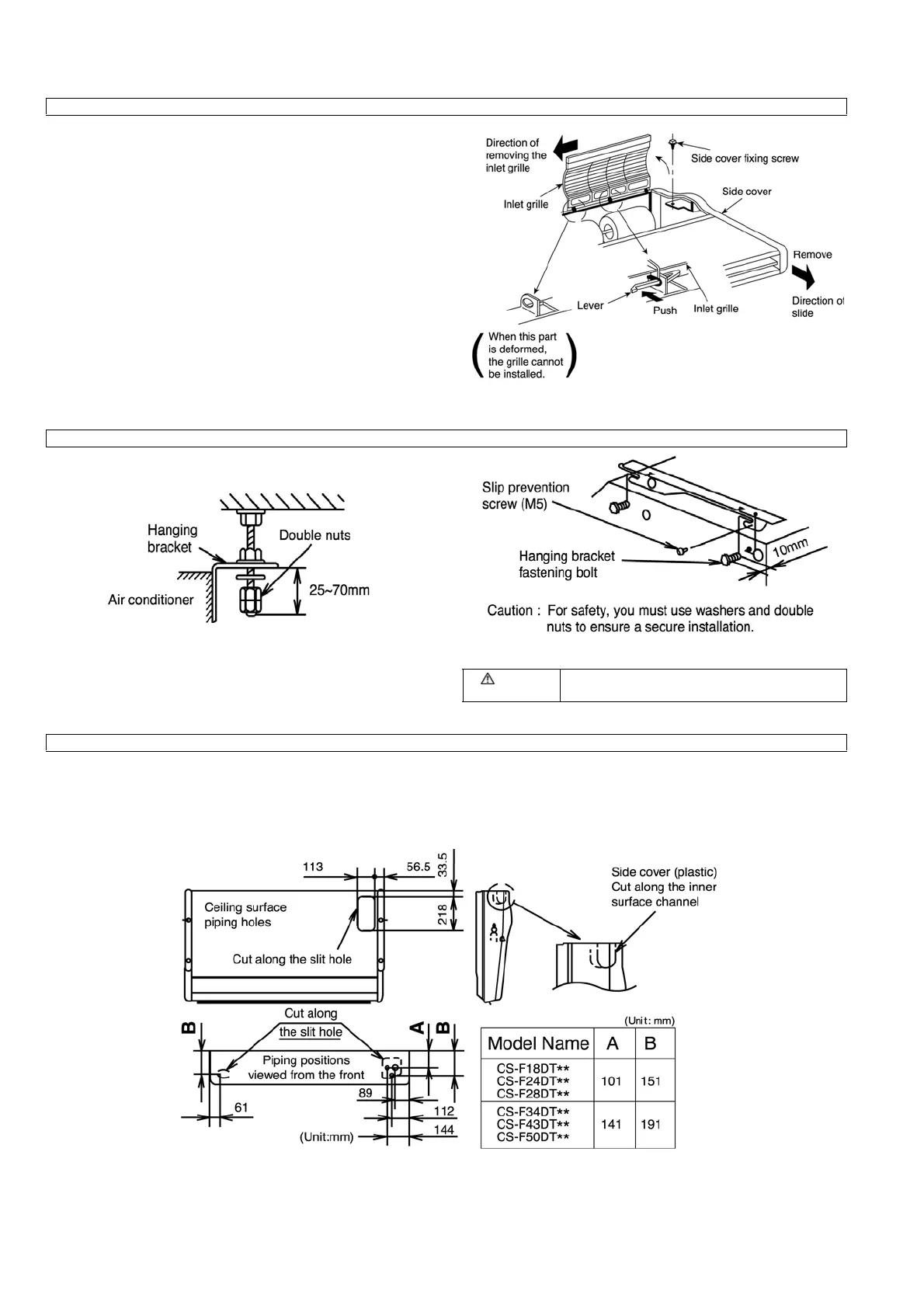
1. Open the inlet grille, and remove the side cover fixing
screw (right and left) from the internal part of the unit.
2. Move the side cover to about 15mm forward to remove it.
Use the packing material (Styrene foam) to support, when
you reverse the top and bottom of the indoor unit.
3. Remove the hanging bracket
a. Remove the slip prevention screws of the brackets
(right and left).
b. Loosen the hanging bracket fastening bolts to about
10mm, and remove the hanging bracket.
* Use either W3/8 or M10 bolts and nuts (local supplied)
Fastening the hanging bracket
The refrigerant piping can be installed on the right, right upper or right rear.
The drain piping can be installed on the right, right rear, left or left rear (there are connection ports on both right and left sides.)
Thermally insulate the drain and refrigerant piping to prevent dew condensation.
After cutting the piping holes, use the edge protection cover (accessory) to protect the end surfaces.
REMOVING THE SIDE COVER AND HANGING BRACKET
Fastening the hanging bracket
Warning
Be sure to tighten the nut and bolt to prevent the
unit from falling.
Piping hole positions

Table of Contents

Other manuals for Panasonic CU-B14DBE5

Related product manuals