EasyManua.ls Logo

Panasonic CU-B28DBE5 - During Group Control Operation

Panasonic CU-B28DBE5
156 pages
Print Icon
To Next Page IconTo Next Page
To Next Page IconTo Next Page
To Previous Page IconTo Previous Page
To Previous Page IconTo Previous Page
Loading...
103
4. The main power is turned on and the connection wire is all ok.
If operation starts in this condition, combination of the B50DBE8 outdoor unit and F24DB4E5 indoor unit will result in
abnormal operation.
Symptom
Remote control unit: “check” flashes
Error code: F30-01 (connected indoor capacity error)
Indoor unit: LED1 on P.C.B flashes
Outdoor unit: LED6, 7 on P.C.B flashes (connected indoor capacity error)
Remedy
1. Turn off the main power.
2. Connect the disconnected wire correctly.
3. Turn on the main power.
4. After 1 minute, start the operation using the remote control.
(Indoor unit operation will start according to the remote control setting.)
(Outdoor unit operation will start after 3-5 minutes.)
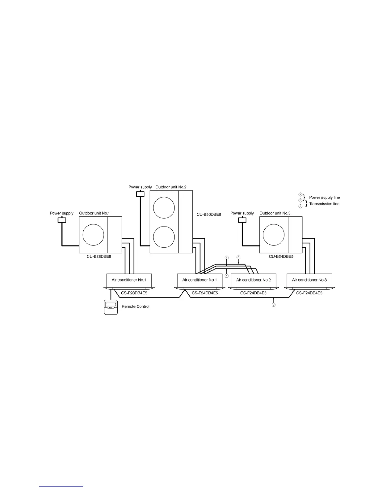
12.3. During group control operation
System example
1. The main power is turned on while the transmission wires between the indoor units are not connected.
(open circuit at A or B or C)
Symptom
Operation of indoor unit No.1 and No.3 is possible.
However “check” flashes in the remote control display for 3-5 minutes after main power is turned on.
Remote control unit: “check” flashes
Error code: F30-01 (indoor capacity error)
Indoor unit: LED1 on P.C.B flashes
Outdoor unit: LED6, 7 on P.C.B flashes
2. The main power is turned on while the remote control connection wire is not connected.
(open circuit at section D)
Symptom
Nothing abnormal appears on the remote control display.
Operation of indoor unit No.1 and No.2 is possible.
However indoor unit No.3 cannot be operated.

Table of Contents

Other manuals for Panasonic CU-B28DBE5

Related product manuals