EasyManua.ls Logo

Panasonic CU-C123KE - Wiring Diagram

Panasonic CU-C123KE
50 pages
Print Icon
To Next Page IconTo Next Page
To Next Page IconTo Next Page
To Previous Page IconTo Previous Page
To Previous Page IconTo Previous Page
Loading...
– 15 –
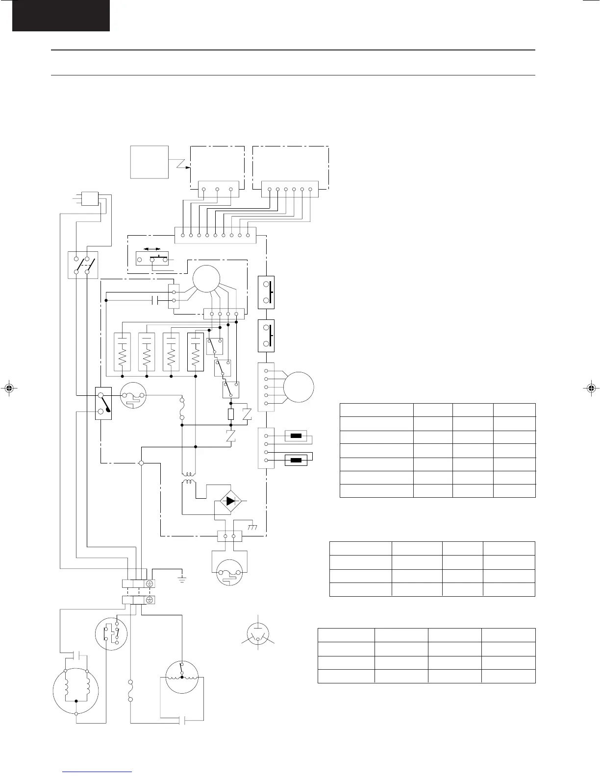
MAC9512086C2
CS-C73KE
21
PROTECTOR
OVER LOAD
TERMINAL
OUTDOOR UNIT
YELLOW
REDBLUE
COMPRESSOR TERMINAL
BRAND MARK
CAPACITOR
FAN MOTOR
CAPACITOR
R
B
B
Y
R
B
B
GRY
Y
COMPRESSOR
FUSE 3.15A
B
CN-FUSE(B)
CR4
31
W
W
RR
R
R
(PIPE TEMP.)
SENSOR
(W)AC
ZNR1
(TEST RUN)
Y
7
220-230V, 50Hz
BL
BL
CONTROLLER
ELECTRONIC
1
CN-C
(G)
ELECTRONIC CONTROLLER
4
31
2
CONTROL No.
REMOTE
AB
BR
R
O
Y
P
Y/G
BL
W
W
R
BR
O
W
531
W
BR
FUSE(3.15A)
L
P
MOTOR
FAN
SSR
CAPACITOR
CN-FM(G)
ZNR2
RY-SHI
RY-H
RY-PWR
TRANSFORMER
PUMP DOWN SW
AUTO SW
CN-RCV (W)
(RECEIVER)
ELECTRONIC
CONTROLLER
WIRELESS
REMOTE
CONTROL
CN-DISP(W)
DISPLAY LAMP
POWER SUPPLY CORD
BR
B
Y/G
W
W
W
W
SENSOR
(INTAKE AIR TEMP.)
1234 54321
CN-TH(Y) CN-STM(G)
AIR
SWING
MOTOR
4321
234
MAIN SW
CN-DISP(W)
INDOOR UNIT
TERMINAL
21
THERMAL
FUSE
(102°C)
THERMAL
FUSE
(113°C)
RY-M
CR3
CR1
CR2
1
3
B
97658
123 56
W
W
W
W
W
J9890634
CS/CU-C73KE/C93KE/C123KE
C73KE07.DWG
Wiring Diagram
REMARKS:
B : BLUE
BR : BROWN
BL : BLACK
W : WHITE
R : RED
O : ORANGE
P : PINK
Y/G : YELLOW/
GREEN
MODEL
CONNECTION
YELLOW-BLUE
YELLOW-BROWN
BROWN-ORANGE
ORANGE-WHITE
WHITE-RED
Resistance of Indoor Fan Motor Windings
CS-C73KE
CWA92288
536.5
77.1
43.9
42.7
111.4
CS-C123KE
CWA92290
457.4
56.1
61.2
25.3
142.5
CS-C93KE
CWA92289
449.5
87.7
56.1
18.6
124.1
MODEL
CONNECTION
BLUE-YELLOW
YELLOW-RED
Resistance of Outdoor Fan Motor Windings
CU-C73KE
CWA95238
310.0
409.8
CU-C123KE
CWA95378
174.5
331.0
CU-C93KE
@
@
@
MODEL
CONNECTION
C-R
C-S
CU-C73KE
2RS110D5CA04
5.382
5.328
CU-C123KE
2KS224D5CA02
2.211
2.924
CU-C93KE
2PS146D5BA04
3.941
3.499
Resistance of Compressor Windings
CS-C73KE / CU-C73KE
CS-C93KE / CU-C93KE
CS-C123KE / CU-C123KE
Untitled-1 6/28/00, 4:11 PM15

Related product manuals