EasyManua.ls Logo

Panasonic CU-E18CKR - Block Diagram

Panasonic CU-E18CKR
134 pages
Print Icon
To Next Page IconTo Next Page
To Next Page IconTo Next Page
To Previous Page IconTo Previous Page
To Previous Page IconTo Previous Page
Loading...
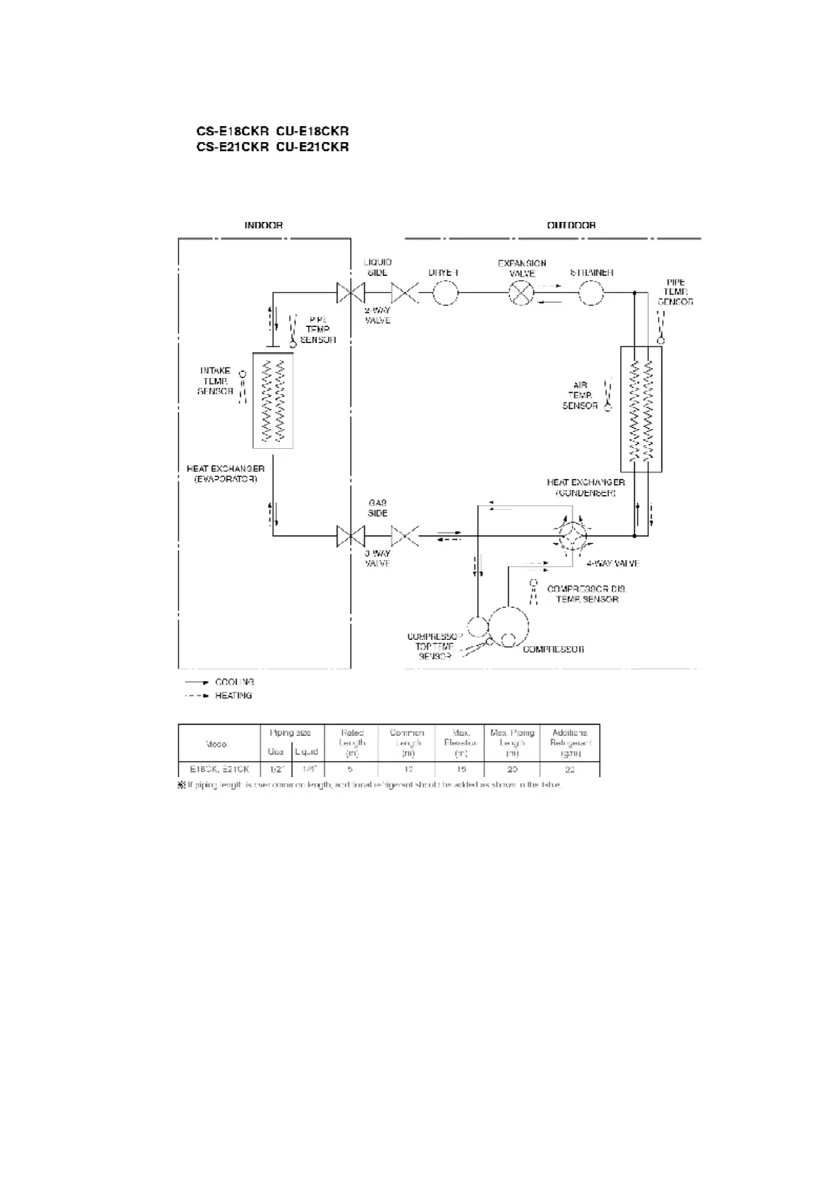
6. Block Diagram

Related product manuals