EasyManua.ls Logo

Panasonic CU-E18DBE - Page 82

Panasonic CU-E18DBE
90 pages
Print Icon
To Next Page IconTo Next Page
To Next Page IconTo Next Page
To Previous Page IconTo Previous Page
To Previous Page IconTo Previous Page
Loading...
C04
1µ
CN-TH
PIPE
TEMP
SENSOR
(20k 3950)
4
3
2
1
AIR
TEMP
SENSOR
(15k 3950)
R31
20k
C05
1µ
C-FM
440V
3.0µF
C19
0.1µ
R33
15k
2
3
4
5
7
4
1
1
B
E
C
NR
DB01
T01
AC01(BLK)
FUSE01
(T 2A L 250V)
C17
3300µ
35V
C11
0.047µ
630V
C16
470µF
25V
C18
220µ
16V
12V
IC04
O
G
I
5V
IC03
O
G
I
G01
(GRN)
C07
4700p
ZNR01
511U
C08
4700p
C12
0.047µ
630V
AC02
(WHT)
AC03
(RED)
C09
2200p
4
1
2
3
PC01
A52LP421GR
4
1
2
3
PC02
TLP421
R45
6.2k
R44
6.2k
D03
Q02
ZD01
ZD02
R50
10k
R49
620
R51
20k
R25
330k
R24
1.21k
R53
5.6k
R52
47k
R36
1k
C06
1000p
2
4
5
3
1
CN-FM
FAN
MOTOR
2
3
1
CN-FB
1
2
1
2
33
C24
0.1µ
C14
0.01µ
R02
12k
R06
1.6k
R05
1.3k
R08
1k
R07
1k
D01
Q01
R01
12k
L01
125uH
D02
CR01
SSR01
C13
0.1µ
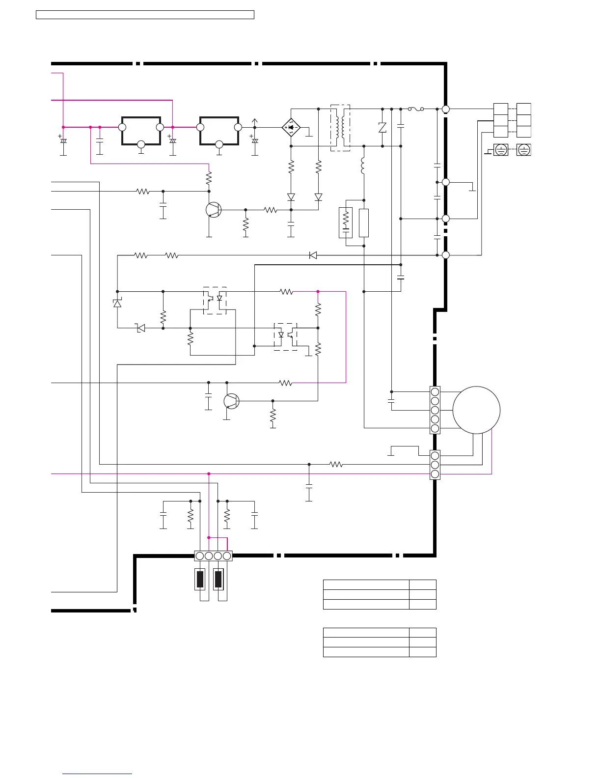
Table 2
MIST Protection
Without Mist Protection
With Mist Protection
JX1
Jumper
None
Table 3
Indoor Unit Location
Ceiling
Floor
JX2
Jumper
None
SCHEMATIC DIAGRAM 3/3
82
CS-E15DTEW CU-E15DBE / CS-E18DTEW CU-E18DBE / CS-E21DTES CU-E21DBE

Table of Contents

Other manuals for Panasonic CU-E18DBE

Related product manuals