EasyManua.ls Logo

Panasonic CU-PS12NKH - Outdoor Unit Electronic Circuit

Panasonic CU-PS12NKH
123 pages
Print Icon
To Next Page IconTo Next Page
To Next Page IconTo Next Page
To Previous Page IconTo Previous Page
To Previous Page IconTo Previous Page
Loading...
32
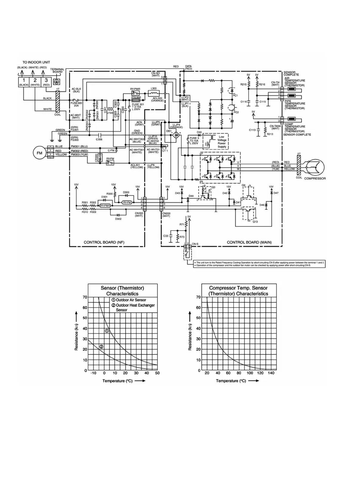
8.2 Outdoor Unit
8.2.1 CU-PS9NKH

Table of Contents

Related product manuals