EasyManua.ls Logo

Panasonic CU-S13PKH - Myanmar Installation Procedures

Panasonic CU-S13PKH
187 pages
Print Icon
To Next Page IconTo Next Page
To Next Page IconTo Next Page
To Previous Page IconTo Previous Page
To Previous Page IconTo Previous Page
Loading...
67
11.2 Indoor Unit
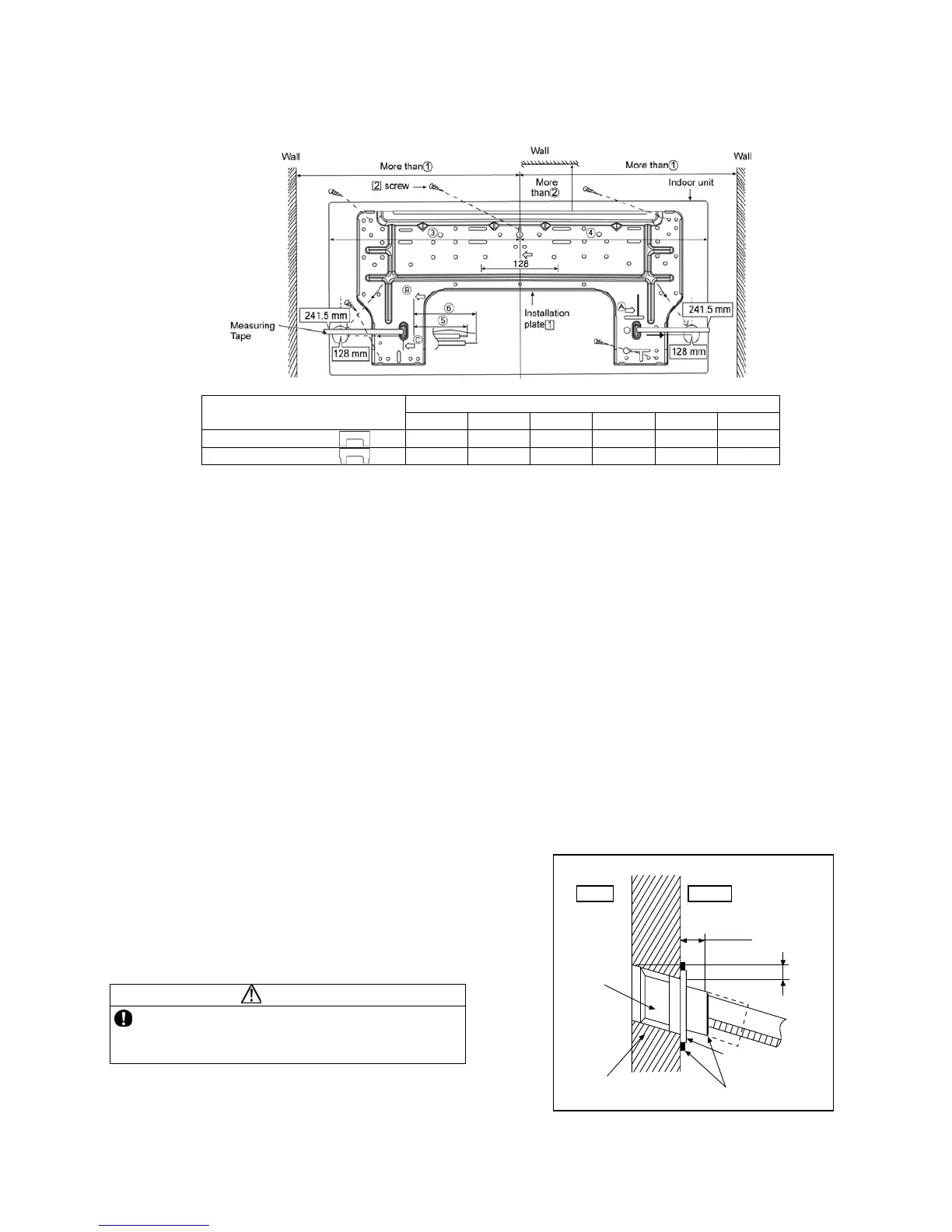
11.2.1 How to Fix Installation Plate
The mounting wall shall be strong and solid enough to prevent if from the vibration.
Dimension
Model
1
2
3
4
5
6
S10***, S13***
490 mm 82 mm 439 mm 432 mm 93 mm 145 mm
S18***, S24***
590 mm 82 mm 539 mm 532 mm 219 mm 269 mm
The centre of installation plate should be at more than
1 at right and left of the wall.
The distance from installation plate edge to ceiling should more than
2.
From installation plate left edge to unit’s left side is
3.
From installation plate right edge to unit’s right side is
4.
B : For left side piping, piping connection for liquid should be about
5 from this line.
: For left side piping, piping connection for gas should be about
6 from this line.
3 Mount the installation plate on the wall with 5 screws or more (at least 5 screws).
(If mounting the unit on the concrete wall, consider using anchor bolts.)
o Always mount the installation plate horizontally by aligning the marking-off line with the thread and using
a level gauge.
4 Drill the piping plate hole with ø70 mm hole-core drill.
o Putting measuring tape at position as shown in the diagram above.
The hole center is obtained by measuring the distance namely 128 mm for left and right hole
respectively. Another method is intersection point of arrow mark extension.
The meeting point of the extension arrow mark is the hole center position.
o Drill the piping hole at either the right or the left and the hole should be slightly slanting to the outdoor
side. (refer to 11.2.2)
11.2.2 To Drill a Hole in the Wall and
Install a Sleeve of Piping
5 Insert the piping sleeve to the hole.
6 Fix the bushing to the sleeve.
7 Cut the sleeve until it extrudes about 15 mm
from the wall.
CAUTION
When the wall is hollow, please be sure to use the
sleeve for tube assembly to prevent dangers
caused by mice biting the connection cable.
8 Finish by sealing the sleeve with putty or
caulking compound at the final stage.
15 mm
Putty or caulking compound
ø70 mm through hole
Indoor
Outdoor
Sleeve
for tube
assembly
Approx. 5 - 7 mm
Bushing for tube
assembly
Wall

Table of Contents

Related product manuals