EasyManua.ls Logo

Panasonic CU-S24TKV - Cs-S18 Tkv Cu-S18 Tkv

Panasonic CU-S24TKV
168 pages
Print Icon
To Next Page IconTo Next Page
To Next Page IconTo Next Page
To Previous Page IconTo Previous Page
To Previous Page IconTo Previous Page
Loading...
22
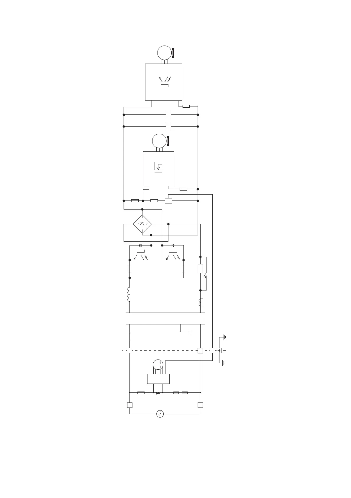
6.3 CS-S18TKV CU-S18TKV
U
SINGLE PHASE
POWER SUPPLY
FUSE301
TEMP. FUSE
TEMP. FUSE
(INDOOR UNIT)
(OUTDOOR UNIT)
N
L
3
2
M
SC
1
++
MS
3 ~
FUSE101
FUSE3
TH3
NTC
SC
FUSE2
RY-PWR
PTC
PTC1
REACTOR
CT101
FUSE103
NOISE FILTER
IC19
MS
3 ~

Table of Contents

Other manuals for Panasonic CU-S24TKV

Related product manuals