EasyManua.ls Logo

Panasonic FPG-C24R2 - Page 123

Panasonic FPG-C24R2
440 pages
Print Icon
To Next Page IconTo Next Page
To Next Page IconTo Next Page
To Previous Page IconTo Previous Page
To Previous Page IconTo Previous Page
Loading...
6-33
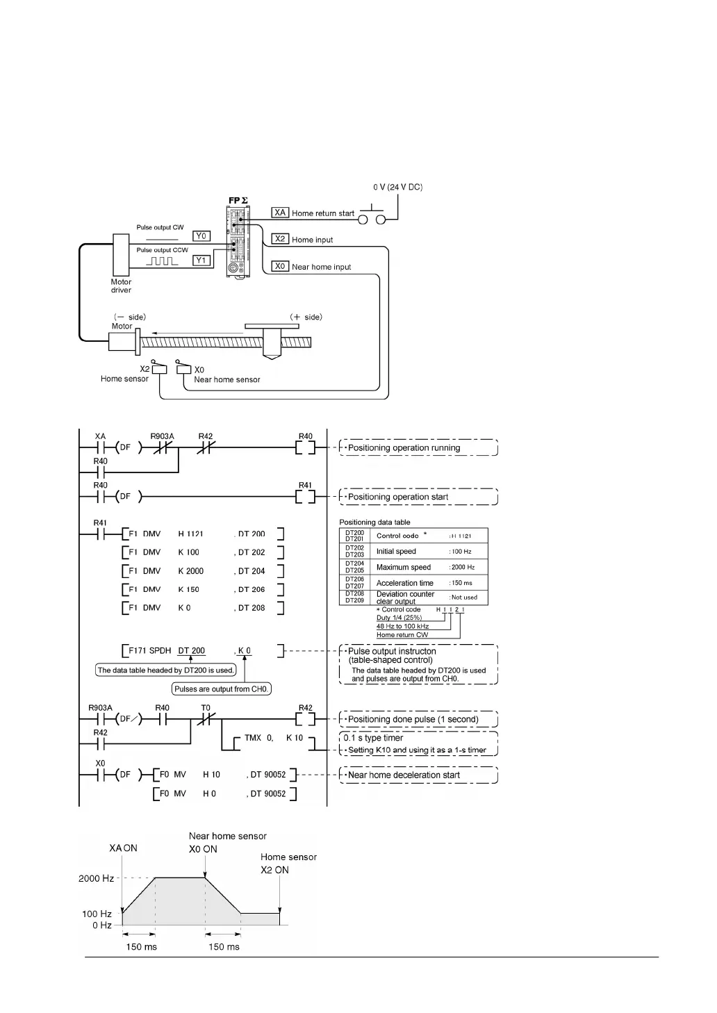
Sample program
Home return operation using CH0: Minus direction
When XA turns on, a pulse is output from CCW output Y1 of the specified channel CH0 and the return to
home begins. When X0 turns on, deceleration begins, and when X2 turns on, home return is completed.
After the return to home is completed, the elapsed value areas DT90044 and DT90045 are cleared to 0.
Program
Pulse output diagram

Table of Contents

Related product manuals