EasyManua.ls Logo

Panasonic Lumix DMC-FZ200P

Panasonic Lumix DMC-FZ200P
91 pages
To Next Page IconTo Next Page
To Next Page IconTo Next Page
To Previous Page IconTo Previous Page
To Previous Page IconTo Previous Page
Loading...
53
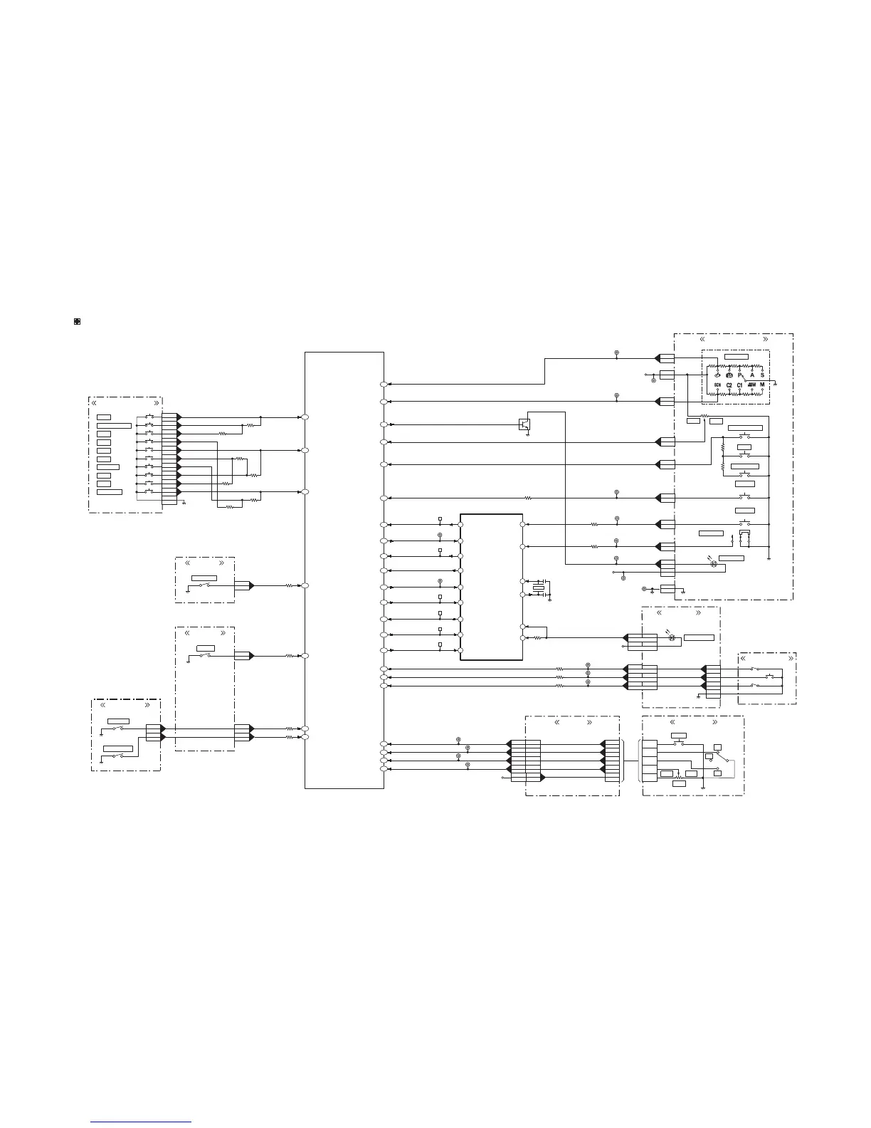
11.2. System Control Block Diagram
SYSTEM CONTROL BLOCK DIAGRAM
DMC-FZ200 SYSTEM CONTROL BLOCK DIAGRAM
IC6001
(VENUS ENGINE)
IC9101
(SYSTEM IC)
SCCS
SO
SCSI
87
84
RESETOUT
SCSCLK
(POWER ON H)
(POWER SW ON)
(POWER ON L) (POWER ON L)
(POWER LED K)
(POWER LED A)
(CMD DIAL F1)
(CMD DIAL F0)
(CMD SET)
(CMD DIAL F1)
(CMD DIAL F0)
(KURUPON)
(CMD DIAL F1)
(CMD DIAL F0)
(PON ON L)
(SHUTTER 0)
(SHUTTER 1)
(MOV FN1 BUR) (MOV FN1 BUR)
(SHUTTER 0)
(SHUT HALF)
(SHUTTER 1)
83
SYSCK
OSCIN
OSCOUT
28
26
PW D3V
(CLK27 SYS)
(SYS RESET)
(S SYSCON CS)
(S SYSCON SI)
(S SYSCON SO)
(S SYSCON SCK)
(FOCUS) (FOCUS ON)
(AF)
(MF)
(AF)
(MF)
(S TELE WIDE)
(FOCUS ON)
(AF)
(MF)
(S TELE WIDE) (S TELE WIDE)
(A3.1V)
(ZOOM AD) (ZOOM AD)
RL9101
RL9109
RL9104
RL9103
RL9102
POWERONH
SHUTTERHALF
POWERSWONL
SHUTTER0
CL9007
TOP OPERATION UNIT
CL6014
CL6005
D10
AB14
AD18
FP9002
14
FP9002
1
FP9002
2
FP9002
3,8,13
FP9002
9
FP9002
6
FP9002
7
TELE
ON OFF
CL9005
CL9032
CL9024
CL9023
CL9022
CL9016
CL9010
CL9006
CL9004
CL9003
CL9021
CL9019
CL9020
CL9002
CL9009
PW AF3.4V
AC18
AD23
AC12
AE15
AC16
AF15
AD16
C2 C1
(LCD OPEN L)
FP9002
5
WIDE
SIDE SW UNIT
FLASH P.C.B.
PS9001 PP8001
6
PS9001 PP8001
7
POWER SW
67
74
71
85
70
4
GPIO49
GPIO19
GPIO20
GPIO0
GPIO30
GPIO28
GPIO29
GPIO27
RSTB
B9
GPIO72
GPIO73
GPIO71
Y4
11
LEDOUT1
(AF LED K) (AF LED K)
8
LEDOUT2
D8011
AF ASSIST LED
AA1
Y3
SW7301
SW7401
(LCD ROTA
TE2)
(LCD ROTATE1)
MODE DIAL
FP9002
10
FP9002
4,11
FP9002
12
PW A3.1V
D9
AD0 IN9
AD0 IN8
AD0 IN7
AD0 IN11
A9
MOTION PICTURE
BURST MODE
Fn1
SHUTTER
(FULL)
SHUTTER
(HALF)
POWER LED
HINGE FPC
FP9003
2
LCD SW
HINGE SW FPC
HINGE SW
SW7302
LCD OPEN SW
FP9003
43
FP9003
44
FP7301
2
FP7301
3
57
RL9111
POWERSWONH
AB21
GPIO42 54
X9101
(32.27KHz)
QR6002
AE11
GPIO55
(KEY IN2) (KEY IN2)
(KEY IN3)
(KEY IN3)
FP9301
4
FP9301
3
FP9006
21
FP9006
20
FP9006
19
FP9301
2
FP9302
3
FP9302
2
FP9302
1
FP9301
5
FP9006
22
FP9302
4
B14
AD1 IN1
AB2
GPIO67
AA4
GPIO68
C9
AD0 IN10
FP9301
6
FP9006
23
FP9302
5
PW A3.1V
2
5
6
4
3
FOCUS
WIDE TELE
ZOOM
3 pos
AF
MF
AF/
FS9001
PP8001
16
FP9001
PP8001
17
FP9001
PP8001
18
GPIO46
GPIO18
GPIO37
AB17
AF13
AE18
FP8001
1
FP8001
3
FP8001
4
FP8001
2
REAR DIAL UNIT
GPIO69
AA3
S9402
(EVF LCD)
FP9006
32
EVF/LCD SW
SUB P.C.B.
FP9007
11
FP9007
10
FP9007
8
REAR OPERATION UNIT
(CROSS KEYIN)
(REAR KEYIN2)
B10
AD0 IN5
AD0 IN6
AD0 IN4
C10
AF/AE LOCK / Fn2
RIGHT
UP
LEFT
DOWN
MENU/SET
DISP.
FP9007
7
(REAR KEYIN1)
A10
FP9007
1,12
FP9007
6
FP9007
5
FP9007
4
FP9007
3
(CN AF AE LOCK)
FP9007
9
(CN PLAY)
(DISPLAY)
(UP)
(CN FN3)
(CN MENU SET)
(CN DOWN)
(CN LEFT)
(DELETE)
(CN RIGHT)
FP9007
2
PLAY
FN3
Q.MENU/DEL
MULTI FPC

Related product manuals