EasyManua.ls Logo

Panasonic MDDLN55SE - Wiring Precautions (Size F); Dynamic Brake Functionality

Panasonic MDDLN55SE
69 pages
Print Icon
To Next Page IconTo Next Page
To Next Page IconTo Next Page
To Previous Page IconTo Previous Page
To Previous Page IconTo Previous Page
Loading...
No. SX-DSV03015 - 39 -
Motor Business Unit, Panasonic Corporation
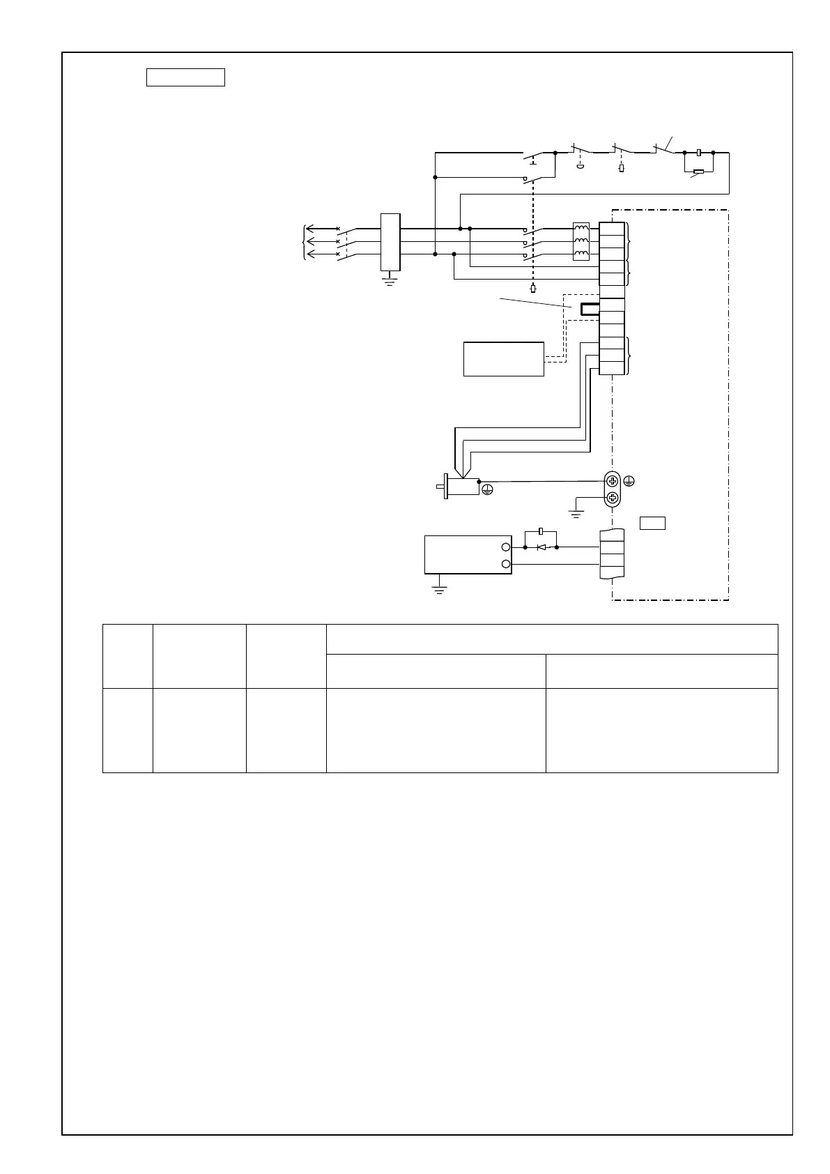
200 V size F
L1
L2
L3
L
ON
MC1
OFF
ALM
L1C
L2C
P
MC
U
V
W
Motor
ALM+
ALM-
ALM
MCCB
37
36
+
-
RB
X4
N
B
Short bar
Noise filter
Power supply
(3-phase)
Built-in thermostat of an external
regenerative resistor (light yellow)
Coli surge suppression units
Main power
supply
Control power
supply
Motor
connection
External
regenerative
resistor
Red
White
Black
Green or
Green/Yellow
Insulated
DC12 to 24 V
(±5 %)
■Connection of regenerative resistor
Size
Short bar
(Accessories)
Internal
regenerative
resistor
Connection of the connector XC
In case of using the external
regenerative resistor
In case of not using the external
regenerative resistor
F Supplied Installed
Between RB and B:
Disconnect the short bar
Between P and B:
Connect the external
regenerative resistor
Between RB and B:
Connect the short bar
-The standard of the ability of the built-in dynamic brake resistor is up
to continuousness three times in the stop from the allowance and maximum inertia and the rated speed.
Resistor is damaged and the dynamic brake might not work when using it under more critical operating condition.
- The circuit connected to terminal X1 X6 are secondary circuits.
Insulation is needed against the primary side power supply (power supply of the motor brake).
Please do not connect them with the same power supply.

Related product manuals