EasyManua.ls Logo

Panasonic NA-16VX1

Panasonic NA-16VX1
46 pages
To Next Page IconTo Next Page
To Next Page IconTo Next Page
To Previous Page IconTo Previous Page
To Previous Page IconTo Previous Page
Loading...
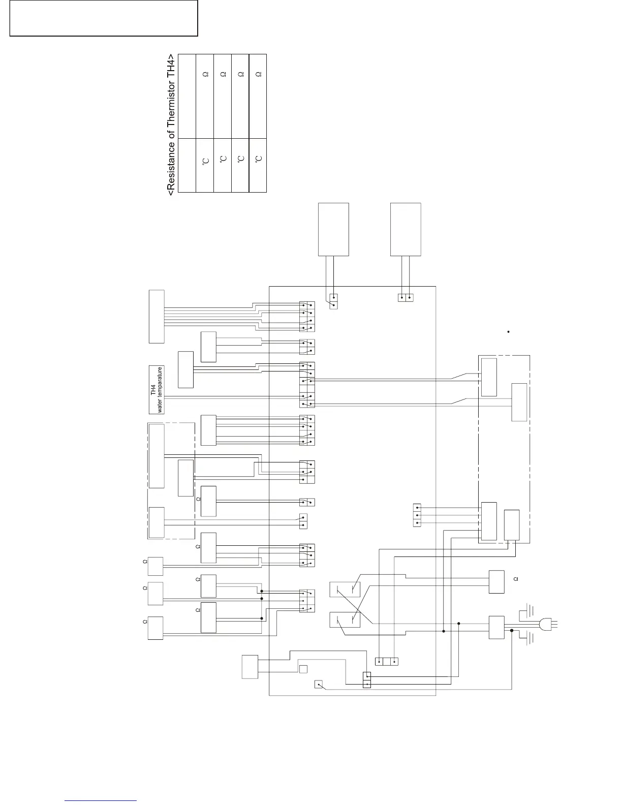
10 CHECK INPUT AND OUTPUT VOLTAGE OF THE PC BOARD
10-1 1. Before replace PC Board, check input and output voltage of the PC Board.
2. Check range of the test meter.
3. When check output voltage of the PC Bord, set a program of the Washing Machine on the working mode.
Feed
Valve 2
PURPLE
Feed
Valve 1
Pump
Door lock
Door detection Switch A
Door detection Switch B
Controller Unit A
(1/2)
Feed
Valve AQUA
Feed
Valve 3
Drain valve
Pressure
sensor unit
Door lock 2/2
3D sensor
Filter sensor
Cooling fan
Noise
Filter
Heater
Motor
Reactor
Motor
tachogenerator
Motor
temperature
Water leak sensor
Controller Unit A
(1/2)
Input
Voltage
AC 220V
AC 220V
4.8K
AC 220V
4.8K
AC 220V
180
AC 220V
4.2K
AC 220V
4.8K
AC 220V
6K
15
DC12V
YELLOW
YELLOW
GRAY
ORANGE
WHITE
BROWN-WHITE
YELLOW
YELLOW
WHITE-ORANGE
WHITE-BLUE
YELLOW
WHITE-BLUE
WHITE-RED
YELLOW-RED
YELLOW-WHITE
PINK
PINK-WHITE-
RED-WHITE
BLUE-WHITE
YELLOW-BLACK
LIGHTBLUE-BLACK
BLUE
BLACK
YELLOW
BROWN
GREEN
ORANGE
RED
YELLOW-BLACK
YELLOW-BLACK
WHITE
PINK-BLACK
PINK
WHITE
WHITE RED
RED
WHITE RED WHITE RED RED BLUE
BLUE
WHITE
ORANGE
WHITE
BROWN
LIGHT BLUE
WHITE
ORANGE
BROWN
BROWN
RED
PURPLE
BLUE
GRAY
GRAY
ORANGE-WHITE
ORANGE-WHITE
WHITE
WHITE
WHITE
AC 220V
26
BLACK
RED
WHITE
ALL WHITE
BLUE
BLUE
WHITE
WHITE
ORANGE
WHITE
Room Temp.
0
10
20
30
Resistance
Approx.9.7k
Approx.5.7k
Approx.3.7k
Approx.2.3k
<Method to check the motor>
The resistane of the each terminal of the
motor shall be shown on next page.
LIGHT-BLUE
BROWN
BLACK
-18-
NA-16VX1/16VG1/14VA1

Table of Contents

Other manuals for Panasonic NA-16VX1

Related product manuals