EasyManua.ls Logo

Panasonic NV-GS21EB - Page 81

Panasonic NV-GS21EB
110 pages
Print Icon
To Next Page IconTo Next Page
To Next Page IconTo Next Page
To Previous Page IconTo Previous Page
To Previous Page IconTo Previous Page
Loading...
NV-GS6EE/GC, NV-GS17EG/EF/E/EP/EB, NV-GS18E, NV-GS21EG/EK/E/EP/EB,
NV-GS25GC/GN, NV-GS28GK, NV-GS35EG/E/EP/EB/GC/GN, NV-GS38GK
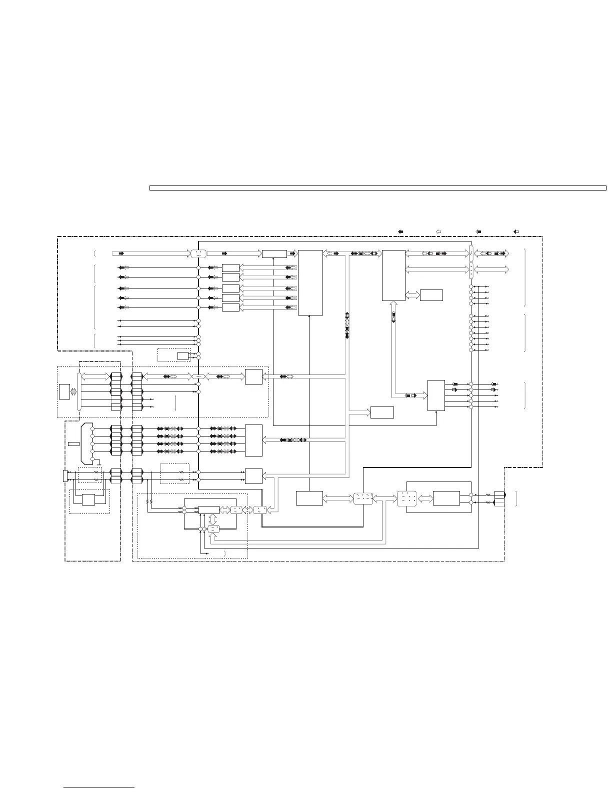
VIDEO SIGNAL PROCESS I BLOCK DIAGRAM
VIDEO SIGNAL PROCESS I BLOCK DIAGRAM
MAIN C.B.A.
IC3001 (CAMERA DIGITAL SIGNAL PROCESS/SHUFFLING)
IC401 (USB INTERFACE)
27MHz CLOCK
CG/AFE SERIAL CLOCK
DBR DATA (4 BIT)
ADDA (4BIT)
DBR(0 -3)
ADDA(0 -3)
ADM (0 -15)
TO/FROM
VIDEO SIGNAL
PROCESS II
BLOCK
DIAGRAM
FROM CCD DRIVE
BLOCK DIAGRAM
TO
ANALOG VIDEO I/F
BLOCK DIAGRAM
TO LCD
BLOCK DIAGRAM
/EVF BLOCK DIAGRAM
TO/FROM
CCD DRIVE
BLOCK
DIAGRAM
TO/FROM
AUDIO SIGNAL
PROCESS
BLOCK
DIAGRAM
CAMERA
DATA (0-9)
CAMERA SIGNAL
PROCESS
LUMA
CHROMA
LCD/EVF-R
LCD/EVF-G
LCD/EVF-B
ALC PWM CONTROL
IRIS CLOSE
ALC PWM CONTROL
IRIS CLOSE
259
264
H-SYNC
319
V-SYNC
H-SYNC
V-SYNC
318
161
164
168
169
171
173
TO SYSTEM
CONTROL
BLOCK DIAGRAM
FROM CCD DRIVE
BLOCK DIAGRAM
TO AF
BLOCK DIAGRAM
102
302
CG/AFE SERIAL DATA
300
CG CS(L)
303
FCK (18MHz)
48
CAM VD
50
CAM HD49
CAMERA AFE CS(L)
AUDIO DATA 0
AUDIO DATA 1
27MHz CLOCK
READ(H)
175
READ(H)
VAL
174
VAL
CAMERA DAC/TG SERIAL CLOCK
CAMERA DAC/TG SERIAL DATA
TG CS(L)
FCK (18MHz)
CAM VD
HEAD SW PULSE 1
159
HEAD SW PULSE 1
CAM HD
CAMERA DAC CS(L)
304
51 52
54 61
8 11 13 16
19 22 24 26
28
201 202
205 215
68 74
79 84
41 49
56 62
154 159
162 166 169
171 176 179
188
272 275
183
178
AUDIO L/R CLOCK
180
AUDIO BIT CLOCK
182
AUDIO MASTER CLOCK
181
242
248
253
73
75
IRIS OPEN IRIS OPEN
48MHz CLOCK
48MHz
OSC
X3002
48MHz CLOCK
76
CARD DET(L)
SD SLOT
SD
CARD
CARD PROTECT(L)
R402
R405
12MHz CLOCK
R401
R404
SD CLOCK
CMD
JACK C.B.A.
IC6001 (SYSTEM MICROCONTROLLER)
JK7003
MICROCONTROLLER
INTERFACE
106
105
B1
39
B1
40
B7001
40
B7001
39
MICROCONTROLLER
INTERFACE
TXD
RXD
USB
JACK
B2
8
B2
7
TO/FROM
INTERFACE BOARD
(FOR EVR ADJUSTMENT)
UART O
UART I
291
292
271
277
JK7002
DV JACK
B1
12
B1
13
B1
14
B1
15
B1
29,30,34,35
B1
2
B1
1
B7001
12
B7001
13
B7001
14
B7001
15
1
5
2
3
4
TPB(-)
TPB(+)
TPA(-)
TPA(+)
GND
145
148
150
151
REC VIDEO SIGNAL PB VIDEO SIGNAL REC AUDIO SIGNAL PB AUDIO SIGNAL
DV FORMAT
INTERFACE
DRAM
DRAM
AUDIO
DIGITAL
SIGNAL
PROCESS
D/A
CONVERTER
D/A
CONVERTER
D/A
CONVERTER
D/A
CONVERTER
D/A
CONVERTER
USB
INTERFACE
USB
INTERFACE
SD
INTERFACE
IEEE1394
INTERFACE
DIGITAL SIGNAL
PROCESS
DIS CONTROL
/ZOOM CONTROL
/EFFECT CONTROL
/JPEG
/GUI
B1
33
B1
31
(WITH SD SLOT)
(W/O USB2.0
HIGH-SPEED)
(W/O USB2.0
HIGH-SPEED)
(WITH USB2.0 HIGH-SPEED)
B7001
33
B7001
31
B7001
29,30,34,35
B7001
2
B7001
1
6516
9
7
R7004
FL7001
R7005
(W/O USB2.0
HIGH-SPEED)
(WITH USB2.0 HIGH-SPEED)
281
282
LINE
FILTER
NV-GS6EE / NV-G S6GC / NV-GS17E / NV-G S17EB / NV-GS17E F / NV-GS17EG / NV-GS17E P / NV-GS18E / NV-GS21E / NV-GS21EB / NV-GS21E G / NV-GS21EK / NV-GS21E P / NV-GS25GC / NV-GS25GN / NV-GS28G K / NV-GS35E / NV-GS35E B / NV-GS35EG / NV-GS35E P / NV-GS35GC / NV-GS35GN / NV-GS38 GK
81

Other manuals for Panasonic NV-GS21EB

Related product manuals