EasyManua.ls Logo

Panasonic P50GT30 - Service Navigation; PCB Layout

Panasonic P50GT30
118 pages
Print Icon
To Next Page IconTo Next Page
To Next Page IconTo Next Page
To Previous Page IconTo Previous Page
To Previous Page IconTo Previous Page
Loading...
6
3 Service Navigation
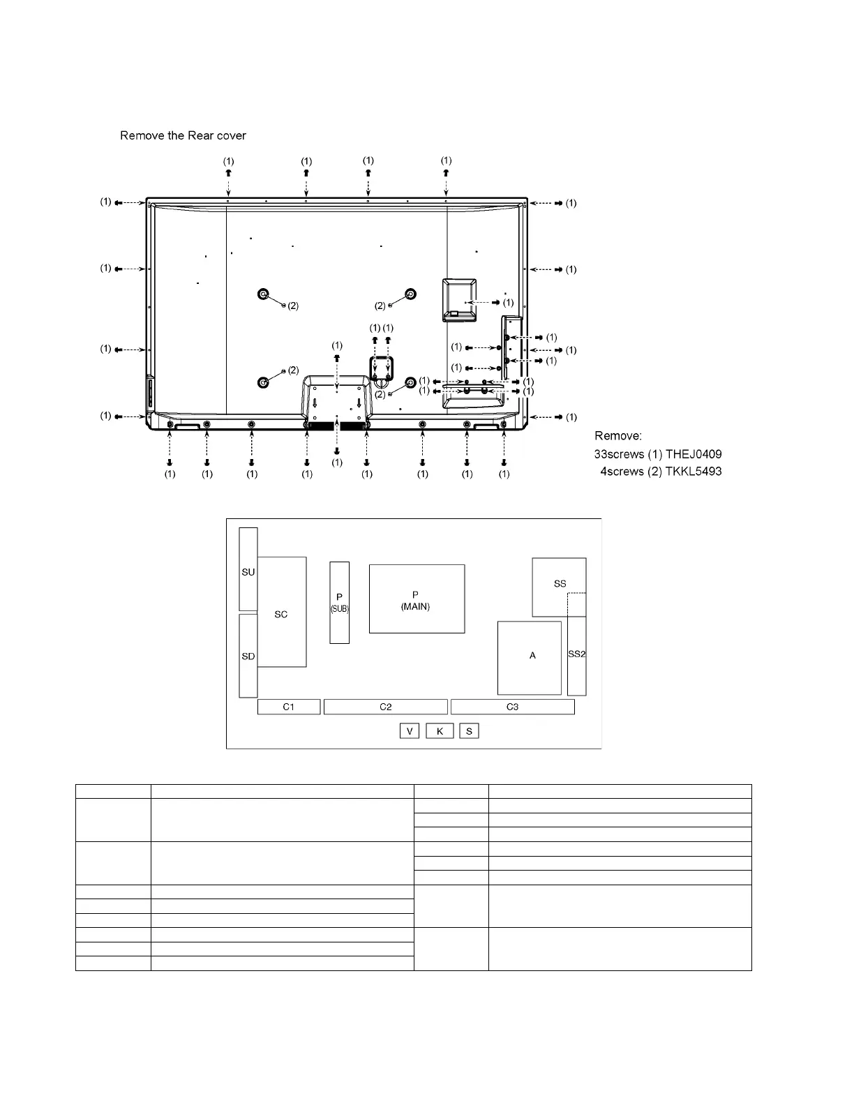
3.1. PCB Layout
Board Name Function Board Name Function
P(MAIN) Power Supply
Non serviceable.
P(MAIN)-Board should be exchange for service.
C1 Data Driver (Lower Right)
C2 Data Driver (Lower Center)
C3 Data Driver (Lower Left)
P(SUB) Power Supply
Non serviceable
P(SUB)-Board should be exchange for service
SC Scan Drive
SS Sustain Drive
SS2 Sustain out (Lower)
A Main AV input, processing SU Scan out (Upper)
Non serviceable.
SU-Board should be exchanged for service.
K Remote receiver, Power LED, C.A.T.S sensor
SPower Switch
V 3D Eyewear transmitter SD Scan out (Lower)
Non serviceable.
SD-Board should be exchanged for service.

Table of Contents

Related product manuals