EasyManua.ls Logo

Panasonic S-36PU1E5

Panasonic S-36PU1E5
440 pages
To Next Page IconTo Next Page
To Next Page IconTo Next Page
To Previous Page IconTo Previous Page
To Previous Page IconTo Previous Page
Loading...
1-136
1
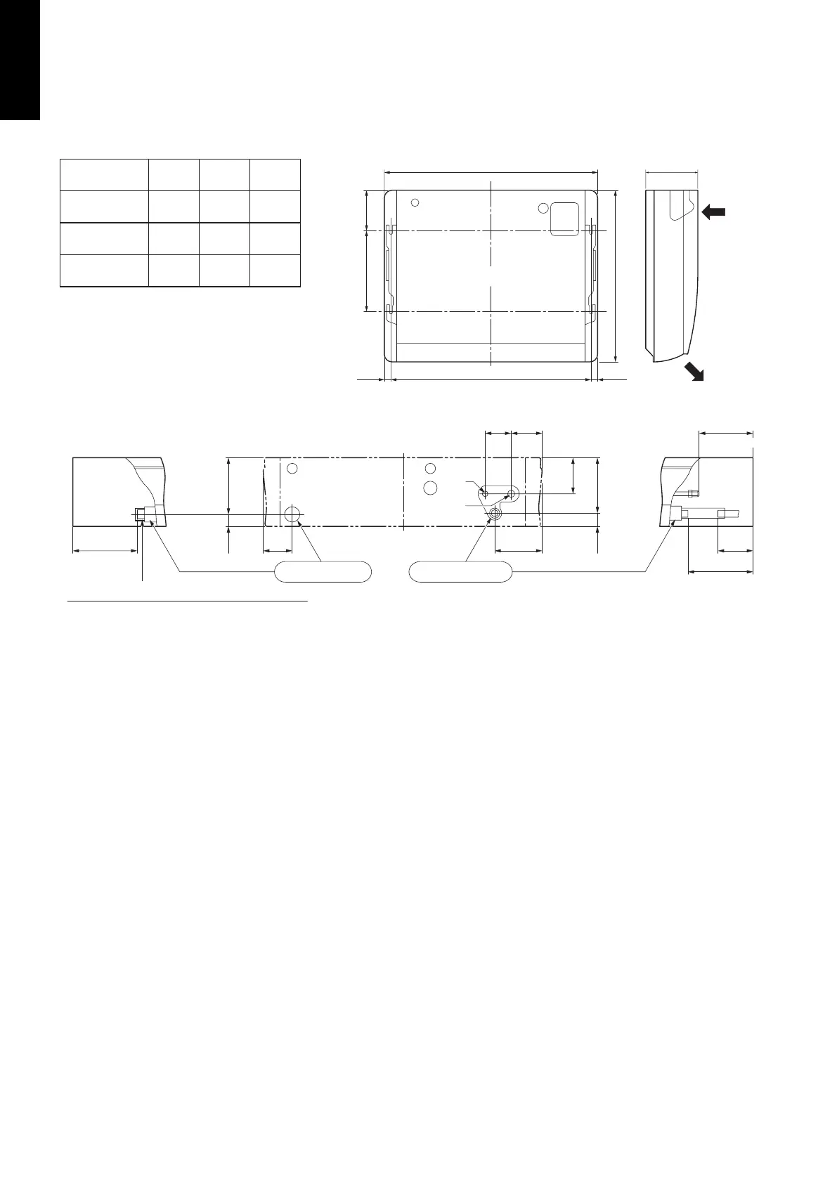
1-2. Dimensional Data
(A) Indoor Units: S-36PT1E5, S-45PT1E5, S-50PT1E5, S-60PT1E5
S-71PT1E5, S-100PT1E5, S-125PT1E5, S-140PT1E5
B
C
A
170
320
680
27.5 27.5
16164148152
6127957
39
39
171
105
171
251
Unit: mm
Length
Type
ABC
855 910 21036, 45, 50
60, 71
100, 125, 140
1125 1180 210
1540 1595 210
(Suspension bolt pitch)
Ceiling side
Air intake
Air outlet
(Suspension bolt pitch)
Gas tubing
edis thgiR)tnorf morf weiv swohs erugiF( raeRedis tfeL
(Liquid tubing •
Gas tubing)
Closed with rubber stopper at time of shipment.
Left drain position Right drain position
Liquid
tubing
SM830211-02PAC-i.indb136SM830211-02PAC-i.indb136 2012/07/1713:56:292012/07/1713:56:29

Table of Contents

Other manuals for Panasonic S-36PU1E5

Related product manuals