EasyManua.ls Logo

Panasonic SA-PM29E - 18.5. Power Circuit

Panasonic SA-PM29E
76 pages
Print Icon
To Next Page IconTo Next Page
To Next Page IconTo Next Page
To Previous Page IconTo Previous Page
To Previous Page IconTo Previous Page
Loading...
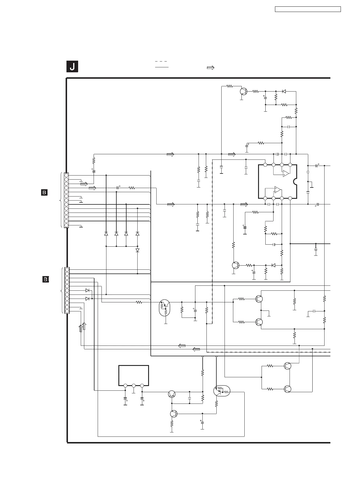
18.5. Power Circuit
13
12
11
10
2
4
6
8
9
7
5
3
1
+10V
TGND
R_IN
L_IN
+9V
SGND
DGND
SW5V
10V
FAN1
FAN2
7.5V
PGND
CP501
11
10
2
4
6
8
9
7
5
3
1
SUBWOF
7.5V
DCDET
MUTEH
D526
R712
1K
R713
56K
C705
10V10
R726
27K
Q704
KRA102MTA
MUTING SWITCH
R748
1.5K
R749
1.5K
Q719
Q718
Q718,Q719
B1AAGC000006
MUTING SWITCH
R751
3.3K
R750
3.3K
R754
22
R755
22
C728
3300P
R767
8.2K
R721
82K
R727
100K
C749
0.027P
R753
2.2K
R759
4.7K
R773
1K
R771
100K
C711
16V10
D709
MA2C16500E
R775
15K
Q721
KTC3199GRTA
AGC
C745
100P
C747
27P
R768
4.7K
R764
68K
C740
470P
C742
50V0.47
C744
0.01
R769
4.7K
C737
0.047
R765
68K
C739
470P
C741
50V0.47
C743
0.01
R766
8.2K
C746
100P
C748
27P
R752
100K
C750
0.027
R720
82K
R772
4.7K
R758
2.2K
R774
100K
C738
16V10
R776
1K
D708
MA2C16500E
R778
15K
Q720
KTC3199GRTA
SWITCH
SUBWOF
7.5V
CD3.3V
/CD
MUTEA
MUTEH
DCDET
HP_SW
HP_L
HPGND
HP_R
132
C732
16V220
C719
10V100
IC503
C0CAABE00006
3.3V REGULATOR IC
R794
10K
C761
0.01
Q723
KTA12710YTA
SWITCH
Q724
KTC3199GRTA
SWITCH
R792
560
C760
25V33
Q722
KRA110MTA
SWITCH
R793
100
R797
4.7
7.5V
SW5V
C726
16V10
C710
1000
C709
1000
C727
16V10
+9V
Q704
Q721
D701
B0AACK000004
D526,D527
B0AACK000004
D527
R790
3.3K
R791
3.3K
C736
0.047
CP502
IC503
C733
50V0.33
C734
50V0.33
D702
B0AACK000004
D703
B0AACK000004
D704
B0AACK000004
D700
B0AACK000004
+10V
+9V
SW5V
10V
FAN1
FAN2
7.5V
IC501
C0AABB000125
OP AMP IC
123
678
4
5
: +B SIGNAL LINE
: - B SIGNAL LINE
: MAIN SIGNAL LINE
R798
1K
R799
1K
Q726
Q725
Q725,Q726
B1AAGC000006
AMPILIFIER
TO
MAIN CIRCUIT
(CN301) ON
SCHEMATIC
DIAGRAM-4
TO
MAIN CIRCUIT
(CN302) ON
SCHEMATIC
DIAGRAM-6
POWER CIRCUIT
SCHEMATIC DIAGRAM-12
81
SA-PM29E / SA-PM29EB / SA-PM29EG

Related product manuals