EasyManua.ls Logo

Panasonic SA-PM65MD - Page 126

Panasonic SA-PM65MD
144 pages
Print Icon
To Next Page IconTo Next Page
To Next Page IconTo Next Page
To Previous Page IconTo Previous Page
To Previous Page IconTo Previous Page
Loading...
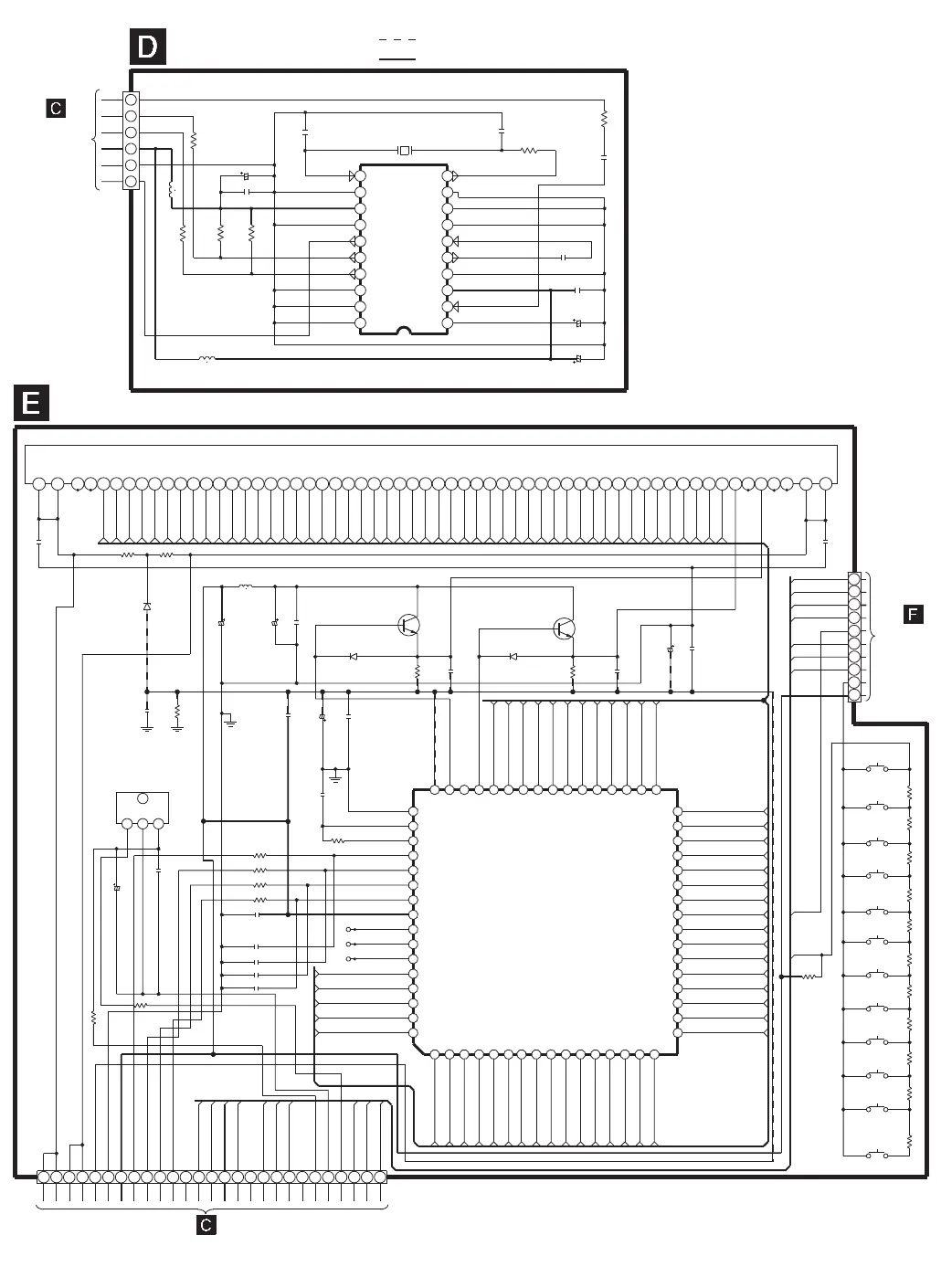
SCHEMATIC DIAGRAM-14
: +B signal line
: -B signal line
C201
25V10
C202
6.3V100
C208
6.3V100
R211
1K
R210
1K
R208
100K
R209
100K
R205
100
R206
100
C206
47P
C205
330P
C203
0.01
C204
560P
C209
0.01
C207
47P
L202
L201
10µH
X201
4.332MHZ
RSXC4M33S02T
IC201
LC72721NMTLM
MPXIN
RDS_DO
RDS_CLK
RDS_ID
FLOUT
VREF
VDDA
VSSA
CIN
T2
T1
XOUT
PCL
IDR
RDDA
RDS-ID
STDBY
T3
T4
XIN
VDDD
VSSD
RDCL
MPXIN
IC201
10µH
4
3
2
1
5
6
7
8
9
10
11
12
13
14
15
16
17
18
19
20
4
3
2
1
5
6
CS602
TO
MAIN CIRCUIT
(CP602) on
SCHEMATIC
DIAGRAM-13
RDS CIRCUIT
RDS IC
CS702A
1
3
5
7
9
8
6
4
2
10
11 12 13
14
15
16
17
18
19
20
21
22 23 24 25
26
27
CS701B
C714
50V22
C703
50V10
C710
6.3V330
C709
6.3V100
R788
10K
R724 1K
R723 1K
R722 1K
R721
1K
R720
3.3K
R718
33K
R701
100K
R702
100K
R703
100
R704
100
R796
47
R795
1K
D703
UDZSTE175R6B
C724 100P
C723 100P
C722 100P
C721 100P
C716
47P
Q702
2SC4081106R
Q701
2SC4081106R
D702
1SS355TE17
D701
1SS355TE17
L706
2.2µ
RLQB3R3KT-1Y
C706
0.1
C705
0.1
C713
0.1
C704
0.1
C720
0.1
C715
0.1
C718
1000P
C701
1000P
C702
1000P
C708
0.01
C792
0.01
TP
TP
TP
33
3435
36
37
3839
40414243
44
45
46
47
48
16
1514
13
121110
9876
5
4
3
2
1
IC700
M9202-12BDR3
Z701
RSL0306-F
C791
6.3V47
1
2
3
G
Vdd
O
Z751
LED_MD
LED_TUNER
F2
D5V
LED_CD
JOGB
JOGA
ADIN0
VREF+
-VPP
-VPP
16A
156A
146A
136A
126A
116A
106A
96A
86A
76A
66A
56A
46A
36A
26A
P36A
P35A
P34A
P33A
P32A
VREF+
LED_GND
P31A
P30A
P29A
P28A
ADIN1
P27A
P1[AD1]
P26A
P2A
P25A
P3A
P24A
P4A
P23A
P5A
P22A
P6A
P7A
P8A
P9A
P10A
P11A
P12A
P13A
P14A
P15A
P16A
P17A
P18A
P19A
P20A
P21A
RM_VCC
LED_TNR
-VPP
VREF+
NFLRST
NFLCS
NFLCLK
FLDATA
LED_MD
D5V
LED_CD
LED_GND
RM_IN
ADGND
F2
F1
JOGB
JOGA
ADIN0
ADIN1
FL_GND
D_GND
C0M1
COM2
COM3
COM4
COM5
COM6
COM7
COM8
COM9
COM16
COM10
COM11
COM12
COM14
COM15
COM13
VFL
SEG4
SEG5
VSS
OSCO
OSCI
CP
CS
DA
VDD
P1
P2
AD2
AD1
SEG1
SEG2
SEG3
RESET
SEG21
SEG20
SEG7
SEG6
SEG8
SEG9
SEG10
SEG11
SEG12
SEG13
SEG14
SEG15
SEG16
SEG17
SEG18
SEG19
SEG22
SEG23
SEG24
SEG25
SEG26
SEG27
SEG28
SEG29
SEG30
SEG31
SEG32
SEG33
SEG34
SEG35
3
5
7
9
10
8
6
4
2
1
Q702
Q701
16A
156A
146A
136A
126A
116A
106A
96A
86A
76A
66A
56A
46A
36A
26A
P36A
P35A
P34A
P33A
P32A
P31A
P30A
P29A
P28A
P27A
P26A
P25A
P24A
P23A
P22A
P21A
P20A
P19A
P18A
P17A
P16A
P15A
P14A
P13A
P12A
P11A
P10A
P9A
P8A
P7A
P6A
P5A
P4A
P3A
P2A
P1[AD1]
70
68
65
64
63
62
61
60
59
58
57
56
55
54
53
52
51
50
49
48
47
46
45
44
43
42
41
40
39
38
37
36
35
34
33
32
31
30
29
28
27
26
25
24
23
22
21
20 19
18
17
16
15
14
13
12
11
10
3
1
17
18
19
20
21
22
23
24
25
26
27
28
29
30
31
32
49
50
51
52
53
54
55
56
57
58
59
60
61
62
63
64
SW751
R761
68K
R760
22K
R759
10K
R758
6.8K
R757
4.7K
R756
2.7K
R755
2.2K
R754
1.8K
R753
1.2K
R752
1K
R751
1K
SW753
SW761
SW762
SW760
SW759
SW758
SW757
SW756
SW755
SW754
SW752
-AREA
MD_EDIT
MD MODE
CLK/TIMER
SELECTOR
DISP/CHARA.
ENTER
CANCEL
MD REC
CD EDIT
MEMORY
TUNE MODE/
/TIMER REC
TIMER PLAY
TO
TACT
SWITCH
CIRCUIT
(CS702B) on
SCHEMATIC
DIAGRAM-15
TO
MAIN CIRCUIT
(CS701A) on
SCHEMATIC
DIAGRAM-13
FL DRIVER IC
SWITCHING
SWITCHING
PANEL CIRCUIT
<19.02V>(25.09V)
((14.82V))
<19V>(25.07V)
((25.08V))
<0.17V>(17.08V)
((11.1V))
<22.99V>(23.09V)
((23.08V))
<28.96V>(27.07V)
((27.09V))
<18.99V>(17.09V)
((21.08V))
<22.98V>(27.07V)
((23.08V))
<13.01V>(13.1V)
((21.09V))
<0.02V>(19.1V)
((19.1V))
<0.02V>(25.08V)
((23.08V))
<24.98V>(25.08V)
((24.45V))
<15V>(11.11V)
((20.59V))
<16.99V>(21.09V)
((22.55V))
<17.02V>(13.12V)
((24.54V))
<18.99V>(19.09V)
((24.52V))
<16.99V>
((24.53V))
<18.99V>(15.1V)
((22.58V))
<14.99V>(21.1V)
((18.71V))
<26.95V>(23.09V)
((26.52V))
<26.95V>(23.08V)
((20.65V))
<26.96V>(25.09V)
((28.5V))
<14.98V>(15.11V)
((20.67V))
<12.87V>(21.1V)
((22.63V))
<22.97V>(23.09V)
((22.63V))
<26.96V>(29.07V)
((26.57V))
<26.97V>(19.1V)
((26.57V))
<14.96V>(21.1V)
((18.74V))
<16.99V>(19.1V)
((20.71V))
<16.99V>(17.1V)
((12.85V))
<19.02V>(21.09V)
((14.82V))
<19.03V>(17.11V)
((24.6V))
<26.98V>(27.08V)
((26.62V))
<26.99V>(27.08V)
((26.62V))
<26.99V>(27.08V)
((26.63V))
<0V>(27.08V)
((26.63V))
<26.99V>(27.08V)
((26.63V))
<26.98V>(27.08V)
((26.63V))
<0V>(27.08V)
((26.64V))
<26.98V>(27.08V)
((26.64V))
<26.98V>(27.08V)
((26.64V))
<26.98V>(27.08V)
((26.64V))
<26.98V>(27.08V)
((26.64V))
<26.98V>(27.08V)
((26.64V))
<27V>(27.1V)
((26.67V))
<26.96V>(27.06V)
((26.62V))
<26.97V>(27.07V)
((26.63V))
<26.96V>(27.05V)
((26.61V))
<0V>(29V)
((28.61V))
<0V>(0V)
((0V))
<26.18V>(2.19V)
((2.12V))
<2.12V>(2.13V)
((2.12V))
<4.95V>(4.97V)
((4.92V))
<4.65V>(4.67V)
((4.62V))
<0.23V>(0.27V)
((0.26V))
<0.23V>(0.22V)
((0.23V))
<4.99V>(5.01V)
((4.98V))
<0V>(0V)
((0V))
<0V>(0V)
((0V))
<28.97V>(29.07V)
((28.61V))
<27V>(27.1V)
((26.66V))
<19.02V>(25.07V)
((20.72V))
<21.01V>(19.09V)
((14.82V))
<21.01V>(21.08V)
((14.81V))
<21.01V>(21.08V)
((14.82V))
<4.99V>
(5V)
((4.97V))
<26.51V>
(26.32V)
((26.52V))
<26.62V>
(26.63V)
((26.62V))
<4.99V>
(5V)
((4.96V))
<26.52V>
(26.51V)
((26.49V))
<26.62V>
(26.64V)
((26.62V))

Related product manuals