EasyManua.ls Logo

Panasonic TC-L42E5-1

Panasonic TC-L42E5-1
74 pages
To Next Page IconTo Next Page
To Next Page IconTo Next Page
To Previous Page IconTo Previous Page
To Previous Page IconTo Previous Page
Loading...
TC-L42E5
29
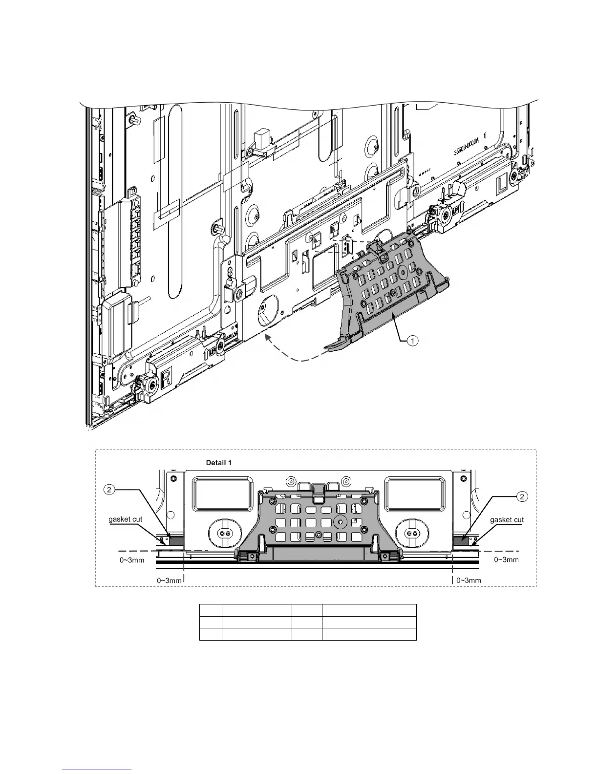
7.17. Bottom Cover Assembly
1. Insert the bottom cover guides into the lower metal grooves and slide in the direction indicated.
2. Place the gaskets in the positions indicated. See detail 1.
No. Part Num. Quant. Description
1 TKP5ZA13801 1 BOTTOM COVER
2 TEWB606 2 GASKET T25*W20*L20

Table of Contents

Related product manuals