EasyManua.ls Logo

Panasonic TH-37PV60E - C1-Board (2 of 2) Schematic Diagram (42 Inch)

Panasonic TH-37PV60E
217 pages
To Next Page IconTo Next Page
To Next Page IconTo Next Page
To Previous Page IconTo Previous Page
To Previous Page IconTo Previous Page
Loading...
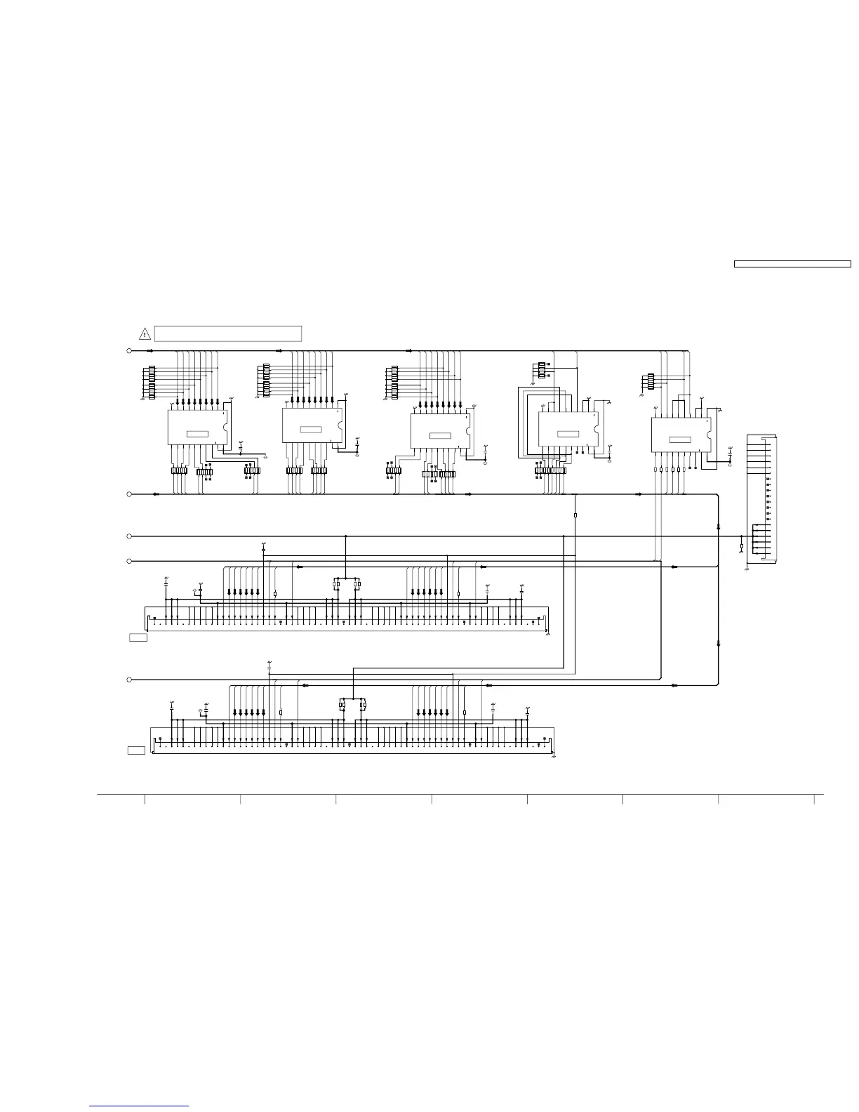
14.57. C1-Board (2 of 2) Schematic Diagram (42inch)
SIDE
TERM
TERM
SIDE
TERM
SIDE
AB_CLK_P2
AB_CLK_N2
AB_LED3
AB_DDC10
AB_DDB10
AB_DDA10
AB_DDC11
AB_DDB11
AB_DDA11
AB_LED3
AB_DDC10
AB_DDB10
AB_DDA10
AB_DDC11
AB_DDB11
AB_DDA11
AB_DDB15
AB_DDA15
AB_DDC12
AB_DDB12
AB_DDC15
AB_DDA14
AB_DDB14
AB_DDC14
AB_DDB10
AB_DDC10
AB_DDA13
AB_DDB13
AB_DDC13
AB_DDA12
AB_CLRD
AB_ODED1
AB_ODED1
AA_DDB12
AA_DDC12
AA_DDA15
AA_DDB15
AA_DDC15
AA_DDA14
AA_DDB14
AA_DDC14
AA_DDC11
AA_DDA10
AA_DDB10
AA_DDC10
AA_DDA13
AA_DDB13
AA_DDC13
AA_DDA12
AB_LED4
AB_ODED1
AB_DDA9
AB_DDB9
AB_DDC9
AB_CLK_N2
AB_DDA9
AB_DDA8
AB_DDA8
AB_DDB9
AB_DDB8
AB_DDB8
AB_CLK_P2
AB_DDC8
AB_DDC9
AB_DDC8
AB_LED4
AB_DDC8
AB_DDB8
AB_DDA8
AB_DDC9
AB_DDA9
AB_DDB9
AB_CLK_P2
AB_CLK_N2
AB_CLK_P1
AB_CLK_N1
AB_PCD1_1
AB_PCD1_2
AB_LED1
AA_CLRD
AA_ODED1
AA_PCD1
AB_DDB11
AB_DDA11
AB_DDA10
AB_DDC11
AA_LED
AA_CLK_P
AA_CLK_N
AB_LED2
AB_LED3
AB_LED4
AA_DDA8
AA_DDC9
AA_DDB9
AA_DDA9
AA_DDA11
AA_DDC8
AA_DDB8
AA_DDB11
AB_CLRD
AB_CLRD
AB_ODED1
AB_PCD1_2
AB_ODED1
AB_CLRD
AB_CLRD
C1_5V
C1_5V
C1_5V
C1_5V
C1_5V
C1_5V
C1_5V
C7141
50V
100p
C12
1
2
3
4
5
6
7
8
9
10
11
12
13
14
15
16
17
18
19
20
R7152
6.8
C7137
16V
0.1u
1
3
4
5
7
8
9
10
11
12
13
14
15
16
17
18
19
20
21
22
23
24
25
26
27
28
29
31
32
33
34
35
36
37
39
40
41
42
43
44
45
46
47
48
49
50
51
52
53
54
55
57
58
59
60
61
63
64
65
67
68
56
C7130
16V
0.1u
R7159
EXB38V470JV
R7172
6.8
R7132
EXB38V470JV
R7153
6.8
R7118 22
R7169
47
R7165
EXB38V102JV
R7174
6.8
C7119
100V
0.47u
R7136
EXB38V470JV
C7148
16V
0.1u
R7167
EXB38V102JV
R7173
6.8
C7122
100V
0.47u
R7180
0
C7126
16V
1u
C0JBAZ002692
IC7102
G1
1
2
A1
3
A2
4
A3
5
A4
6
A5
7
A6
8
A7
9
A8
10
GND
11
Y8
12
Y7
13
Y6
14
Y5
15
Y4
16
Y3
17
Y2
18
Y1
19
G2
20
Vcc
R7163
EXB38V102JV
C7143
100V
0.47u
C0JBAZ002692
IC7104
G1
1
2
A1
3
A2
4
A3
5
A4
6
A5
7
A6
8
A7
9
A8
10
GND
11
Y8
12
Y7
13
Y6
14
Y5
15
Y4
16
Y3
17
Y2
18
Y1
19
G2
20
Vcc
C7138
16V
0.1u
R7171
6.8
R7166
EXB38V102JV
C0JBAZ002692
IC7105
G1
1
2
A1
3
A2
4
A3
5
A4
6
A5
7
A6
8
A7
9
A8
10
GND
11
Y8
12
Y7
13
Y6
14
Y5
15
Y4
16
Y3
17
Y2
18
Y1
19
G2
20
Vcc
C7127
50V
100p
R7127 47
R7162
EXB38V102JV
R7186
EXB38V470JV
R7155
EXB38V102JV
C7146
100V
0.47u
C7140
16V
1u
C0JBAZ002692
IC7101
G1
1
2
A1
3
A2
4
A3
5
A4
6
A5
7
A6
8
A7
9
A8
10
GND
11
Y8
12
Y7
13
Y6
14
Y5
15
Y4
16
Y3
17
Y2
18
Y1
19
G2
20
Vcc
R7114 22
R7134
EXB38V470JV
C7134
16V
0.1u
R7164
EXB38V102JV
R7149
47
R7177
EXB38V102JV
R7156
47
R7126
220k
R7175
47
R7151
6.8
R7158
EXB38V470JV
R7187
EXB38V470JV
1
3
4
5
7
8
9
10
11
12
13
14
15
16
17
18
19
20
21
22
23
24
25
26
27
28
29
31
32
33
34
35
36
37
39
40
41
42
43
44
45
46
47
48
49
50
51
52
53
54
55
57
58
59
60
61
63
64
65
67
68
56
C0JBAZ002692
IC7103
G1
1
2
A1
3
A2
4
A3
5
A4
6
A5
7
A6
8
A7
9
A8
10
GND
11
Y8
12
Y7
13
Y6
14
Y5
15
Y4
16
Y3
17
Y2
18
Y1
19
G2
20
Vcc
R7119 22
R7133
EXB38V470JV
R7137
EXB38V470JV
R7135
EXB38V470JV
R7139 47
R7113 22
R7154
6.8
C7121
16V
1u
C7145
16V
1u
FX
GND
DM
GND
VDD1
VDD2
FX
GND
A4
VDD1
GND
GND
VDD2
NC
FDET
VDD2
NC
A4
VDD2
A3
GND
GND
VDD1
A2
LEN
CLR
VDD2
GND
A6
VDD2
A5
VDD2
GND
NC
NC
A3
NC
BLK
VDD2
GND
ODE
CLR
A1
A6
VDD1
GND
NC
NC
GND
DM
VDD2
NC
FS
GND
BLK
LEN
A1
A5
VDD2
FS
A2
FDET1
GND
VDD2
GND
ODE
VDD2
GNDGND
A1
GND
GND
FDET
LEN
GND
A4
GND
VDD2
VDD2
A4
FS
VDD1
VDD2
A1
GND
VDD2
GND
CLR
BLK
NC
FX
A2
NC
A3
VDD1
A6
BLK
GND
NC
NC
A3
A2
A6
DM
VDD2
GND
VDD2
NC
GND
VDD2
A5
CLR
DM
GND
VDD2
NC
VDD1
VDD1
GND
GND
ODE
A5
VDD2
GND
VDD2
GND
FX
NC
VDD2
GND
ODE
NC
FS
LEN
VDD2
Vda 75V
Vda 75V
Vda 75V
Vda 75V
NC
NC
NC
GND
GND
GND
NC
NC
NC
NC
GND
GND
GND
NC
Vda 75V
Vda 75V
FDET1
CB3
CB4
1110 1512
8
13 149
DRIVER
PANEL DATA
TO
DRIVER
PANEL DATA
TO
BUFFER
BUFFER
BUFFER
BUFFER
BUFFER
4
1
3
5
2
C1-BOARD TNPA3812AB (2/2)
C2-BOARD
TO
(C22)
TH-42PV60E, TH-42PX60B
C1-Board (2 of 2) Schematic Diagram
TH-42PV60E, TH-42PX60B
C1-Board (2 of 2) Schematic Diagram
TH-37PV60E / TH-37PX60B / TH-42PV60E / TH-42PX60B
131

Table of Contents

Other manuals for Panasonic TH-37PV60E

Related product manuals