EasyManua.ls Logo

Panasonic TH-37PV60E - P-Board (5 of 6) Schematic Diagram (37 Inch)

Panasonic TH-37PV60E
217 pages
To Next Page IconTo Next Page
To Next Page IconTo Next Page
To Previous Page IconTo Previous Page
To Previous Page IconTo Previous Page
Loading...
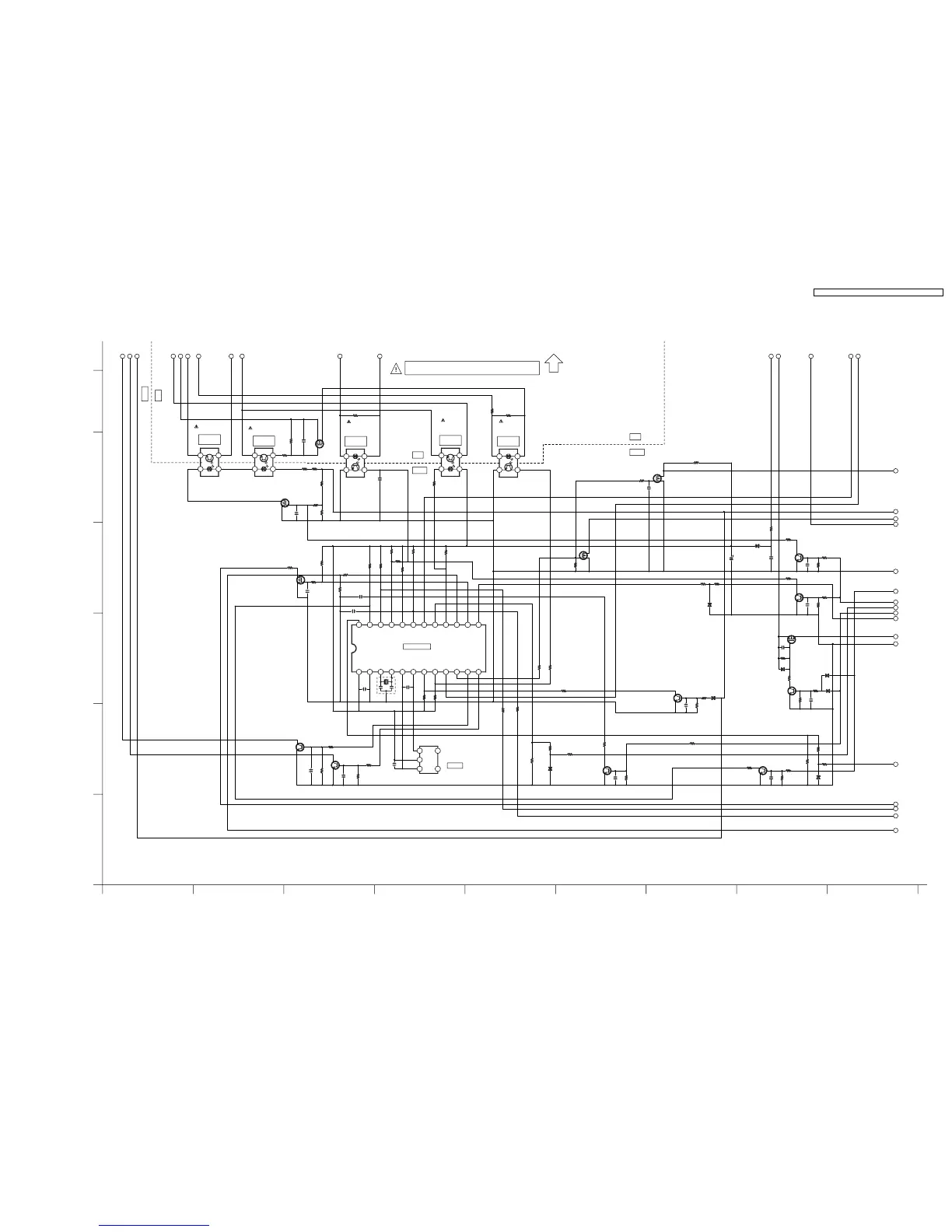
14.9. P-Board (5 of 6) Schematic Diagram (37inch)
R575
1000
R936
10K
C506
0.01
Q551
2SK3018
Q512
2SK3018
C626
0.01
R955
47K
C638
0.01
R577
47K
R516
1000
R939
1K
D515
02DZ3.3
C612
0.01
C511
1000P
R511
100K
R520
100K
C610
1.0
D555
02DZ7.5
IC502
R3111N401C
1
2
5
34
R505
33
R583
47K
C583
1000P
R538
100K
R508
1000
R525
47K
C613
0.01
R950
1M
R553
100
R687
10K
R678
0
R487
4.7K
R586
47K
X501
4MHz
R515
1000
D505
D1NS4
C519
1.0
R506
1000
R578
47K
D590
02DZ3.3
Q568
2SJ463A
R504
1000
IC404
ON3171
2
1
4
3
Q561
2SD1819A-RTX
R630
4.7K
R686
1000
R546
1000
R514
100K
R554
1000
R684
10K
R548
1000
R535
1000
C607
1.0
R532
1K
R509
100K
C504
1.0
R513
100K
Q558
2SD1819A-RTX
R683
33K
R501
22K
IC401
ON3171
2
1
4
3
C505
1000P
C631
0.01
Q569
2SK3018
R581
47K
R715
100
R580
47K
C502
0.01
C501
0.01
R606
1200
C510
0.1
R935
100K
R689
1000
Q501
2SD1820A
R617
10K
IC412
ON3171
2
1
4
3
IC501
M34509G4FP
VDD
1
VSS
2
XIN
3
XOUT
4
CNVSS
5
Reset
6
P21
7
P20
8
D5
9
D4
10
P01
21
P00
22
D1
13
D0
14
P13
15
P12
16
P11
17
P10
18
P03
19
P02
20
D3
11
D2
12
P31
23
P30
24
R714
100
R502
100K
C509
100/25V
R940
1K
Q553
2SD1819A-RTX
D513
MA111
R503
100K
D588
02DZ3.3
R615
10K
Q535
2SD1819A
R609
1000
R552
10K
R611
47K
R512
22K
R518
1K
R956
100K
R602
3300
C639
0.01
IC405
ON3171
2
1
4
3
R519
100K
R618
100K
Q559
2SD1819A-RTX
R557
100K
R536
1000
Q563
2SK2090
C608
0.01
D559
02DZ7.5
Q557
2SD1819A-RTX
R510
100K
C659
0.01
R517
10K
D512
MA111
C533
0.01
R610
47K
R558
470K
Q502
2SD1820A
Q554
RSR025P03
R616
10K
IC403
ON3171
2
1
4
3
3
D
B
7
A
4
E
6
F
91258
C
COLD
HOT
COLD
HOT
COLD
HOT
POWER MCU
RESET
P-BOARD TNPA3912 (5/6)
BM BNBC BLBJ BOBBBA BF BKBIBD BE BH BPBG
42
41
32
45
46
36
34
39
38
40
33
37
43
31
44
35
47
P-BOARD
TO
(3/6)
COUPLER
PHOTO
PHOTO
COUPLER
COUPLER
PHOTO
COUPLER
PHOTO
COUPLER
PHOTO
TH-37PV60E, TH-37PX60B
P-Board (5 of 6) Schematic Diagram
TH-37PV60E, TH-37PX60B
P-Board (5 of 6) Schematic Diagram
TH-37PV60E / TH-37PX60B / TH-42PV60E / TH-42PX60B
83

Table of Contents

Other manuals for Panasonic TH-37PV60E

Related product manuals