EasyManua.ls Logo

Panasonic TH-37PV80P

Panasonic TH-37PV80P
157 pages
To Next Page IconTo Next Page
To Next Page IconTo Next Page
To Previous Page IconTo Previous Page
To Previous Page IconTo Previous Page
Loading...
50
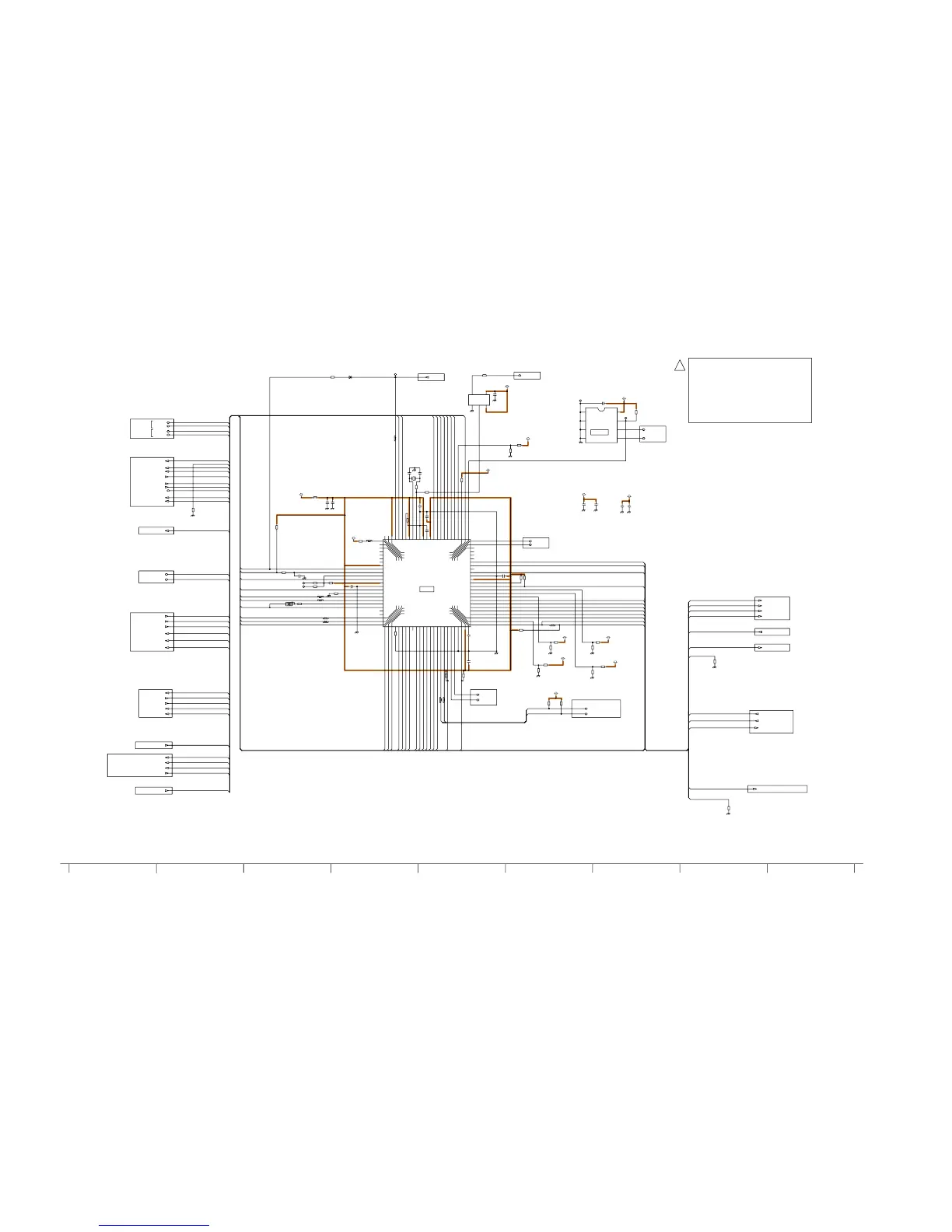
11.14. A-Board (6/19) Schematic Diagram
S
S
S
S
S
S
S
S
AG ADV XRST
AG SOUND SOS
AG RF AFT2
AG RF AFT1
AG HDMI CEC
AG DTV VOUTENB
AG EDID WP
AG QLINK2
AG FAN MAX
AG QLINK2
AG ON TIMER LED ON/ACTIVE STB LED ON
AG ECO ON
AG R LED ON
AG CLK74SEL
AG HDMI 5V DET2
AG QLINK1
AG HDMI 5V DET1
AG G LED ON
AG KEY1(CON PANE)
AG QLINK1
AG AI SENSOR
AG SD BOOT STS
AG SOS
AG HPD3
AG FAN MAX
AG A MON MUTE/SP MUTE
AG AUD O MUTE
AG R LED ON
AG ON T MER LED ON/ACT VE STB LED ON
AG_G_LED_ON
AG SD LED ON
AG SOS
AG TV MAIN ON
AG PANEL STBY VCC ON
AG ECO ON
AG RM N
AG CONFIG DONE
AG GRAB MODULE IIC PWM POWER ON
DTV9V SENSE
AG_SD_BOOT_STS
AG SW OFF DET
AG DTV VOUTENB
AG_ED D_WP
AG_SOUND_SOS
AG AI SENSOR
AG RF AFT1
DDCSCL0
DDCSDA0
DDCSCL1
DDCSDA1
DDCSDA0
DDCSCL0
DDCSDA1
DDCSCL1
AG HDMI CEC
AG CLK74SEL
AG_HPD1
AG HPD2
AG HPD3
AG ADV XRST
AG AUDIO XRST
AG FAN SOS
AG PANEL READY
AG PANEL ARARM
AG TV SUB ON
AG HPD4
AG DTV XRST
AG HDMI 5V DET4
AG HDMI 5V DET4
AG HPD4
AG HPD2
AG HPD1
AG PANEL STBY/VCC ON
AG CONFIG DONE
AG A MON MUTE/SP MUTE
AG AUDIO MUTE
AG AUDIO XRST
AG GRAB MODULE IIC PWM POWER ON
AG FAN SOS
AG TV MAIN ON
AG TV SUB ON
SBI2
SBO2
GENX SCL0
GENX_SDA0
AG PANEL READY
SB 2
AG SRQ GENX
AG PANEL ARARM
SBO2
AG SRQ2-GENX
AG SRQ2 GENX
AG RF AFT2
AG KEY1(CON PANE)AG KEY1(CON PANE)
AG RMIN
AG SW OFF DET
AG SD LED ON
AG DTV XRST
AG SRQ GENX
AG HDM 5V DET1
AG HDM 5V DET2
C1114
16V
0 1u
C1109
1u
10V
C1103
16V
0 1u
C1111
1u
10V
C1117
16V
0 1u
C1123
1u10V
C1112
16V
0 1u
C1122
25V 0 01u
C1106
50V
27p
C1108
16V
0.1u
C1104
16V
0 1u
C1107
50V
22p
C1102
10u
10V
C1127
16V
0 1u
C1133
50V
1000p
C1129
50V
100p
C1131
50V
100p
C1136
50V
1000p
*D1112
MA2J72800L
D1107
MA3X704A0L
IC1102
C0JBAZ002261
1
G
2
IN A
3
GND
5
VCC
4
OUT Y
IC1101
TVRP929
1
2
3
45
6
7
8
MNZSFG3GP5L
IC1100
1
P41 TMIO1
2
P42 TMIO2
3
P43 TMIO3
4
P44_TM
5
P00
6
P01
7
P02
8
P03_SBT0B
9
P04_SBO0B
10
PD0_DDCSDA0
11
PD1_DDCSCL0
12
PD2_DDCSDA1
13
PD3_DDCSCL1
14
PF1
15
PF2
16
PF3
17
P65_USBO2
18
P66_USB 2
19
P26
20
P70_SDA0
21
P71_SCL0
22
VSS
23
P27
24
IVDD
25
VDD
26
P 0_SBO0A
27
P61_SBT0A
28
P62_SB 0A
29
RQ6
30
6 RQ7
31
P07 RQ8
32
P50 RMIN IRQ0
33
P20 RQ1
34
P21 RQ2
35
P22 RQ3
36
P23 RQ4
37
P24 RQ5
38
P25
39
VDD
40
VSS
41
P10
42
P11
43
P12
44
P13
45
P14
46
P15
47
P16
48
P17
49
P72_SDA1
50
P73_SCL1
51
P30
52
P31
53
P32
54
P33
55
P34
56
P35
57
P36
58
P37
59
PE0
60
PE3
61
PE4_VPPEX
62
VDD
63
VDD
64
RONA
65
VSS
66
OSCXO
67
OSCX
68
VDD
69
PD4
70
PD5
71
NBOOT
72
NRST
73
NTEST
74
SCLOCK
75
SDATA
76
EXTRG0
77
TRCCLK
78
TRCST
79
TRCD0
80
TRCD1
81
TRCD2
82
TRCD3
83
PULDSEL
84
P80 ADIN0
85
P81 ADIN1
86
P82 ADIN2
87
P83 ADIN3
88
VDD
89
VSS
90
P84 ADIN4
91
P85 ADIN5
92
P74 CECAV 1B
93
P75 CECAVL1A
94
PF0
95
P76 CEC0
96
PE1
97
PE2
98
P63_SBO1
99
P64_SB 1
100
P40_TM O0_SYSCLK
L1100
J0JYC0000068
DTV9V
SUB5V
STB3 3V
MAIN9V
SUB5V
MAIN3 3V
STB3 3V
SUB3 3V
STB D3 3V
SUB3 3V SD
STB3 3V
SUB3 3V
SUB3 3V
R1146
R1181
R1124
R1179
R1125
R1213
R1214
R1134
R1162
TP1107
TP1104
TP1105
TP1102
TP1103
AG PANEL ARARM
AG KEY1 CON PANE)
AG PANEL READY
AG AI SENSOR
AG SOS
AG RF AFT1
AG HDMI 5V DET4
AG HDMI 5V DET1
STB RST
AG HDMI 5V DET2
AG SOUND SOS
AG RMIN
AG SRQ GENX
AG RF AFT2
AG FAN SOS
AG TV MAIN ON
AG SW OFF DET
AG FAN MAX
AG A MON MUTE SP MUTE
AG GRAB MODULE IIC/PWM POWER ON
AG TV SUB ON
AG EDID WP
AG AUDIO MUTE
AG HPD4
AG ADV XRST
AG G LED ON
AG SD BOOT STS
AG DTV XRST
AG ON T MER LED ON/ACTIVE STB LED ON
AG R LED ON
AG AUDIO XRST
AG DTV VOUTENB
AG ECO ON
AG PANEL STBY/VCC ON
AG HPD1
AG HPD2
AG CLK74SEL
GENX SDA1
GENX SCL1
GENX EEP SCL
GENX EEP SDA
GENX SCL0
GENX SDA0
DDCSDA0
AG QL NK2
DDCSCL1
CLK GENX
DDCSCL0
AG HDMI CEC
DDCSDA1
SB 2
AG QL NK1
SBO2
R1209
47k
R1236
47k
R1203
47k
R1218
10k
R1219
10k
R1104
47k
R1170
33k
R1171
68k
R1172
33k
R1164
10k
*R1173
330
R1224
10k
R1210
47k
R1255
1k
R1211
47k
R1207
68
R1230
47k
R1153
820
R1212
47k
R1208
10k
R1217
100k
R1251
47k
R1221
7 15k
1%
R1216
10k
R1182
27k
R1166
100k
R1243
47k
R1194
68k
R1196
47k
R1197 10k
R1237
1k
R1220
10k
R1225
10k
R1204
33
R1169
68k
X1100
H0J100500035
R4327
47k
RF AFT1
RF AFT2
TO 7/19
AI SENSOR
TO 4/19
TO 5/19
Lite2p ExBUS/Etc.
KEY1
SUB5V SENSE
TO 7,19/19
CRNo.1100-1999
10MHz
TO 9/16
TO 2/19
TO 11/19
Lite2p
D 5 D
GenX5,EEPROM
UART(LITE2p-GenX5)
FAN MAX
A MON MUTE SP MUTE
AUD O_MUTE
R LED ON
G LED ON
SD LED ON
HPD3
HPD1
HPD2
SBO
SB
SRQ G X
HDM 5V De 2
SOS
TV MAIN ON
PANEL STBY ON
ECO ON
CONFIG DONE
GRAB MODULE IC/PWM POWER ON
HDMI REP EN
AUDIO XRST
ADV XRST
HQ XRST
GenX-EEP_WP
TV SUB ON
DTV9V SENSE
DTV XRST
SD BOOT STS
SW OFF DET
DTV VOUTENB
ED D WP
SOUND SOS
HDMI MUX SEL
HDMI MUX EN
(PANEL SOS)
(PANEL STATUS)
FACT
PAN EL STAT U S
PANEL SOS
FAN SOS
GC XRST
BACK VOUTENB
MID VOUTENB
HDMI 5V DET3
MA N9V SENSE
HDMI 5V DET4
SUB3 3V SENSE
MA N3 3V SENSE
TO 14/19
RM N
SCL
SDA
HPD4
SD PWR CTR
DTV 9V SENSE
SD CO N DET
Ac ive ANT DET
QL NK2
QL NK1
HDMI CEC PU ON
HDMI CEC
PANEL READY
PANEL ALARM
CLK74SEL
( NV_PSU_ON)
TO 19/19
TO 14/19
DCDC_PA
EDID EEP I C
EDID EEP I C
HDMI1
HDMI2
TO 1/19
TO 1/19
IIC
to sheet001
IIC3
EEPROM
GenX5
TO 5,11/19
TO 12/19
TO 12/19
TO 8/19
TO 5,14/19
TO 9/19
TO 5/19
46 5249 5448 51 5347 50
TZTNP01RSTE (37PV80P)
!
A-BOARD (6/19)
TZTNP01RSTB (37PX80B)
TZTNP01RRTB (42PX80B)
TZTNP01RSTD (37PX80E)
TZTNP01RRTE (42PV80P)
TZTNP01RRTD (42PX80E)
TH-37/42PV80P, PX80B/E
A-Board (6/19) Schematic Diagram
TH-37/42PV80P, PX80B/E
A-Board (6/19) Schematic Diagram

Table of Contents

Other manuals for Panasonic TH-37PV80P

Related product manuals