EasyManua.ls Logo

Panasonic TH-37PV80P

Panasonic TH-37PV80P
157 pages
To Next Page IconTo Next Page
To Next Page IconTo Next Page
To Previous Page IconTo Previous Page
To Previous Page IconTo Previous Page
Loading...
84
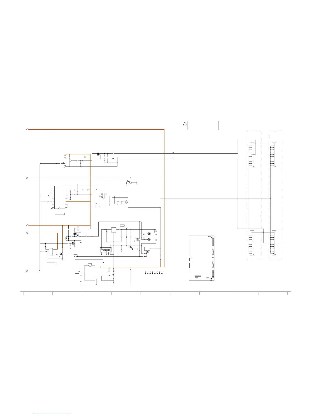
11.48. SS-Board (2/2) Schematic Diagram
+
+
+
+
+
TERM
SIDE
TERM
SIDE
TERM
SIDE
TERM
SIDE
AA UML
AA UEH
AA SOS8
AA UEH
AA NUEL
C16192
25V
4 7u
C16285
0 1u
50V
C16280
25V
4 7u
C16194
25V
4 7u
C16197
25V
4 7u
C16312
50V
4700p
C16313
16V
1u
C16326
25V
4 7u
C16284
0 1u
50V
C16311
10V
1u
C16195
25V
4 7u
C16336
50V
1000p
C16337
50V
0 1u
C16322
0 22u
250V
C16321
0 22u
250V
C16302
470p
50V
*C16301
25V
47u
C16323
25V
47u
C16324
470u
25V
*C16310
220V
200u
*C16328
220u
200V
D16192
B0ECKP000047
D16300
B0ECKP000047
D16321
B0ECKP000047
*D16302
MA2J11100L
D16331
B0ECHP000003
D16191
RF101L4STE25
D16102
MA22D3900L
D16313
B0ECKP000047
D16280
MA2J11100L
D16324
MA3X152D0L
D16284
MA3X152D0L
*D16301
MA3X152E0L
D16281
MAZ80510LL
D16311
MAZ81500ML
D16282
MAZ80680ML
C0JBAC000363
IC16303
1
N_B
2
N_A
3
GND
5
VCC
4
OUT
C0ZBZ0000895
IC16191
1
LO
2
GND
3
VCC
4
NC
5
NC
6
VS
7
VB
8
HO
9
NC
10
NC
11
NC
12
HIN
13
NC
14
L N
15
GND
16
NC
MIP9L02MBS
IC16301
1
SOURCE
2
BY
3
FB
5
VCC
6
GND
7
V01
8
VOUT
10
DRAIN
C0CBALC00012
*IC16302
Vin3
2
Com
Vout
*SS53
1
2
3
4
5
6
7
8
9
10
11
12
13
*SS53A
1
2
3
4
5
6
7
8
9
10
11
12
13
*SS56A
1
2
3
4
5
6
7
8
9
10
11
12
13
*SS56
1
2
3
4
5
6
7
8
9
10
11
12
13
L16103
G0ZZ00002183
J0JJC0000015
L16102
L16221
G0ZZ00002183
J0JHC0000031
L16301
T16301A
ETS19AB249AC
1
NC
2
P1
4
PT
5
NC
6
P2
7
S1
10
S2
ZA16003
K4CD01000011
ZA16002
K4CD01000011
ZA16001
K4CD01000011
TP24
TP35
TP26 TP27 TP30TP29
TP36
TP25 TP31TP28
TP43
TP56
TP53
*Q16331
B1CERL000012
G
D
S
Q16301
B1CBGD000001
Q16302
B1CFNG000001
*Q16335
B1CERL000012
G
D
S
*Q16102
B1DFKM000002
G
D
S
Q16339
2SK417300L
G
D
S
Q16280
2SD0601A0L
*Q16304
2SB0709ASL
Q16191
B1HFPFA00001
R16281
10k
R16283
47k
R16301
4 7k
R16289
62k
R16303
100
R16109
10
R16311
120k
R16194
1
R16321
47k
R16292
330k
R16192
100
R16331
100
R16280
2 2k
R16306
100
R16300
1k
R16304
680
*R16305
270
75
R16193
R16312
120k
R16322
560
R16324
10k
R16323
22k
R16315
1 24k
R16317
0
R16314
56k
R16191
100
R16338
100
R16340
1 5k
*R16313
52 3k
R16291
62k
R16302
1M
R16334
100
R16307
100
R16116
47k
R16195
1
R16308
100
R16284
220k
R16290
330k
R16339
330k
R16333
330k
R16282
220
R16325
0
R16102
220
R16309
4 7k
R16110
47k
R16336
1
*R16310
5 6k
VR16000
50k
1
2
3
*R16320
0
<
TPSS1
SS53A
SS56
SS21
SS22SS34
SS23
SS12
SS11
37INCH ONLY
TPVe
1513 181210 14 171611
FET DRIVER
ELECTRODE
PANEL
SUSTAIN
ELECTRODE
SUSTAIN
PANEL
ELECTRODE
SUSTAIN
PANEL
ELECTRODE
PANEL
SUSTAIN
NAND GATE
VE Gen.
DRIVER
IPD
+15V
3
4
2
1
5
42INCH ONLY
SS53
SS56A
Ve:130V
TNPA4394AB (42inch)
TNPA4394AC (37inch)
!
SS-BOARD (2/2)
TH-37/42PV80P, PX80B/E
SS-Board (2/2) Schematic Diagram
TH-37/42PV80P, PX80B/E
SS-Board (2/2) Schematic Diagram

Table of Contents

Other manuals for Panasonic TH-37PV80P

Related product manuals