EasyManua.ls Logo

Panasonic TH-50PX6U

Panasonic TH-50PX6U
288 pages
To Next Page IconTo Next Page
To Next Page IconTo Next Page
To Previous Page IconTo Previous Page
To Previous Page IconTo Previous Page
Loading...
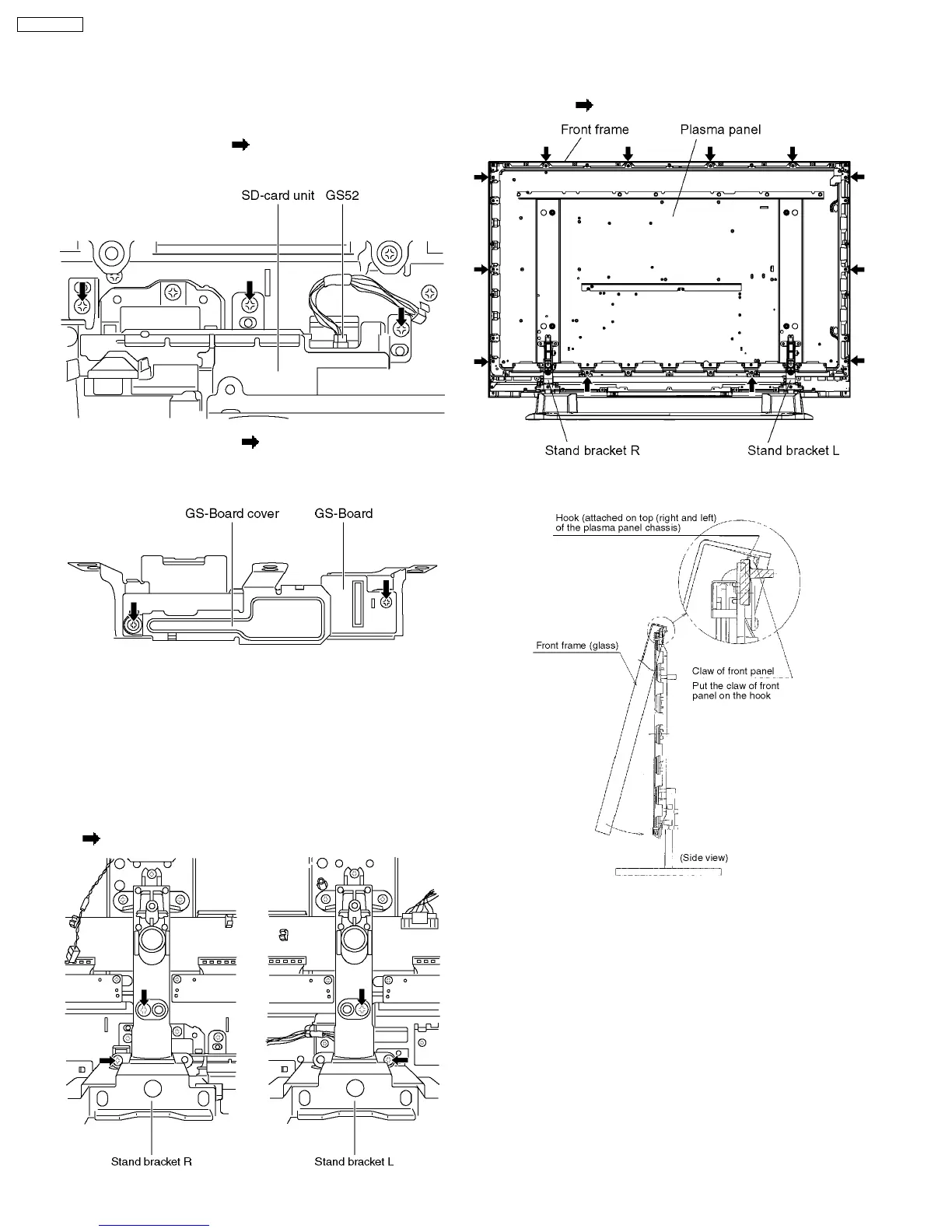
6.24. Remove the GS-Board
1. Remove the stand bracket R. (See section 6.23.)
2. Unlock the cable clampers to free the cable.
3. Disconnect the coupler (G52).
4. Remove the screws (×3
).
5. Remove the SD card unit.
6. Remove the screws (×2 ) and remove the GS-Board
cover.
7. Remove the GS-Board.
6.25. Remove the Plasma panel
section from the Front frame
(glass)
1. Remove the plasma panel section from the servicing stand
and lay on a fiat surface such as a table (convered) with the
plasma panel surface facing download.
2. Remove the stand brackets (left, right) fastening screws (×2
each).
3. Replace the servicing stand and stand the set.
4. Remove the front frame and the plasma panel fastening
screws (×12
).
5. For leaving the plasma panel from the front frame, pull the
bottom of the front frame forward, lift, and remove.
16
TH-42PX600U

Table of Contents

Related product manuals