EasyManua.ls Logo

Panasonic TH-P50ST30A - Block (4;4) Diagram

Panasonic TH-P50ST30A
132 pages
Print Icon
To Next Page IconTo Next Page
To Next Page IconTo Next Page
To Previous Page IconTo Previous Page
To Previous Page IconTo Previous Page
Loading...
39
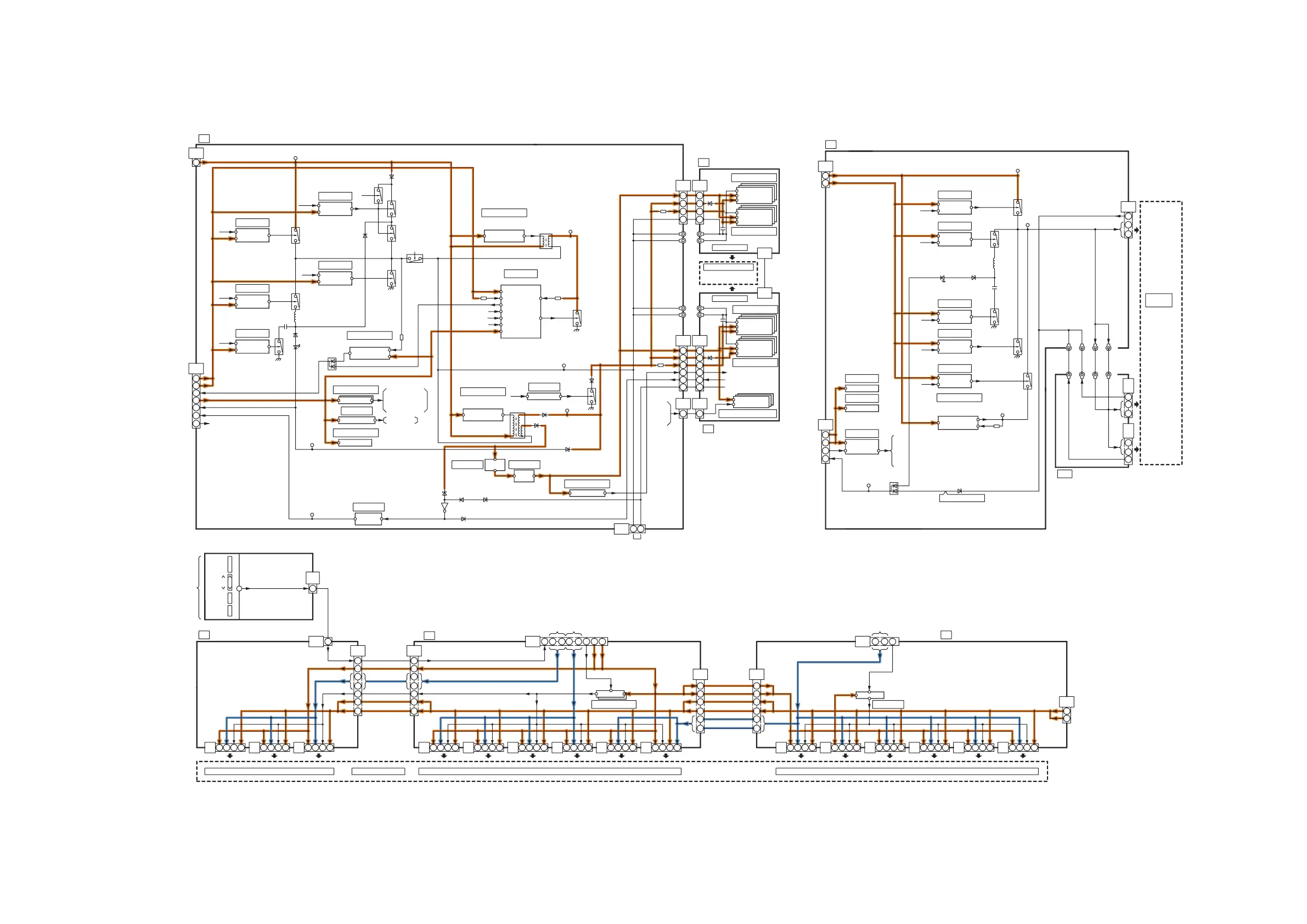
11.5. Block (4/4) Diagram
(LED:8 TIMES)
(LED:7 TIMES)
(LED:6 TIMES)
A40
D16473
TPVSUS
D16254
D16493
TPSOS6
TPSOS7
D16255
TPVFG
D16282
D16583
D16618
TPSS1
TPVSUS
TPSOS8
ZA16412
ZA14952
ZA16421
ZA16422
ZA14902
ZA14901
ZA16411
ZA14951
D16476
D16475
D16825
TPSC1
D16728
D16791
TPVAD
TPVE
DATA DRIVER DATA DRIVERDATA DRIVER PLASMA PANEL
VDA
P35
CB
12
A32
CB
15
CB
11
CB9
1
26
BUFFER
C35
1
C3
VDA
DATA DRIVER (LEFT)
C31
2
CONTROL DATA
30
VIDEO DATA
C26
25
CB
10
5
5
C36
VDA
6
1654
VDA
IC17301
CB
14
CB
13
26
CB2
BUFFER
CB4
A31
DATA DRIVER (CENTER)
C2
CB3
C21
CB6 CB8
4
CB5
22
VIDEO DATA
CONTROL DATA
CB1
IC17201,02
5554
CB7
2442
VIDEO DATA
9
27
38
1
4
CONTROL DATA
VIDEO DATA
32
14
3
40
37
VDA
VDA
DATA DRIVER (RIGHT)
C1
C10 C20
P+3.3V
P+3.3V
P+3.3V
P+3.3V
P+3.3V
KEY1
36 5
521
C14
KEY1
23
15
VIDEO DATA
8
16
VIDEO DATA
BUFFER
Q16041
Q16043
IC16243
SC2
AND
VFG
CERS
OR
UEH
Q16601
IC16564,65
P+5V
2
CPH1
SEPA
IC16684
CRC1
BUFFER
BUFFER
SOS6
SUSTAIN L
SC
CIS
VFG
Q16621
Q16622
Q16623
CERS
IC16490,91
RECOVERY L
CMH
SS
53
VSET DET
USL
13
BUFFER
USH
1
BUFFER
IC16792,93
UML
1
UMH
BUFFER
IC16304,12
SC
20
A20
Q16600
21
IC16561,62
SCAN
CONTROL
INVERTER
CML
Q16001
Q16002
Q16003
+5V
Q16021
Q16022
Q16023
IC16132
UEH
UHZ
IC16191
(SC)
CEL
7
Q16401
Q16402
Q16403
P+15V
Q16421
Q16422
Q16423
Q16607
Q16471
BUFFER
CSH
Vsus
INV
IPD CIRCUIT
4
IC16241
FPC PROTECTOR
P+15V
PANEL
SUSTAIN
ELECTRODE
LED(G)
CSL
RECOVERY H
SUSTAIN DRIVE
PC16301
PLASMA
PANEL
VE GEN.
IC16244
MAIN H
Q16051
Q16053
MAIN L
IC16691
USL
UML
IC16152
SS
USH
OC2
Q16101
Q16102
IC16151
NAND
CIS
BUFFER
35
SHUNT REG
IC16131
CEL
20
1
P11
SHUNT
REG
6
SS
11
CPH1
BUFFER
P+15V
SCAN CONTROL
5V_F
Vsus
VOL
IC16563
Q16441
Q16442
CLK
OC1
RECOVERY H
18
SEL
CSL
CRC2
RECOVERY L
VSCN-F
IC16522
LED(G)
IC16724
BUFFER
P2
SIU
MID
VHIZ GEN.
Q16451
Q16452
CML
SOS7
IC16521
SCNR_PRO
IC16471
SCAN DRIVE
CMH
SUSTAIN H
BUFFER
IC16501
IC16502
BUFFER
CSH
UMH
LOGIC IC
9
SIU
9
6
OC2
VHIZ
8
7
SC
46
IC14801-03
8
66
2
VF5V
ELECTRODE
SD
SC
42
2
VSCN_F
IC14604-06
2
VF5V
SU1-SU5
SEL
VFO
SD
42
8
OC1
1
6
SD1-SD5
SC
41
IC14901,02,04
CHA
SCAN OUT (LOWER)
2
CHA
PLASMA PANEL
IC14601-03
SD
46
SCNR_PRO
8
VFO
PANEL SCAN
1
SU
11
SU
SU
41
VSCN-F
1
CLK
SD
11
SCAN OUT (UPPER)
1
IC14804-06
VHIZ
7
2
SC
50
SC JIG
1
VFG
CHA
SCAN
DRIVER
SCAN
DRIVER
SCAN
DRIVER
SCAN
DRIVER
KEY1
SS
33
SUSTAIN CONTROL
SOS8_SS
2
20
P+5V
1
P+5V
MID
IPD CIRCUIT
T16472
PC16723
Q16660
VSCN GEN.
IC16786,87
D16713
SHUNT REG
D16714
IC16795
F15V
Q16661
IGBT CONTROL
IC16921
PC16897
CRC2
CRC1
CEL
SHUNT REG
T16471
VAD GEN.
IPD CIRCUIT
IC16784,85
(LED:8 TIMES)
(LED:7 TIMES)
(LED:6 TIMES)
OPERATION KEYS
SIDE UNIT ASSY
ZA16112
ZA16111
ZA16102
ZA16106
ZA16101
ZA16105
ZA16116
ZA16115
1
2
SS2
2
13
(LOWER)
SS
54
13
SS
56
SUSTAIN OUT
1
TV
F
-
+
-
+
AV

Table of Contents

Related product manuals