EasyManua.ls Logo

Panasonic TX-P42C2E - Remove the SS-Board; Remove the C1-Board; Remove the C2-Board

Panasonic TX-P42C2E
121 pages
Print Icon
To Next Page IconTo Next Page
To Next Page IconTo Next Page
To Previous Page IconTo Previous Page
To Previous Page IconTo Previous Page
Loading...
25
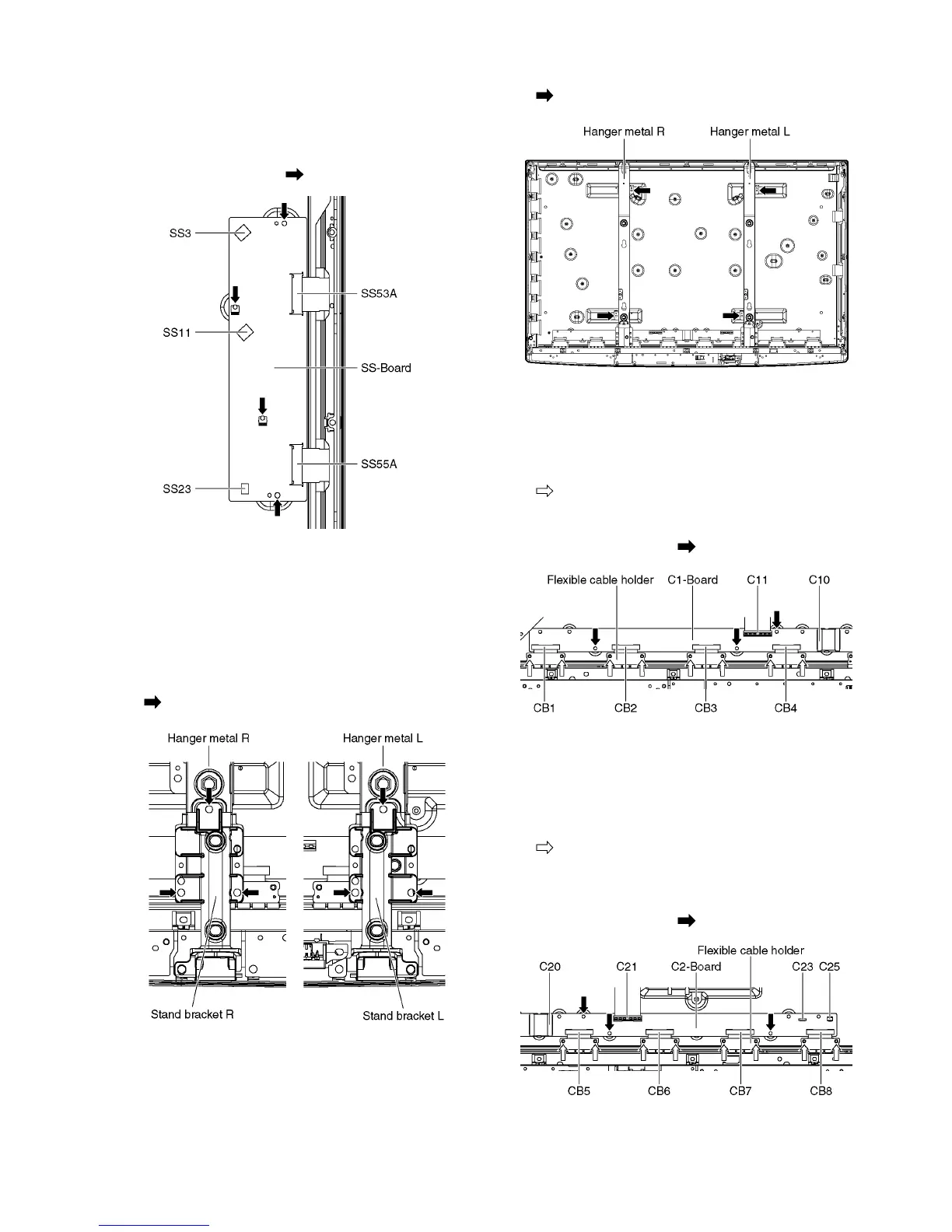
8.9. Remove the SS-Board
1. Remove the Tuner unit. (See section 8.5.)
2. Unlock the cable clampers to free the cable.
3. Disconnect the connectors (SS3, SS11 and SS23).
4. Disconnect the flexible cables (SS53A and SS55A).
5. Remove the screws (×4 ) and remove the SS-Board.
8.10. Remove the Hanger metals and
the Stand brackets
1. Remove the Plasma panel section from the servicing
stand and lay on a flat surface such as a table (covered
by a soft cloth) with the Plasma panel surface facing
downward.
2. Remove the Stand brackets (L, R) fastening screws (×3
each) and the Stand brackets (L, R).
3. Remove the Hanger metals (L, R) fastening screws (×2
each) and remove the Hanger metals (L, R).
8.11. Remove the C1-Board
1. Remove the Hanger metal R and the Stand bracket R.
(See section 8.10.)
2. Remove the flexible cable holder fastening screws (×8
).
3. Disconnect the flexible cables (CB1, CB2, CB3 and CB4).
4. Disconnect the flexible cables (C10 and C11).
5. Remove the screws (×3 ) and remove the C1-Board.
8.12. Remove the C2-Board
1. Remove the Tuner unit. (See section 8.5.)
2. Remove the Hanger metal L and the Stand bracket L.
(See section 8.10.)
3. Remove the flexible cable holder fastening screws (×8
).
4. Disconnect the flexible cables (CB5, CB6, CB7 and CB8).
5. Disconnect the flexible cables (C20 and C21).
6. Disconnect the connectors (C23 and C25).
7. Remove the screws (×3 ) and remove the C2-Board.

Table of Contents

Related product manuals