EasyManua.ls Logo

Panasonic WH-SXC12F6E5

Panasonic WH-SXC12F6E5
22 pages
To Next Page IconTo Next Page
To Next Page IconTo Next Page
To Previous Page IconTo Previous Page
To Previous Page IconTo Previous Page
Loading...
22
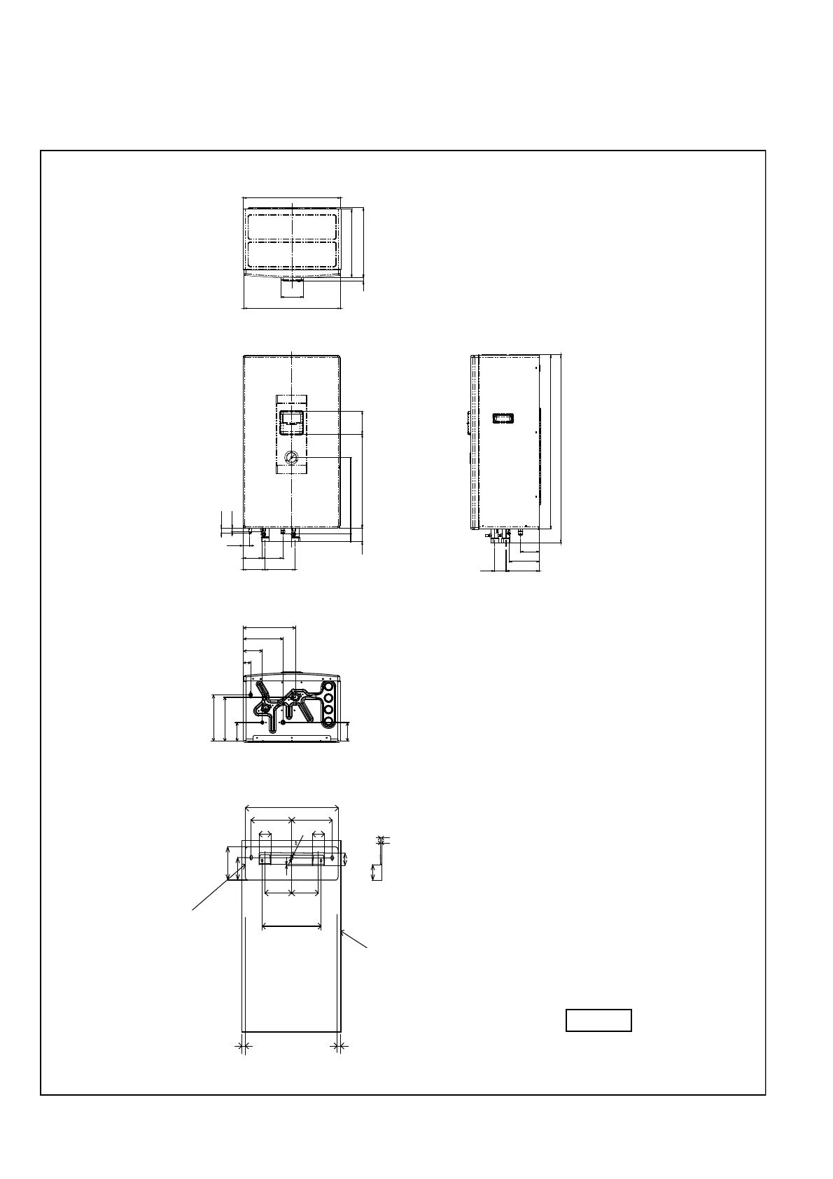
5. Dimensions
5.1 Indoor Unit
271
205.5
98.5
241
38
228.5
97.5
97.5
28
20
364
484
892
963
70
31
120
35
98
107
115
155
97
157
17157
Relative position between the indoor unit and the installation plate <Front View>
<Top View>
<Front View> <Side View>
<Bottom View>
502
116
496
353
360
17
41.4
2.6
74.9
110
5.6
4.0
140.7
306.4
140.7
63 63
213.5 213.5
490
52.5
Installation
Plate
66
Indoor unit external
dimensions line
3
-
1
5
-
H
O
L
E
Unit: mm

Related product manuals