EasyManua.ls Logo

Paradox Esprit 738 Ultra - Detector Wiring and Connections; Smoke Detector Wiring

Paradox Esprit 738 Ultra
20 pages
Print Icon
To Next Page IconTo Next Page
To Next Page IconTo Next Page
To Previous Page IconTo Previous Page
To Previous Page IconTo Previous Page
Loading...
Esprit 728 Ultra & 738 Ultra - 14 - Programming Guide
It is recommended that the smoke detectors be connected using a daisy chain configuration.
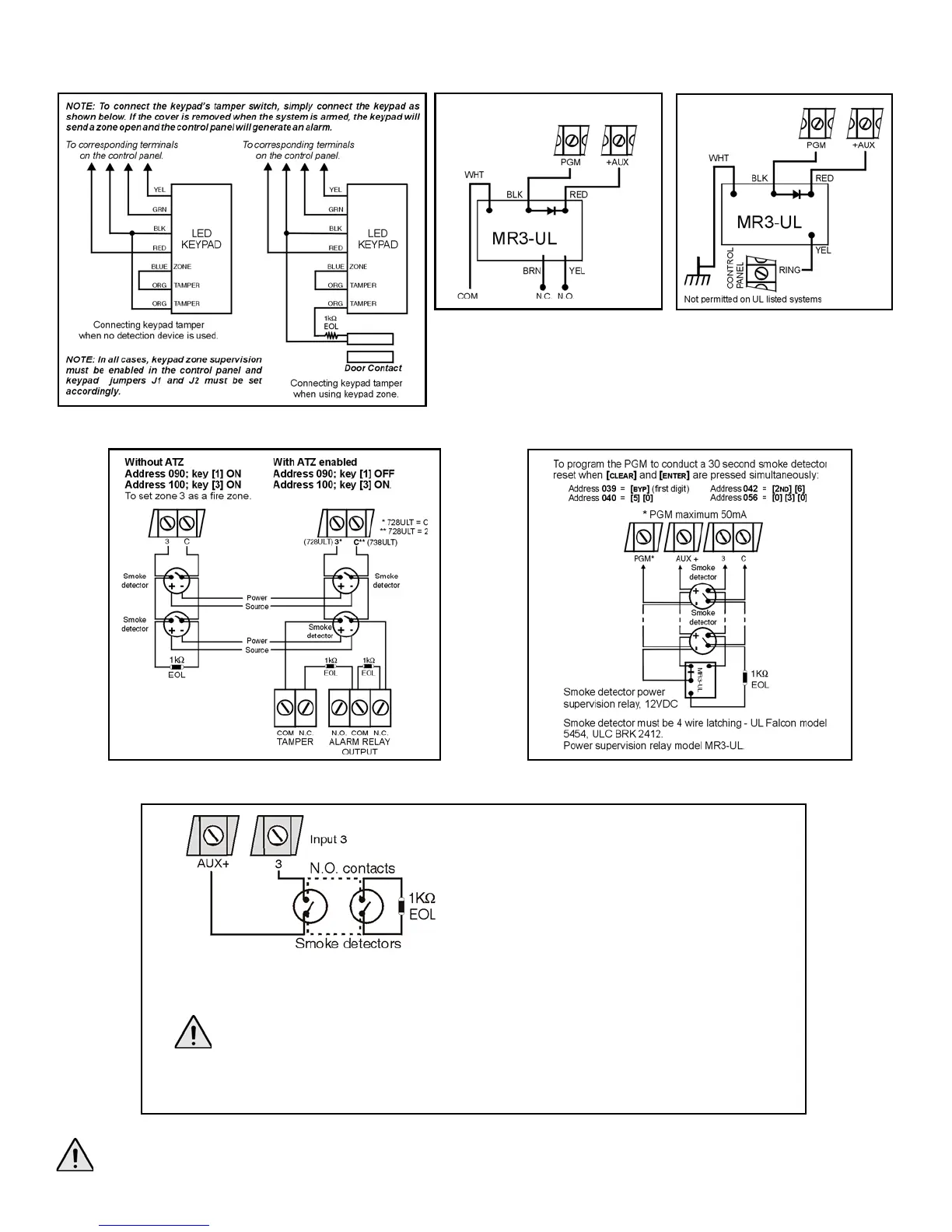
Figure 13: LED Keypad Anti-tamper Switch Connection Figure 14: PGM Output Relay Figure 15: Ground Start Circuit
Figure 16: 4-Wire Smoke Detector Connections (Fire Zone) Figure 17: 4-Wire Smoke Detector Fire Reset
Figure 18: 2-Wire Smoke Detector Connections (Fire Zone)
Address 086; key [BYP] ON (728 Ultra)
Connect the two-wire smoke detector to input 3. Without
ATZ, zone 3 is used by the two-wire smoke detector. With
ATZ enabled, zone 5 is used by the 2-wire smoke detector
and zone 6 will be disabled automatically.
2-Wire Smoke Detector Fire Reset:
Simultaneously press and hold for 3 seconds the [
ENTER] and
[
CLEAR] keys on any keypad to conduct a 30 second reset.
Address 086; key [BYP] ON (738 Ultra)
Connect the two-wire smoke detector to input 3. Zone 3 is
used by the two-wire smoke detector. With ATZ enabled,
zone 11 will be disabled automatically.
UL Warnings. For UL/cUL installations:
- The operating voltage of the fire circuit must be between 11 to 12Vdc.
- Use only the Hochicki model SLR 835BH-2 2-wire smoke detector.
- 2-wire smoke detectors of different models other than the Hochicki model are not to be used.
- Both the 728 Ultra and the 738 Ultra control panels support a maximum of five 2-wire smoke
detectors per control panel.

Related product manuals