EasyManua.ls Logo

Parkray DERWENT - Clearances

Parkray DERWENT
40 pages
Print Icon
To Next Page IconTo Next Page
To Next Page IconTo Next Page
To Previous Page IconTo Previous Page
To Previous Page IconTo Previous Page
Loading...
15
Clearances
Hearth constructions must comply with the current building regulations.
Your stove must be installed on a floor with adequate load-bearing capacity, otherwise suitable measures should be
taken.
If the existing construction does not meet this pre-requisite, suitable measures (e.g. load distributing plate).
Care should be taken to level the stove using the adjusting screws in the feet.
Material Clearances
Note: combustible material refers to any material that will degrade when subjected to heat e.g. plaster.
No combustible material must be stored underneath the stove.
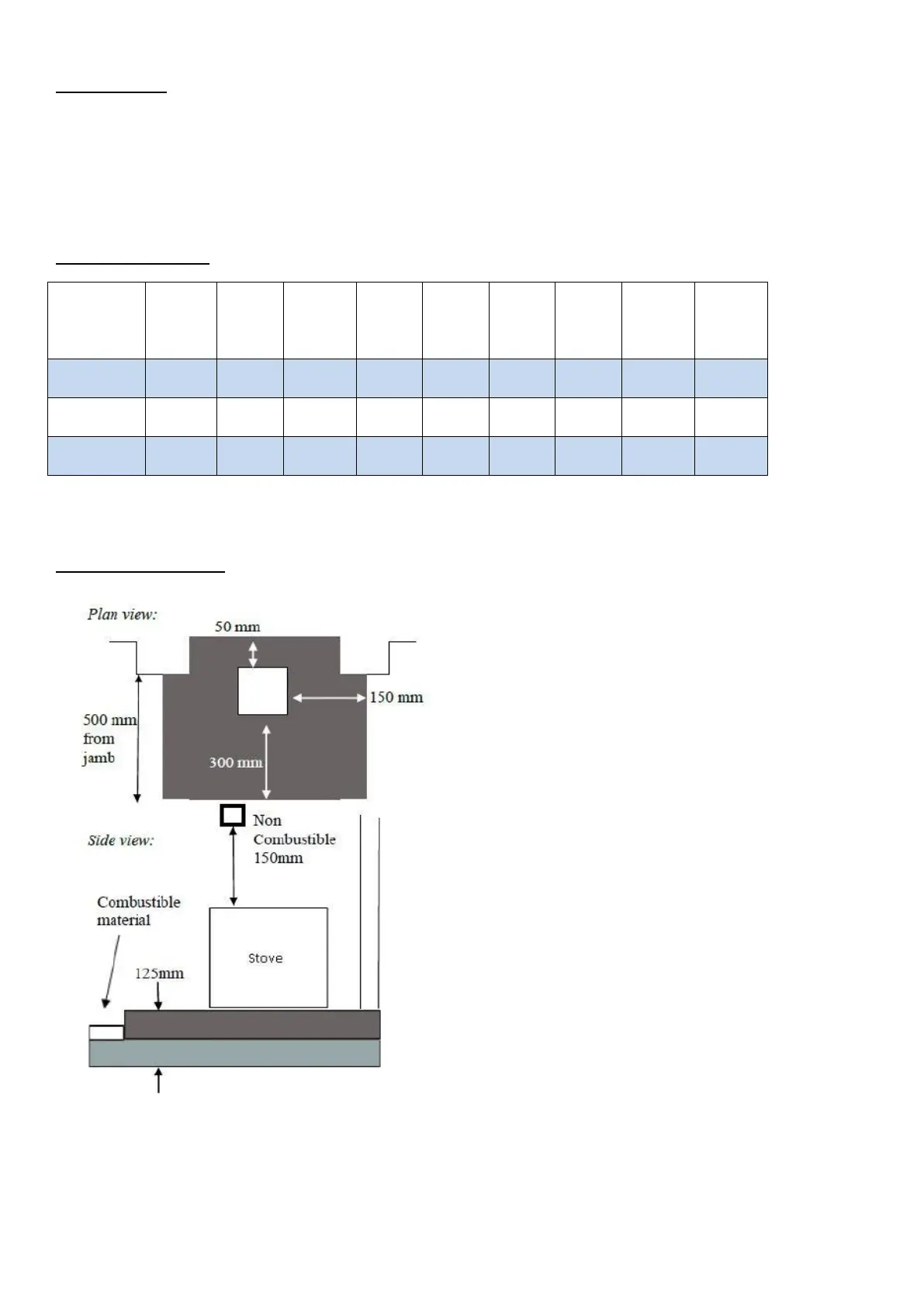
Fireplace Recess (ALL)
The stove can be recessed in a suitable sized
fireplace but a permanent free air gap of at least
150mm on top and 50mm at the sides (although we
recommend 150mm for the sides and 50mm at the
back of the stove to obtain maximum heat output
and for access to the rear of the stove.)
The hearth should extend at least 300 mm from the
front of the stove. The stove should stand wholly
above a solid, non-combustible hearth, at least 125
mm thick (this may include the thickness of a solid
floor and a non-combustible decorative hearth).
Minimum
Distances to
Combustible
Material
Derwent
Consort
4
Compact
5
Consort
5
Slimline
5
Consort
7
Slimline
9
Consort
9
Consort
15
Behind the
stove
750mm
650mm
750mm
650mm
650mm
650mm
750mm
1110mm
1100mm
At the side
of the stove
400mm
400mm
350mm
400mm
400mm
400mm
450mm
700mm
650mm
In front of
the stove
900mm
900mm
900mm
900mm
900mm
900mm
900mm
900mm
900mm

Related product manuals