EasyManua.ls Logo

Paslode PF250S-PP - Exploded View and Spare Parts List

Paslode PF250S-PP
32 pages
Print Icon
To Next Page IconTo Next Page
To Next Page IconTo Next Page
To Previous Page IconTo Previous Page
To Previous Page IconTo Previous Page
Loading...
10
PARTS LEGEND
PF250S-PP
511800
1
502330 1 Main Valve Nut
2
502304 1 Air Deflector
3
502343 1 Wave Washer
4
502339 4 S.H.C.S. #10-24 x 7/8”
5 408302 7 Flat Washer
6 511803 1 Cap
7 502313 1 Gasket, Cap
8 360594 1 Spring,
9
202382 1 O-Ring
*10
201806 1 O-Ring
11 539676 1 O-Ring
12
13
502056 1 Exhaust Seal Assembly
14
1011802 1 Washer
15
502327 1 B.H.C.S. 1/4-20 x 1-1/2”
16
502311 1 Piston Seal
17
511809 1 Sleeve,Cylinder
18
092971 1 O-Ring, Flange
20
192799 1 O-Ring, Flange
21
502310 1 Check Band
22
502317 1 Bumper
25
502302 1 Housing W/Overmolded grip
27
502345 1 S.H.C.S. 5/16-18 x 5/8”
30
502034 1 Label, Housing-Right
36
511805
1 End Plug, Housing
502035 1 Label, H ousing-left
34
29
511829
2 S.H.C.S. #10-24 x 1-1/8”
31
403796
1
37
380931 1 Roll Pin 3/16 x 1-1/2”
38
502333
1 Roll Pin, Trigger 1/8 x 1-1/2”
40
197913
1 O-Ring
502044
1
41
502059
1
Spring, Valve Pin
42
1015358
1
O-Ring
43
502045
1
Valve Pin
44
196345
1
O-Ring
45
092747 1 O-Ring
502060 1 Spring, Trigger
49
50
502042 1 O-Ring
53
54
002187 5 Lock Washer
55
091545 4 S.H.C.S. 1/4-20 x 7/8”
56
511824
1
57
513107 1 Bias Lever Pin
58
501410 1
59
511808 1 Bias Lever
60
511821
1
502328 1
62
Magazine Washer
63
502049 1
S.H.C.S. 10-32 x 5/8”
65
503069
1 Detent Body
66
511015
1 Thumbwheel Assy.
67
502325 1 Roll Pin
68
511820 1 W.C.E. Lower
69
007631 1 Roll Pin
70
511059 1 Probe
71
72
502323 1
73
511822 1
Label, Model
74
511812 1
Magazine Mount
19
502307 1 Flange
76
092037
1
Shear Block
77
513109
1
Label, Fastener Usage/
Follower Release
78
511819
1
Magazine
1
End Cap, Magazine
64
502061 1
Spring
23
1
Blade Seal
79
502332 1 Rafter Hook
*
Denotes Normal Wear Items
**
Make sure Warning Label (Part No. 511822)
is properly affixed. Replace if necessary.
Label available at no charge through the
Service Department.
Apply Loctite 242 (Blue) Part N o. 093500
Denotes New Change
WARNING
All parts must be periodically inspected and replaced if
worn or broken. Failure to do this can affect the toolʼs
operation and present a safety hazard.
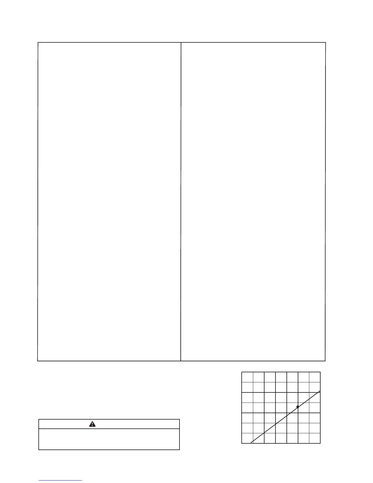
AIR CONSUMPTION CHART
AIR CONSUMPTION-SCFM FASTENER
AIR PRESSURE-PSIG
511523
26
32
39
502324
1
Pin, Trigger
75
511807
1
.120
.110
.080
.090
.100
120
.060
.070
11010090807060
**
.086
1
W.C.E. Guide Block
Roll Pin, Trigger 1/8 x 1-1/4”
Upper Valve Spool
Spring, Bias Lever.
Spring
Lock Nut
502347
1
502337 4
Positive Placement
Metal Connector Nailer
®
*
®
511587
Spring Drum Assembly
Negator Spring
80
81
502928
1
Label, Logo
82
513101
1
Follower Claw
83
502340
1
84
85
502226
1
86
502020
1
Spring, Follower Body
87
500627
1
502335
1
B.H.C.S. 8-32 x 1/2”
502318
1
Follower Body
88
Lockout Bar
502025
1
Spiral Pin
28
24
511804
1 Quick Clear Knob
511806 1
52
Nose
51
513103
1
Trigger Body, Sequential
33
402963
1 O-Ring, End Plug
511811
1 Mounting Lug
35
Roll Pin,End Plug
*
*
*
*
*
*
*
*
*
502225 1
Trip Lever
091866 1
Roll Pin 1/8” x 3/4”
O-Ring, Retainer
W.C.E., Upper
61
404361 1 Roll Pin
Ball, Detent
S.H.C.S. 1/4-20 x 3/8”
3
511825
1 S.H.C.S. 5/16-18 x 3/8”
026133
502033
404274 1 Washer
511826 1 Hex Spacer
*
*
46
47
*
*
511827
1
Quick Clear Label
89
90
91
92
502043
1
Lower Valve Spool
48
*
*
513106
1
Bias Lever Bracket93

Related product manuals