EasyManua.ls Logo

Payne PG8J - Introduction

Payne PG8J
52 pages
Print Icon
To Next Page IconTo Next Page
To Next Page IconTo Next Page
To Previous Page IconTo Previous Page
To Previous Page IconTo Previous Page
Loading...
3
2-7/16"
1-1/8"
28-7/8"
25-1/4"
22-9/16"
JUNCTION BOX
LOCATION
7/8" DIA
ACCESSORY
1/2" DIA THERMOSTAT
WIRE ENTRY
3-15/16"
LEFT HAND GAS
ENTRY
33-5/16"
24-7/8"
5-1/2"
7/8" DIA. ACCESSORY
11/16"
21-5/8"
BOTTOM INLET
1-11/16"
13/16"
11/16"
4-13/16"
AIRFLOW
19"
OUTLET
13/16"
11/16"
8-9/16"
VENT OUTLET
5 PLACES (TYP)
3-3/4"
1-3/4" DIA.RIGHT HAND
GAS ENTRY
7/8" DIA. K.O. WIRE ENTRY
SIDE INLET
14-7/8"
7/8" DIA. ACCESSORY
1-1/4"
1"
22-1/16"
A
D
F
E
(FLUE COLLAR)
5-15/16"
24"
CASING
1-5/16"
1/2" DIA. K.O.THERMOSTAT
WIRE ENTRY
ALTERNATE
JUNCTION BOX
LOCATIONS (TYP)
26-1/8"
1-1/2"
7-3/4"
9-5/8"
11-1/2"
5-1/2"
NOTES:
1. Two additional 7/8-in. diameter holes are located in the top plate.
2. Minimum return-air openings at furnace, based on metal duct. If flex duct is used, see flex duct manufacturer’s recommendations for equivalent diameters.
a. For 800 CFM-16-in. round or 14 1/2 x 12-in. rectangle.
b. For 1200 CFM-20-in. round or 14 1/2 x 19 1/2-in. rectangle.
c. For 1600 CFM-22-in. round or 14 1/2 x 22-in. rectangle.
d. For airflow requirements above 1800 CFM, see Air Delivery table in Product Data literature for specific use of single side inlets. The use of both side inlets
a combination of 1 side and the bottom, or the bottom only will ensure adequate return air openings for airflow requirements above 1800 CFM.
A04037
Fig. 1 --- Dimensional Drawing
13. These furnaces SHALL NOT be installed directly on car-
peting, tile, or any other combustible material other than
wood flooring. In downflow installations, factory access-
ory floor base MUST be used when installed on combust-
ible materials and wood flooring. Special base is not re-
quired when this furnace is installed on manufacturer’s
Coil Assembly Part No. CAPV, CAPMP, or CNPVP, or
when Coil Box Part No. KCAKC is used. See Fig. 2 for
clearance to combustible construction information.
INTRODUCTION
Series 120/C 4--way multipoise Category I fan--assisted furnace is
CSA design--certified. A Category I fan--assisted furnace is an
appliance equipped with an integral mechanical means to either
draw or force products of combustion through the combustion
chamber and/or heat exchanger. The furnace is factory --shipped
for use with natural gas. This furnace is not approved for
installation in mobile homes, recreational vehicles, or outdoors.
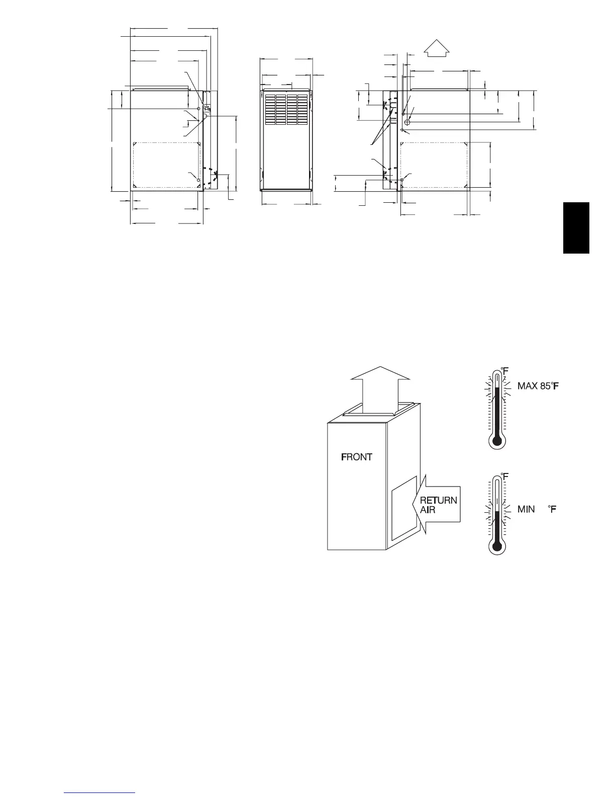
This furnace is designed for minimum continuous return--air
temperature of 60_F db or intermittent operation down to 55_F
db such as when used with a night setback thermostat. Return--air
temperature must not exceed 85_F db. Failure to follow these
return--air temperature limits may af fect reliability of heat
exchangers, motors, and controls. (See Fig. 2.)
60
A02055
Fig. 2 --- Return Air Temperature
PG8J/M

Other manuals for Payne PG8J

Related product manuals